Информационная система
«Ёшкин Кот»

Скачать базу одним архивом
Скачать обновления
История создания базы
Карта сайта

Скачать Серия 3.503.9-62 Выпуск 1. Пролетное строение Lp=42 м. Рабочие чертежи

Дата актуализации: 10.08.2017

Серия 3.503.9-62

Выпуск 1. Пролетное строение Lp=42 м. Рабочие чертежи

Обозначение: Серия 3.503.9-62
Обозначение англ: Series 3.503.9-62
Статус:заменен
Название рус.:Выпуск 1. Пролетное строение Lp=42 м. Рабочие чертежи
Дата добавления в базу:01.09.2013
Дата актуализации:05.05.2017
Дата введения:01.09.1998
Область применения:Пролетное строение Lp=42 м предназначено для установки на автомобильных мостах, расположенных в плане на прямых участках дорог IV и V технических категорий и может устанавливаться в профиле на площадках, уклонах и выпуклых кривых радиусом 5000 и 10000 м при расчетной сейсмичности не выше 6 баллов
Оглавление:3.503.9-62.1-00 Условные обозначения
3.503.9-62.1-00ПЗ Пояснительная записка
3.503.9-62.1-01 Общий вид пролетного строения. Основные данные
3.503.9-62.1-02КМ Общий вид металлоконструкции
3.503.9-62.1-03КМ Монтажные стыки главных балок и прогона. Узлы
3.503.9-62.1-04КМ Упоры главных балок и прогона (обычное исполнение)
3.503.9-62.1-05КМ Упоры главных балок и прогона (северное исполнение)
3.503.9-62.1-06КМ Домкратная балка (обычное исполнение)
3.503.9-62.1-07КМ Домкратная балка (северное исполнение)
3.503.9-62.1-08КМ Поперечные связи (обычное исполнение)
3.503.9-62.1-09КМ Поперечные связи (северное исполнение)
3.503.9-62.1-10КМ Узлы и элементы продольных связей
3.503.9-62.1-11КМ Смотровой ход
3.503.9-62.1-12КМ Перила
3.503.9-62.1-13КМ Ограждение ездового полотна
3.503.9-62.1-14КМ Строительный подъем
3.503.9-62.1-15КМ Техническая спецификация металла (обычное исполнение)
3.503.9-62.1-16КМ Техническая спецификация металла (северное исполнение)
3.503.9-62.1-17 Схемы продольной надвижки
3.503.9-62.1-18 Монтаж плит проезжей части
3.503.9-62.1-19 Расчеты
3.503.9-62.1-20 Монтажная схема блоков плиты проезжей части
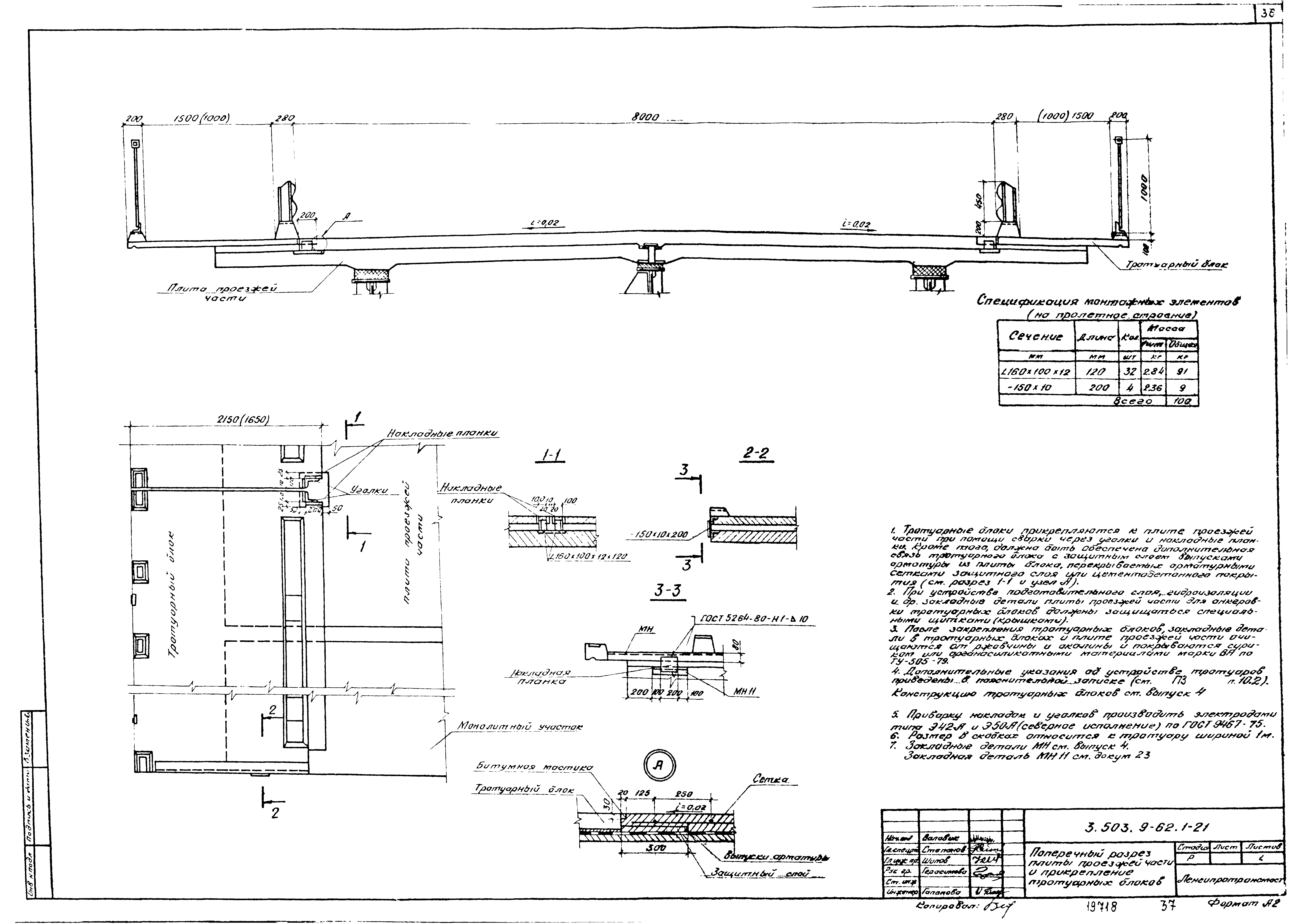
3.503.9-62.1-21 Поперечный разрез плиты проезжей части. Прикрепление тротуарных блоков
3.503.9-62.1-22 Мостовое полотно
3.503.9-62.1-23 Монолитный участок № 1 железобетонной плиты проезжей части
3.503.9-62.1-24 Монолитный участок № 2 железобетонной плиты проезжей части
3.503.9-62.1-25 Водоотводное устройство
3.503.9-62.1-26 Деформационный шов заполняемого типа
3.503.9-62.1-27КМ Деформационный шов перекрываемого типа ПС-80
3.503.9-62.1-28ВМ Ведомость потребности в материалах
Разработан: Ленгипротрансмост
Утверждён:10.07.1984 Минтрансстрой (Mintransstroy ВС-727)
Расположен в:Техническая документация Строительство Справочные документы Типовые строительные конструкции, изделия и узлы Общероссийский строительный каталог Строительные конструкции, изделия и узлы зданий и сооружений для всех видов строительства Конструкции и изделия сооружений и оборудования зданий Надземные сооружения Конструкции и сооружения транспорта Пролетные строения мостов, мосты и путепроводы
Заменяет собой:
Чем заменён:
Серия 3.503.9-62Серия 3.503.9-62Серия 3.503.9-62Серия 3.503.9-62Серия 3.503.9-62Серия 3.503.9-62Серия 3.503.9-62Серия 3.503.9-62Серия 3.503.9-62Серия 3.503.9-62Серия 3.503.9-62Серия 3.503.9-62Серия 3.503.9-62Серия 3.503.9-62Серия 3.503.9-62Серия 3.503.9-62Серия 3.503.9-62Серия 3.503.9-62Серия 3.503.9-62Серия 3.503.9-62Серия 3.503.9-62Серия 3.503.9-62Серия 3.503.9-62Серия 3.503.9-62Серия 3.503.9-62Серия 3.503.9-62Серия 3.503.9-62Серия 3.503.9-62Серия 3.503.9-62Серия 3.503.9-62Серия 3.503.9-62Серия 3.503.9-62Серия 3.503.9-62Серия 3.503.9-62Серия 3.503.9-62Серия 3.503.9-62Серия 3.503.9-62Серия 3.503.9-62Серия 3.503.9-62Серия 3.503.9-62Серия 3.503.9-62Серия 3.503.9-62Серия 3.503.9-62Серия 3.503.9-62Серия 3.503.9-62Серия 3.503.9-62Серия 3.503.9-62Серия 3.503.9-62

© 2013 Ёшкин Кот :-) Карта сайта