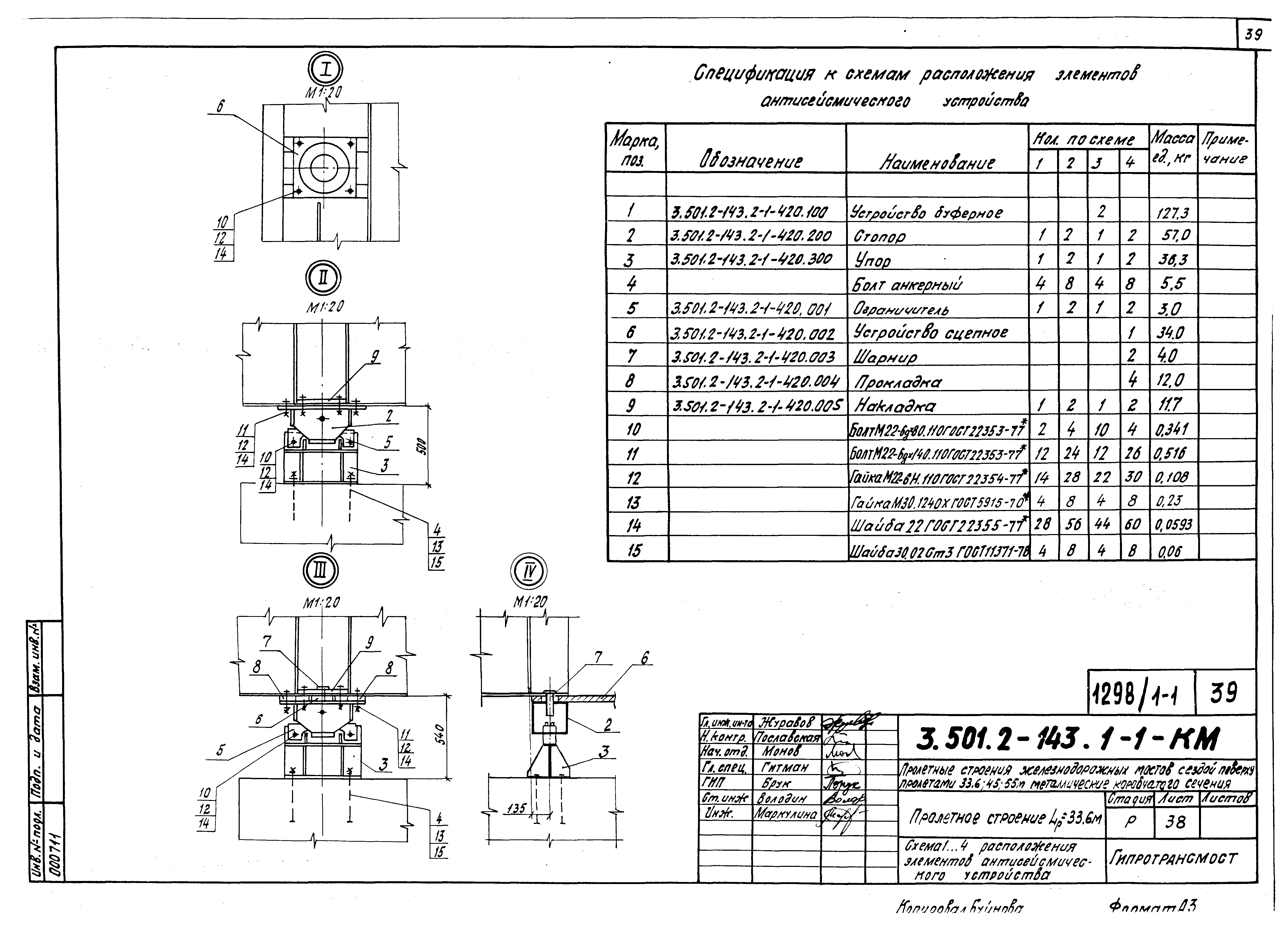
Скачать Серия 3.501.2-143 Выпуск 1-1. Пролетное строение Lp=33,6 м. Основной комплект марки КМ. Рабочие чертежиДата актуализации: 10.08.2017 Серия 3.501.2-143
Выпуск 1-1. Пролетное строение Lp=33,6 м. Основной комплект марки КМ. Рабочие чертежиОбозначение: | Серия 3.501.2-143 | Обозначение англ: | Series 3.501.2-143 | Статус: | не определен законодательством | Название рус.: | Выпуск 1-1. Пролетное строение Lp=33,6 м. Основной комплект марки КМ. Рабочие чертежи | Дата добавления в базу: | 01.09.2013 | Дата актуализации: | 05.05.2017 | Дата введения: | 01.07.1987 | Разработан: | Гипротрансмост
| Утверждён: | 27.01.1987 МПС СССР (USSR Ministry of Railroads А424у)
| Расположен в: |
|
                                        
|