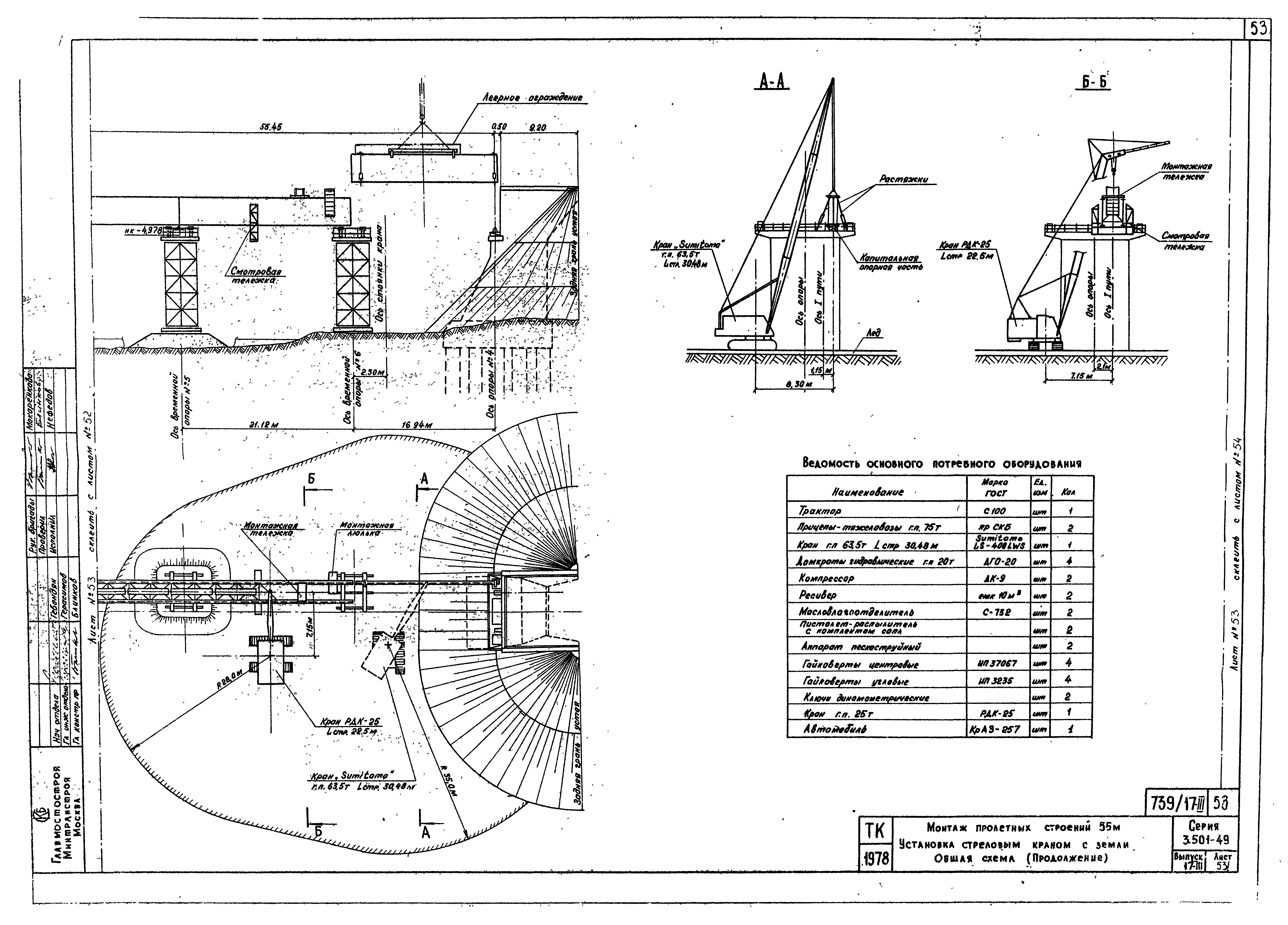
Скачать Серия 3.501-49 Выпуск 17. Альбом III. Монтаж пролетных строений. Пролетные строения 45,0 и 55,0 м. Монтаж способом продольной задвижки и стреловыми кранами с земли. Техно-рабочие чертежиДата актуализации: 10.08.2017 Серия 3.501-49
Выпуск 17. Альбом III. Монтаж пролетных строений. Пролетные строения 45,0 и 55,0 м. Монтаж способом продольной задвижки и стреловыми кранами с земли. Техно-рабочие чертежиОбозначение: | Серия 3.501-49 | Обозначение англ: | Series 3.501-49 | Статус: | не определен законодательством | Название рус.: | Выпуск 17. Альбом III. Монтаж пролетных строений. Пролетные строения 45,0 и 55,0 м. Монтаж способом продольной задвижки и стреловыми кранами с земли. Техно-рабочие чертежи | Дата добавления в базу: | 01.09.2013 | Дата актуализации: | 05.05.2017 | Дата введения: | 01.01.1980 | Разработан: | СКБ Главмостостроя
| Утверждён: | 24.10.1979 Минтрансстрой (Mintransstroy Л-1798)
| Расположен в: |
|
                                                                     
|