Информационная система
«Ёшкин Кот»

Скачать базу одним архивом
Скачать обновления
История создания базы
Карта сайта

Скачать Серия 3.501.1-167 Выпуск 1. Материалы для проектирования. Рабочие чертежи

Дата актуализации: 10.08.2017

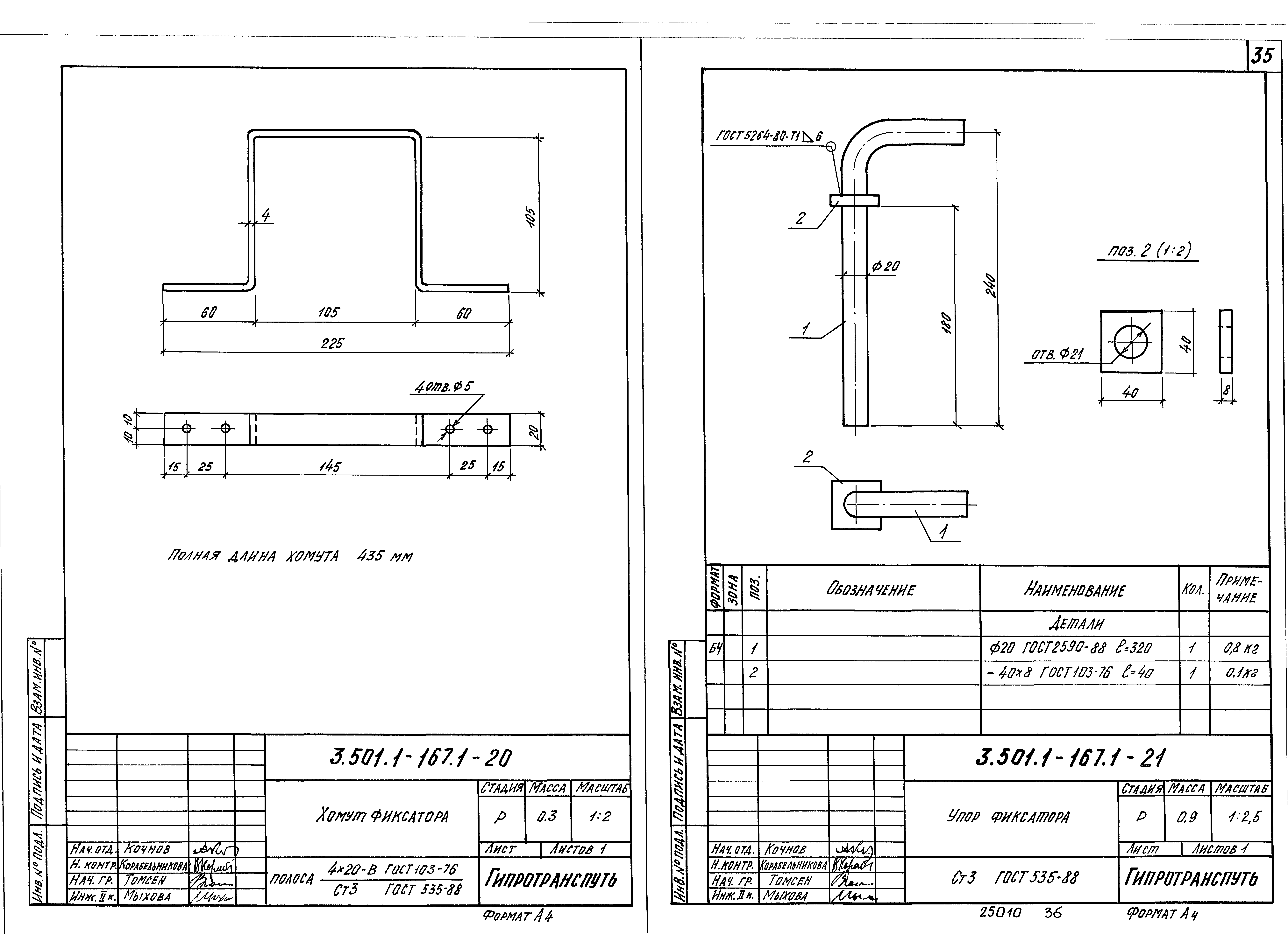
Серия 3.501.1-167

Выпуск 1. Материалы для проектирования. Рабочие чертежи

Обозначение: Серия 3.501.1-167
Обозначение англ: Series 3.501.1-167
Статус:не определен законодательством
Название рус.:Выпуск 1. Материалы для проектирования. Рабочие чертежи
Дата добавления в базу:01.09.2013
Дата актуализации:05.05.2017
Дата введения:01.01.1992
Область применения:В серии разработаны конструкции железобетонных бездонных коробов, применяемые для удлинения устоев железнодорожных мостов, эксплуатируемых как в районах с расчетной минимальной температурой воздуха до -40 градусов Цельсия (обычное исполнение), так и в районах с расчетной минимальной температурой воздуха ниже -40 градусов Цельсия (северное исполнение)
Разработан: Гипротранспуть
Утверждён:18.12.1990 Министерство путей сообщения СССР (USSR Ministry of Railroads А-2815у)
Расположен в:Техническая документация Строительство Справочные документы Типовые строительные конструкции, изделия и узлы Общероссийский строительный каталог Строительные конструкции, изделия и узлы зданий и сооружений для всех видов строительства Конструкции и изделия сооружений и оборудования зданий Надземные сооружения Конструкции и сооружения транспорта Опоры пролетных строений мостов и путепроводов
Заменяет собой:
  • Серия 3.501.1-25
Серия 3.501.1-167Серия 3.501.1-167Серия 3.501.1-167Серия 3.501.1-167Серия 3.501.1-167Серия 3.501.1-167Серия 3.501.1-167Серия 3.501.1-167Серия 3.501.1-167Серия 3.501.1-167Серия 3.501.1-167Серия 3.501.1-167Серия 3.501.1-167Серия 3.501.1-167Серия 3.501.1-167Серия 3.501.1-167Серия 3.501.1-167Серия 3.501.1-167Серия 3.501.1-167Серия 3.501.1-167Серия 3.501.1-167Серия 3.501.1-167Серия 3.501.1-167Серия 3.501.1-167Серия 3.501.1-167Серия 3.501.1-167Серия 3.501.1-167Серия 3.501.1-167Серия 3.501.1-167Серия 3.501.1-167Серия 3.501.1-167Серия 3.501.1-167Серия 3.501.1-167Серия 3.501.1-167Серия 3.501.1-167Серия 3.501.1-167Серия 3.501.1-167Серия 3.501.1-167Серия 3.501.1-167Серия 3.501.1-167Серия 3.501.1-167Серия 3.501.1-167Серия 3.501.1-167Серия 3.501.1-167Серия 3.501.1-167Серия 3.501.1-167Серия 3.501.1-167

© 2013 Ёшкин Кот :-) Карта сайта