Информационная система
«Ёшкин Кот»

Скачать базу одним архивом
Скачать обновления
История создания базы
Карта сайта

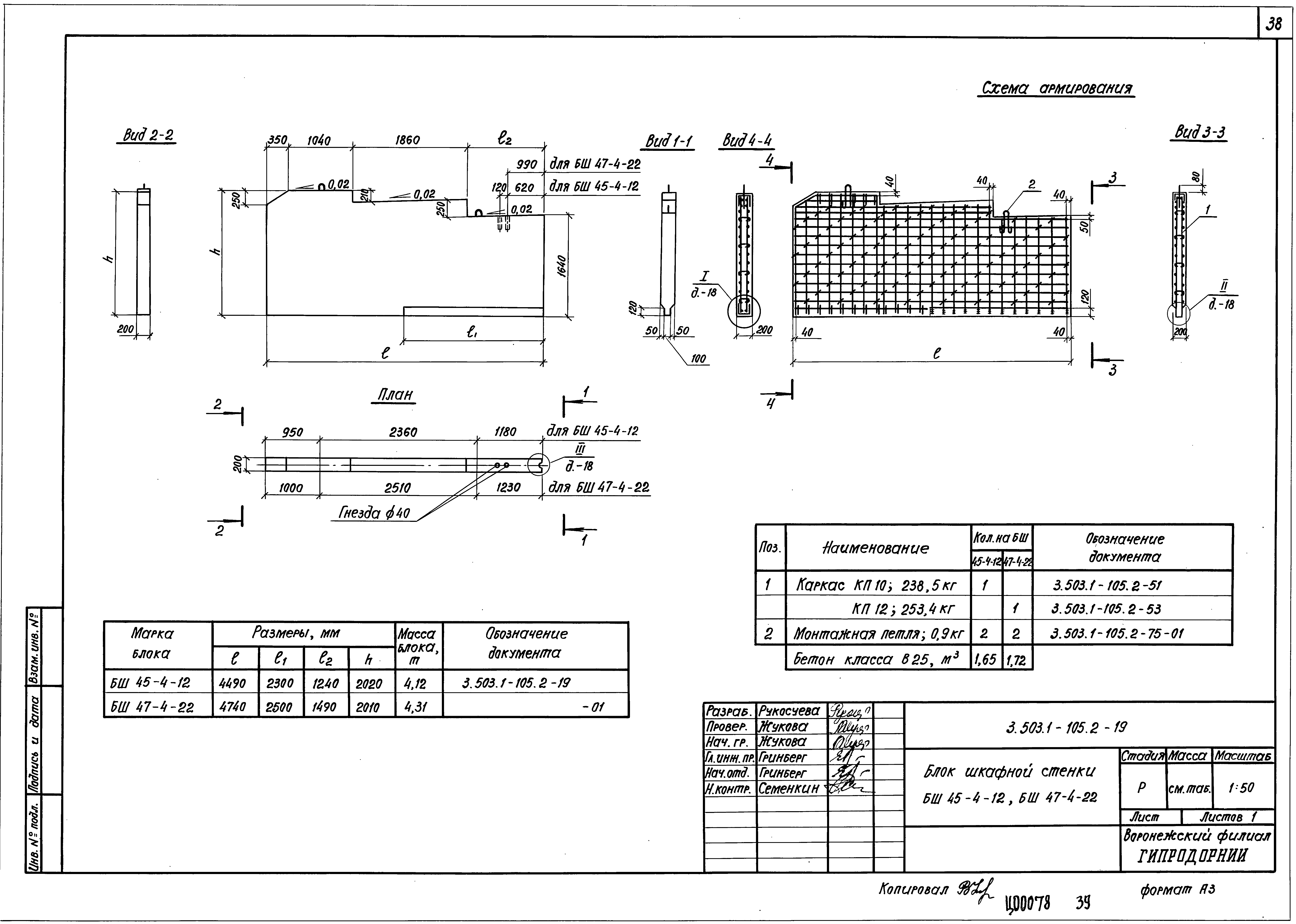
Скачать Серия 3.503.1-105 Выпуск 2. Железобетонные изделия. Рабочие чертежи

Дата актуализации: 10.08.2017

Серия 3.503.1-105

Выпуск 2. Железобетонные изделия. Рабочие чертежи

Обозначение: Серия 3.503.1-105
Обозначение англ: Series 3.503.1-105
Статус:не определен законодательством
Название рус.:Выпуск 2. Железобетонные изделия. Рабочие чертежи
Дата добавления в базу:01.09.2013
Дата актуализации:05.05.2017
Дата введения:01.07.1993
Разработан: Воронежский филиал ГипродорНИИ
Утверждён:07.11.1992 Гипродорнии (Giprodornii 156)
Расположен в:Техническая документация Строительство Справочные документы Типовые строительные конструкции, изделия и узлы Общероссийский строительный каталог Строительные конструкции, изделия и узлы зданий и сооружений для всех видов строительства Конструкции и изделия сооружений и оборудования зданий Надземные сооружения Конструкции и сооружения транспорта Опоры пролетных строений мостов и путепроводов
Серия 3.503.1-105Серия 3.503.1-105Серия 3.503.1-105Серия 3.503.1-105Серия 3.503.1-105Серия 3.503.1-105Серия 3.503.1-105Серия 3.503.1-105Серия 3.503.1-105Серия 3.503.1-105Серия 3.503.1-105Серия 3.503.1-105Серия 3.503.1-105Серия 3.503.1-105Серия 3.503.1-105Серия 3.503.1-105Серия 3.503.1-105Серия 3.503.1-105Серия 3.503.1-105Серия 3.503.1-105Серия 3.503.1-105Серия 3.503.1-105Серия 3.503.1-105Серия 3.503.1-105Серия 3.503.1-105Серия 3.503.1-105Серия 3.503.1-105Серия 3.503.1-105Серия 3.503.1-105Серия 3.503.1-105Серия 3.503.1-105Серия 3.503.1-105Серия 3.503.1-105Серия 3.503.1-105Серия 3.503.1-105Серия 3.503.1-105Серия 3.503.1-105Серия 3.503.1-105Серия 3.503.1-105Серия 3.503.1-105Серия 3.503.1-105Серия 3.503.1-105Серия 3.503.1-105Серия 3.503.1-105Серия 3.503.1-105Серия 3.503.1-105Серия 3.503.1-105Серия 3.503.1-105Серия 3.503.1-105Серия 3.503.1-105Серия 3.503.1-105Серия 3.503.1-105Серия 3.503.1-105Серия 3.503.1-105Серия 3.503.1-105Серия 3.503.1-105Серия 3.503.1-105Серия 3.503.1-105Серия 3.503.1-105Серия 3.503.1-105Серия 3.503.1-105Серия 3.503.1-105Серия 3.503.1-105Серия 3.503.1-105Серия 3.503.1-105Серия 3.503.1-105Серия 3.503.1-105Серия 3.503.1-105Серия 3.503.1-105Серия 3.503.1-105Серия 3.503.1-105Серия 3.503.1-105Серия 3.503.1-105Серия 3.503.1-105Серия 3.503.1-105Серия 3.503.1-105

© 2013 Ёшкин Кот :-) Карта сайта