Информационная система
«Ёшкин Кот»

Скачать базу одним архивом
Скачать обновления
История создания базы
Карта сайта

Скачать Серия 3.503.1-60 Выпуск 5. Специальные вспомогательные сооружения и устройства. Рабочие чертежи

Дата актуализации: 10.08.2017

Серия 3.503.1-60

Выпуск 5. Специальные вспомогательные сооружения и устройства. Рабочие чертежи

Обозначение: Серия 3.503.1-60
Обозначение англ: Series 3.503.1-60
Статус:не определен законодательством
Название рус.:Выпуск 5. Специальные вспомогательные сооружения и устройства. Рабочие чертежи
Дата добавления в базу:01.09.2013
Дата актуализации:05.05.2017
Дата введения:01.01.1986
Оглавление:3.503.1-60.5-00.00.00 ПЗ Пояснительная записка
3.503.1-60.5-01.00.00 Каркас направляющий
3.503.1-60.5-01.01.00 Рама направляющая
3.503.1-60.5-01.02.00 Пригруз
3.503.1-60.5-01.03.00 Балка опорная
3.503.1-60.5-02.00.00 Подмости
3.503.1-60.5-02.01.00 Хомут В1
3.503.1-60.5-02.02.00 Связь В2; В3
3.503.1-60.5-02.03.00 Связь В4; В9
3.503.1-60.5-03.00.00 Рама
3.503.1-60.5-04.00.00 Устройство строповочное
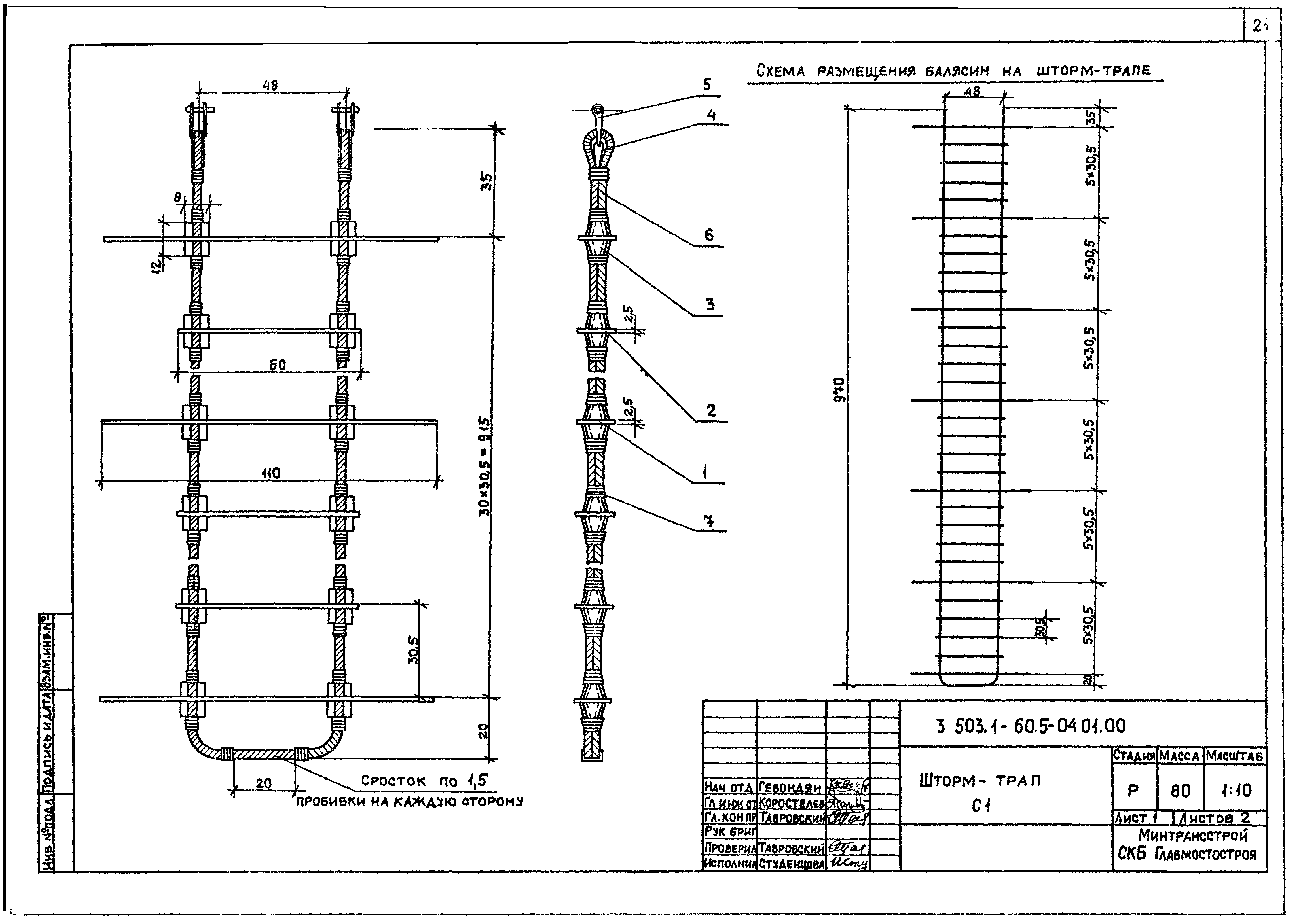
3.503.1-60.5-04.01.00 Шторм - трап С1
3.503.1-60.5-04.02.00 Траверса С2
3.503.1-60.5-05.00.00 Строповка столба
3.503.1-60.5-06.00.00 Плавкондуктор
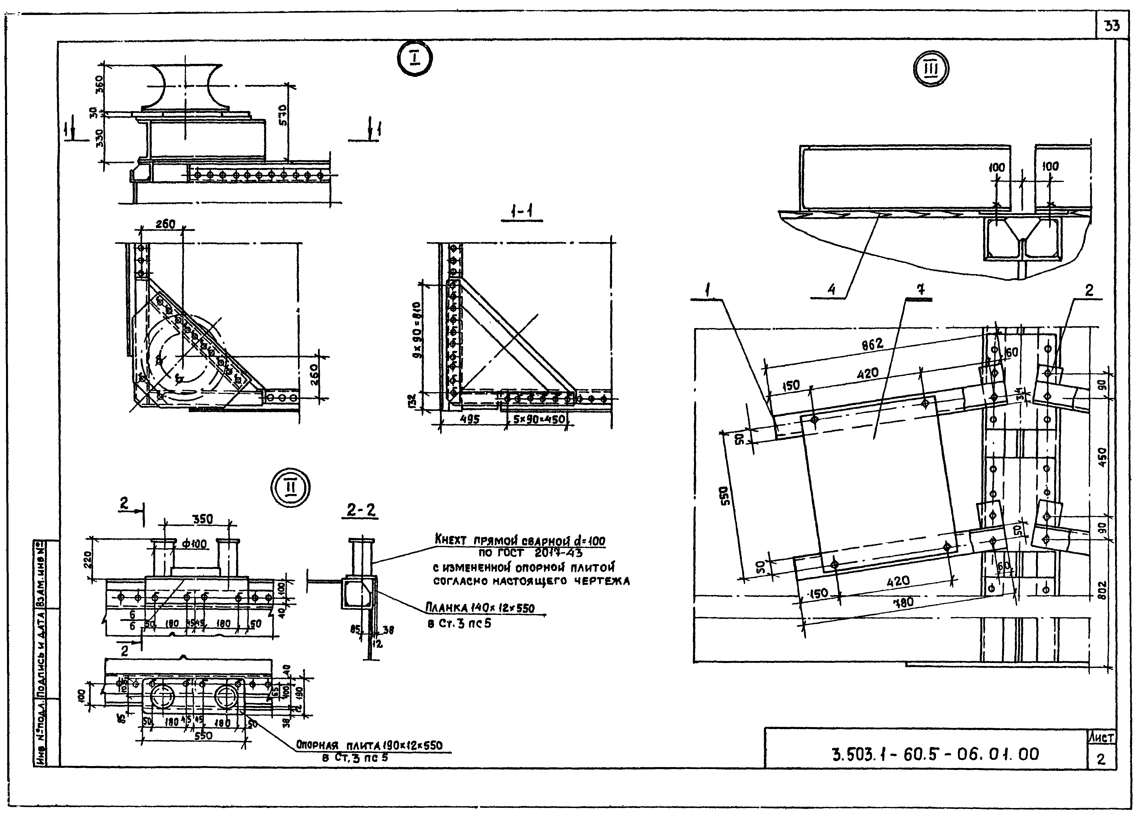
3.503.1-60.5-06.01.00 Плашкоут
3.503.1-60.5-06.02.00 Свая маячная
3.503.1-60.5-07.00.00 Каркас направляющий
3.503.1-60.5-08.00.00 Обстройка опоры
3.503.1-60.5-09.00.00 Рама
3.503.1-60.5-10.00.00 Подмости
3.503.1-60.5-11.00.00 Плавкран
3.503.1-60.5-12.00.00 Якорь земляной
3.503.1-60.5-13.00.00 Якорь - присос
3.503.1-60.5-14.00.00 Кран РДК-25 на плашкоуте из понтонов КС-63. Общий вид
3.503.1-60.5-15.00.00 Кран РДК-25 на плашкоуте из понтонов УП-78
3.503.1-60.5-16.00.00 Распределительный пакет с обстройкой деревом
Разработан: СКБ Главмостостроя
Утверждён:29.12.1985 Минавтодор РСФСР (Russian Federation Minavtodor )
Расположен в:Техническая документация Строительство Справочные документы Типовые строительные конструкции, изделия и узлы Общероссийский строительный каталог Строительные конструкции, изделия и узлы зданий и сооружений для всех видов строительства Конструкции и изделия сооружений и оборудования зданий Надземные сооружения Конструкции и сооружения транспорта Опоры пролетных строений мостов и путепроводов
Серия 3.503.1-60Серия 3.503.1-60Серия 3.503.1-60Серия 3.503.1-60Серия 3.503.1-60Серия 3.503.1-60Серия 3.503.1-60Серия 3.503.1-60Серия 3.503.1-60Серия 3.503.1-60Серия 3.503.1-60Серия 3.503.1-60Серия 3.503.1-60Серия 3.503.1-60Серия 3.503.1-60Серия 3.503.1-60Серия 3.503.1-60Серия 3.503.1-60Серия 3.503.1-60Серия 3.503.1-60Серия 3.503.1-60Серия 3.503.1-60Серия 3.503.1-60Серия 3.503.1-60Серия 3.503.1-60Серия 3.503.1-60Серия 3.503.1-60Серия 3.503.1-60Серия 3.503.1-60Серия 3.503.1-60Серия 3.503.1-60Серия 3.503.1-60Серия 3.503.1-60Серия 3.503.1-60Серия 3.503.1-60Серия 3.503.1-60Серия 3.503.1-60Серия 3.503.1-60Серия 3.503.1-60Серия 3.503.1-60Серия 3.503.1-60Серия 3.503.1-60Серия 3.503.1-60Серия 3.503.1-60Серия 3.503.1-60Серия 3.503.1-60Серия 3.503.1-60Серия 3.503.1-60Серия 3.503.1-60Серия 3.503.1-60Серия 3.503.1-60Серия 3.503.1-60Серия 3.503.1-60Серия 3.503.1-60Серия 3.503.1-60Серия 3.503.1-60Серия 3.503.1-60Серия 3.503.1-60Серия 3.503.1-60Серия 3.503.1-60Серия 3.503.1-60Серия 3.503.1-60

© 2013 Ёшкин Кот :-) Карта сайта