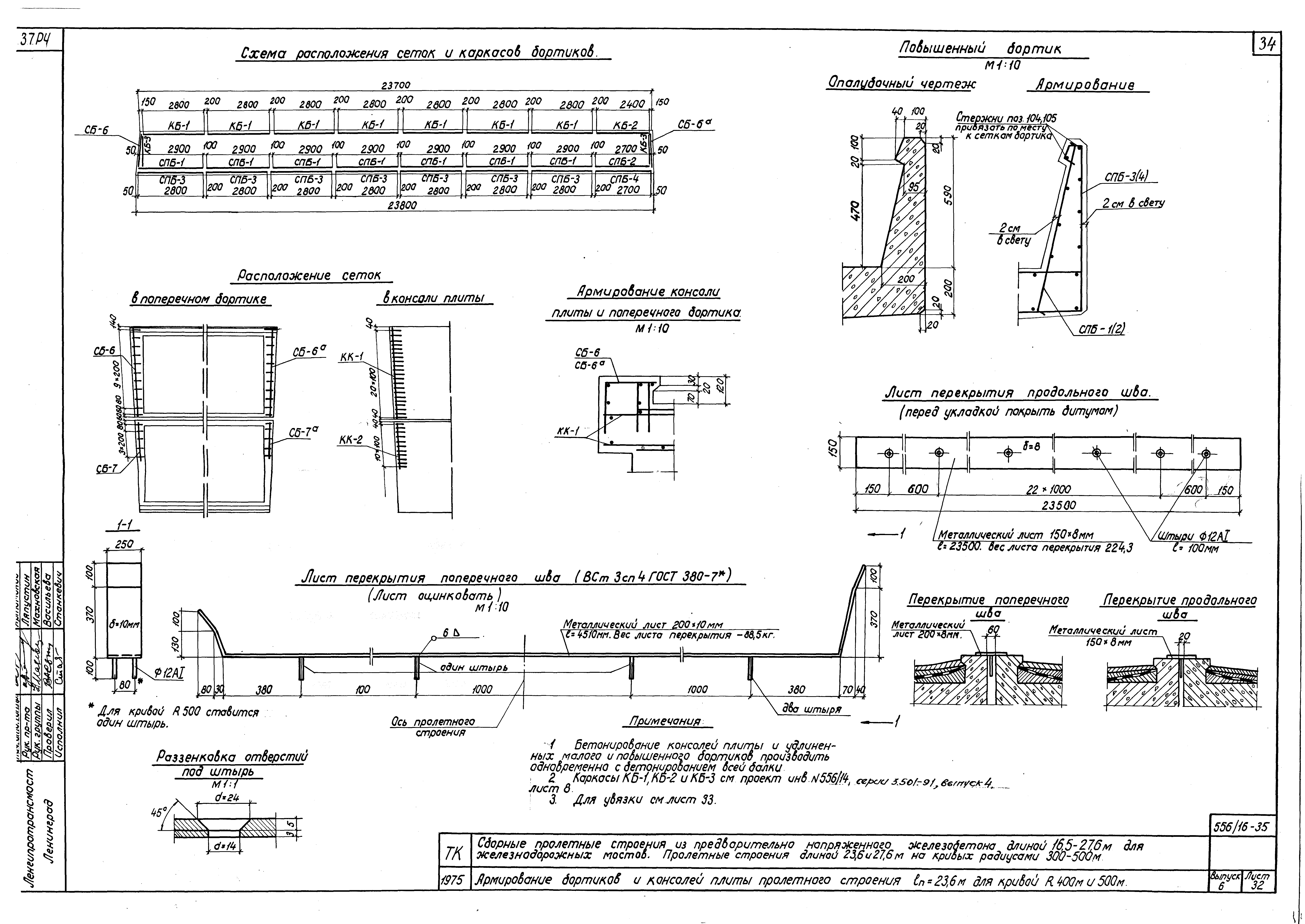
Скачать Серия 3.501-91 Выпуск 6. Пролетные строения длиной 23,6 и 27,6 м на кривых радиусами 300 - 500 мДата актуализации: 10.08.2017 Серия 3.501-91
Выпуск 6. Пролетные строения длиной 23,6 и 27,6 м на кривых радиусами 300 - 500 мОбозначение: | Серия 3.501-91 | Обозначение англ: | Series 3.501-91 | Статус: | действует | Название рус.: | Выпуск 6. Пролетные строения длиной 23,6 и 27,6 м на кривых радиусами 300 - 500 м | Дата добавления в базу: | 01.09.2013 | Дата актуализации: | 05.05.2017 | Дата введения: | 01.05.1976 | Разработан: | Ленгипротрансмост
| Утверждён: | 03.02.1976 МПС (Ministry of Railroads П-3395)
| Расположен в: |
|
                                       
|