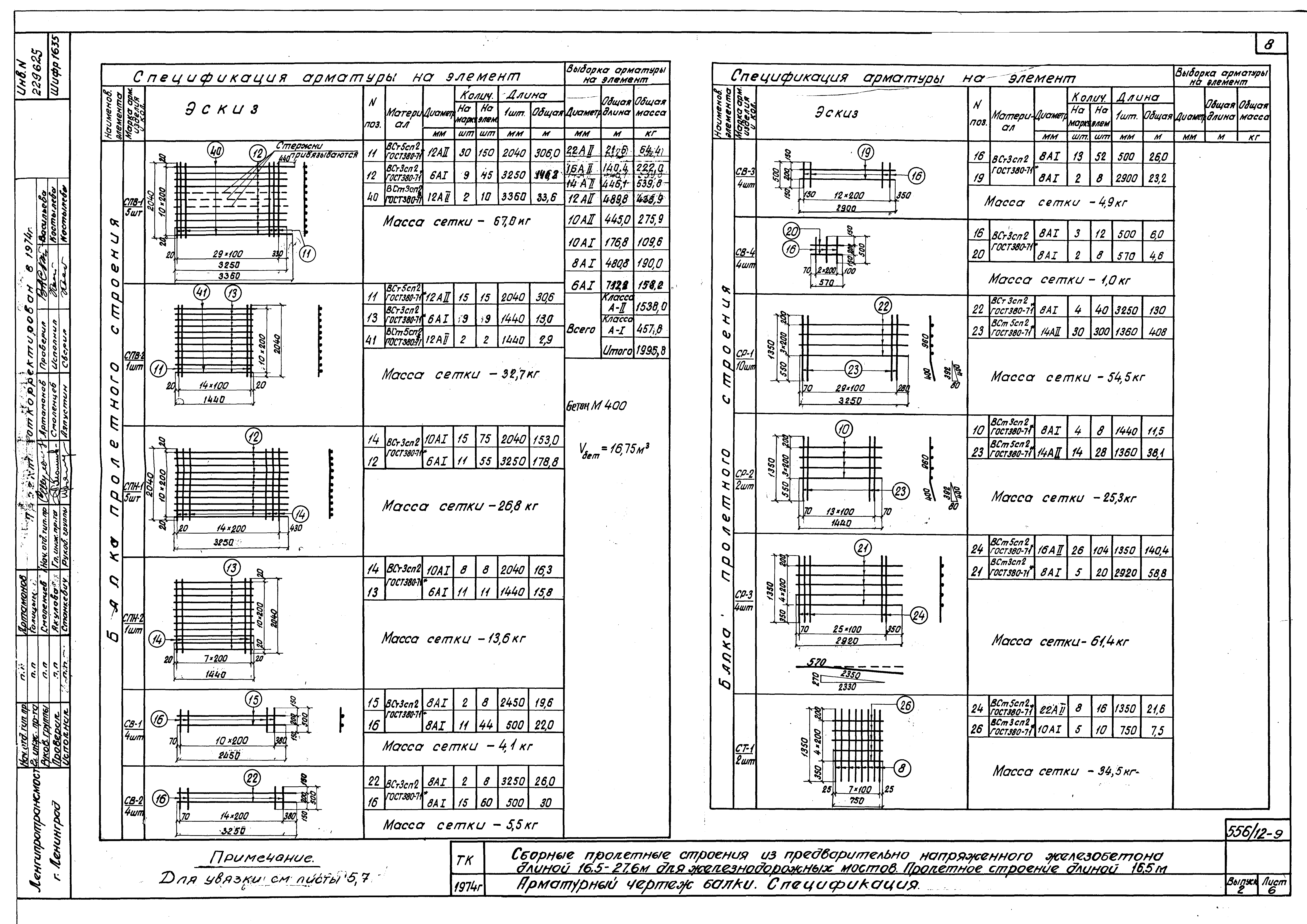
Скачать Серия 3.501-91 Выпуск 2. Пролетное строение длиной 16,5 мДата актуализации: 10.08.2017 Серия 3.501-91
Выпуск 2. Пролетное строение длиной 16,5 мОбозначение: | Серия 3.501-91 | Обозначение англ: | Series 3.501-91 | Статус: | действует | Название рус.: | Выпуск 2. Пролетное строение длиной 16,5 м | Дата добавления в базу: | 01.09.2013 | Дата актуализации: | 05.05.2017 | Дата введения: | 01.04.1975 | Разработан: | Ленгипротрансмост
| Утверждён: | 20.01.1975 МПС (Ministry of Railroads А-1586)
| Расположен в: |
|
                        
|