Скачать Серия 3.407-85 Альбом VII. Металлические элементы опор ВЛ 0,4-20 кВДата актуализации: 10.08.2017 Серия 3.407-85
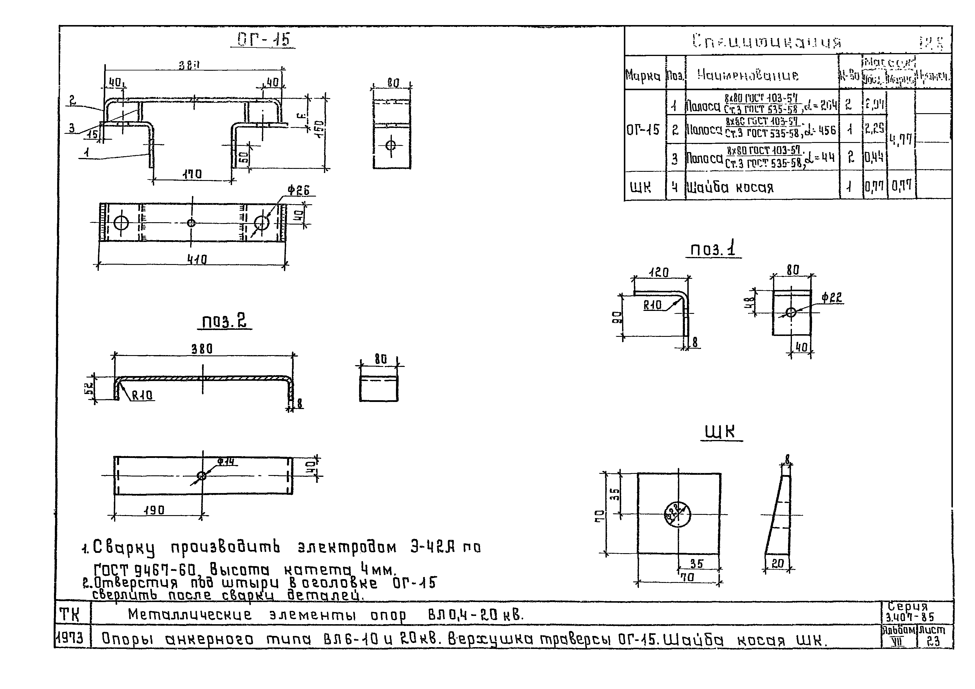
Альбом VII. Металлические элементы опор ВЛ 0,4-20 кВОбозначение: | Серия 3.407-85 | Обозначение англ: | Series 3.407-85 | Статус: | не определен законодательством | Название рус.: | Альбом VII. Металлические элементы опор ВЛ 0,4-20 кВ | Дата добавления в базу: | 01.09.2013 | Дата актуализации: | 05.05.2017 | Дата введения: | 01.10.1974 | Оглавление: | Пояснительная записка Введение Технические требования Чертежи Опоры анкерно-углового типа с траверсой ВЛ 0,4 кВ. Оголовок Ог-8 и Ог-6 Шпильки 20-560 и 20-660. Шайбы. Оголовки Ог-1; Ог-2; Ог-7 и ОГ-1а Установка светильника на опоре ВЛ 0,4 кВ. Кронштейн Кр-6 Промежуточные опоры ВЛ 0,4 кВ. Кронштейны Кр-1 и Кр-2 для установки секционных столбовых предохранителей на опоре Установка автоматического выключателя АП50 для секционирования магистрали на анкерной опоре ВЛ 0,4 кВ. Крепление ящика Я-1, соединяющих труб Тр-1 Труба Тр-2 и её крепление. Крепление ящика Я-2 Детали установки светильника с индивидуальным управлением Тр-3, полоса Кронштейн Кр-10 для установки разрядников РВН-0,5 Сварной болт для крепления железобетонной плиты. Шпилька для крепления железобетонной плиты. Раскос РМ-2. Шпильки для крепления траверс Шп-1 и Шп-2 Болты Опоры анкерно-углового типа ВЛ 6-10 кВ. Оголовок ОГ-3 Опоры анкерно-углового типа ВЛ 20 кВ. Оголовок ОГ-4 и ОГ-5 Оголовок ОГ-9. Установка кабельной муфты на концевых опорах. Кронштейн Кр-11 Угловые анкерные опоры Вл10 и 20 кВ. Упор подкоса Уп-1 Повышение опоры анкерно-углового типа ВЛ 10 и 20 кВ. Упор подкоса Уп-2 Опоры анкерно-углового типа ВЛ 10 и 20 кВ. Деталь крепления подкоса ДКП. Шпонка-вкладыш Шпв Повышенные промежуточные опоры ОЛ 10 кВ. Полосы ПЛ-2 и ПЛ-3 Опоры анкерно-углового типа ВЛ 10 и 20 кВ. Хомут стяжной Хст. Полосы Пл-1 и Пл-6 Опоры анкерного типа со штыревыми изоляторами. Оголовок Ог-14 Угловые промежуточные опоры. Оголовок Ог-10 Угловые анкерные опоры. Оголовок Ог-11 Угловые анкерные опоры. Хомуты Х-1, Х-1а, Х-5, Х-6, Х-7. Уголки Опоры анкерного типа ВЛ 6-10 и 20 кВ. Верхушка траверсы ОГ-15. Шайба косая ШК Установка трубчатых разрядников на опорах ВЛ 6-10 кВ. Электрод подвижный Э-1. Кронштейн Кр-3. Полухомут Пх-1 Установка трубчатых разрядников. Кронштейн Кр-7. Электрод Э-4. Швеллер поз. 14 Установка трубчатых разрядников на опорах ВЛ 20 кВ. Полухомут с зажимом Пх-3. Полухомут с держателем регулируемого электрода Пх-2 Установка трубчатых разрядников на опорах ВЛ 6-10 и 20 кВ. Кронштейн для разрядника Кр-5. Хомуты Х-2; Х-3; Х-8. Скобы СК-1; СК-2; СК-3 Установка трубчатых разрядников на опорах ВЛ 20 кВ. Неподвижный электрод Э-2. Регулируемый электрод Э-3. Пластина Пл-5. Промежуточные опоры ВЛ10 и 20 кВ. Раскос Рм-1 и Рм-3. опоры ВЛ 6-20 кВ. Шайба фасонная ШФ Установка кабельной муфты на опорах ВЛ 10 и 20 кВ. Кронштейны Кр-4 и Кр-9 Установка кабельной муфты на опорах ВЛ 20 кВ. Кронштейн Кр-8 Установка разъединителя на концевой опоре. Швеллер № 12. Хомуты Х-9 и Х-10 Припасовочные хомуты Х-11, Х-12, Х-13 и Х-14 Крепление деревянного ригеля к железобетонным приставкам. Хомут Х-4. Ригель Р1-ж | Разработан: | Сельэнергопроект Минэнерго СССР
| Утверждён: | 01.10.1974 Минэнерго СССР (USSR Minenergo 194)
| Принят: | 01.10.1974 Госстрой СССР (Государственный комитет Совета Министров СССР по делам строительства) (USSR Gosstroy 194)
| Расположен в: |
|
                                   
|