Скачать Серия 3.501.2-123 Выпуск 1. Альбом 3. Монтажные чертежи и указания по их применению. Электротехническая часть осветительных мачт, расположенных менее 5 м от частей контактной сетиДата актуализации: 10.08.2017 Серия 3.501.2-123
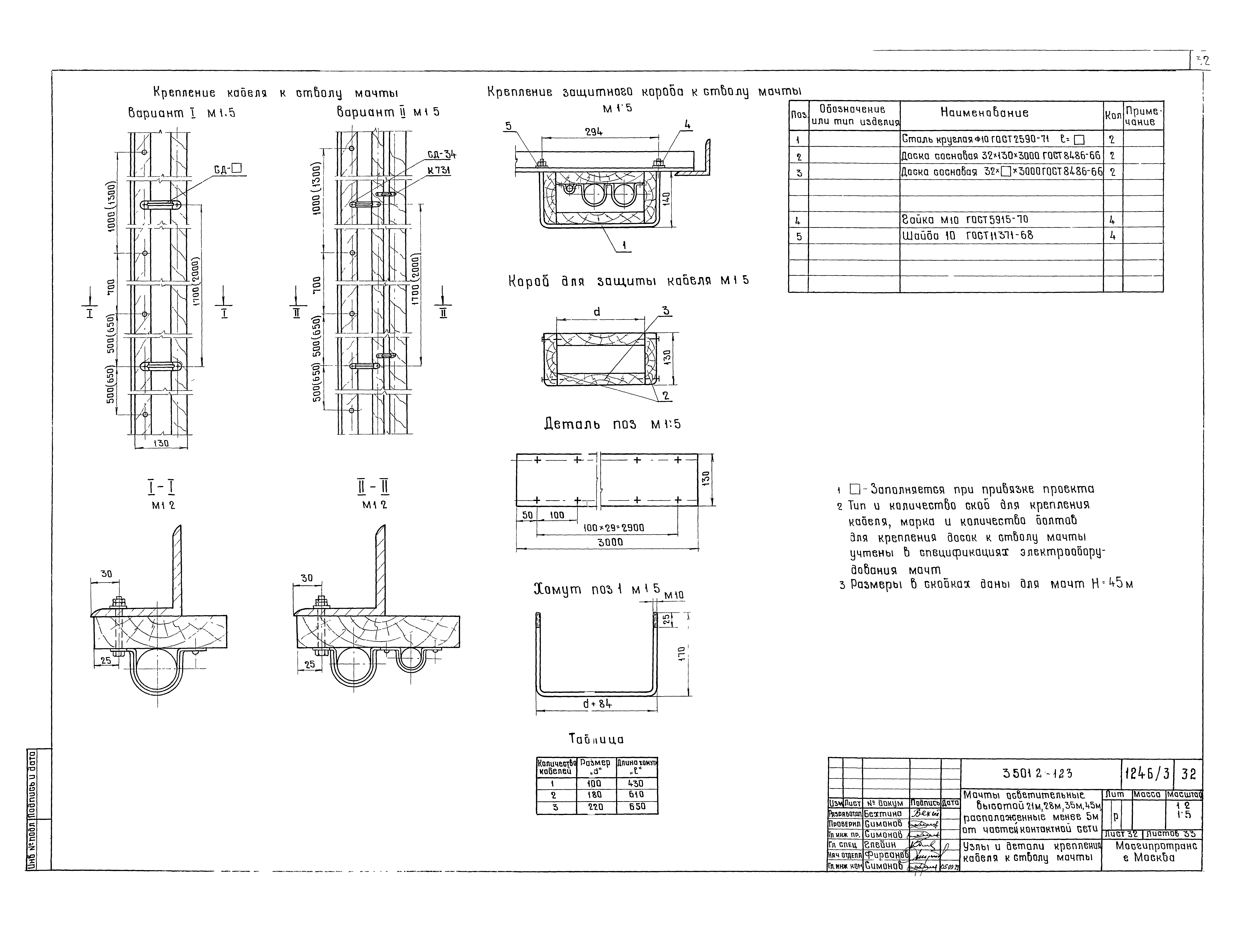
Выпуск 1. Альбом 3. Монтажные чертежи и указания по их применению. Электротехническая часть осветительных мачт, расположенных менее 5 м от частей контактной сетиОбозначение: | Серия 3.501.2-123 | Обозначение англ: | Series 3.501.2-123 | Статус: | не определен законодательством | Название рус.: | Выпуск 1. Альбом 3. Монтажные чертежи и указания по их применению. Электротехническая часть осветительных мачт, расположенных менее 5 м от частей контактной сети | Дата добавления в базу: | 01.09.2013 | Дата актуализации: | 05.05.2017 | Дата введения: | 01.01.1981 | Оглавление: | Пояснительная записка Таблица выбора вариантов Мачты осветительные высотой 21 м, 28 м, расположенные менее 5 м от частей контактной сети Электрооборудование мачт с площадкой типа П-1 Электрооборудование площадки типа П-1. Вариант I Электрооборудование площадки типа П-1. Вариант II Электрооборудование мачт с площадкой типа П-2. Варианты I, II Электрооборудование площадки типа П-2. Вариант I Электрооборудование площадки типа П-2. Вариант II Схемы электрооборудования мачт с площадками типов П-1 и П-2. Варианты I, II Мачты осветительные высотой 28 м, 35 м, 45 м, расположенные менее 5 м от частей контактной сети Электрооборудование мачты высотой 28 м с площадкой типа П-2. Варианты III, IV, V Электрооборудование мачты высотой 35 м, 45 м с площадкой типа П-2. Варианты III, IV, V Электрооборудование площадки типа П-2. Вариант III Электрооборудование площадки типа П-2. Вариант IV Электрооборудование площадки типа П-2. Вариант V Схемы электрооборудования мачт с площадкой типа П-2. Варианты III, IV, V Мачта осветительная высотой 35 м, расположенная менее 5 м от частей контактной сети Спецификация Электрооборудование мачты с площадкой типа П-3 Электрооборудование площадки типа П-3. Варианты I, II Электрооборудование площадки типа П-3. Вариант III Схемы электрооборудования мачты с площадкой типа П-3 Мачта осветительная высотой 45 м, расположенная менее 5 м от частей контактной сети Электрооборудование мачты с площадкой типа П-4 Электрооборудование площадки типа П-4. Варианты I, II Электрооборудование площадки типа П-4. Вариант III Схемы электрооборудования мачты с площадкой типа П-4 Мачты осветительные высотой 21 м, 28 м, 35 м, 45 м, расположенные менее 5 м от частей контактной сети Детали для крепления ЯАЕ2-24 к площадкам Узлы и детали крепления светильника ГсХР-400 к площадкам П-3, П-4 Узлы и конструкции крепления вводного и кабельного ящиков на мачтах высотой 21 м, 28 м, 35 м Узлы и конструкции крепления вводного и кабельного ящиков на мачтах высотой 45 м Узлы и конструкции крепления шкафа управления Узлы и детали крепления кабеля к стволу мачты Компенсирующее устройство | Разработан: | Мосгипротранс
| Утверждён: | 18.09.1979 МПС (Ministry of Railroads П-30817)
| Расположен в: |
|
                               
|