Информационная система
«Ёшкин Кот»

Скачать базу одним архивом
Скачать обновления
История создания базы
Карта сайта

Скачать Серия 3.501.2-123 Выпуск 1. Альбом 2. Монтажные чертежи и указания по их применению. Электротехническая часть осветительных мачт

Дата актуализации: 10.08.2017

Серия 3.501.2-123

Выпуск 1. Альбом 2. Монтажные чертежи и указания по их применению. Электротехническая часть осветительных мачт

Обозначение: Серия 3.501.2-123
Обозначение англ: Series 3.501.2-123
Статус:не определен законодательством
Название рус.:Выпуск 1. Альбом 2. Монтажные чертежи и указания по их применению. Электротехническая часть осветительных мачт
Дата добавления в базу:01.09.2013
Дата актуализации:05.05.2017
Дата введения:01.01.1981
Оглавление:Пояснительная записка
Таблица выбора вариантов
Мачты осветительные высотой 21 м, 28 м
   Электрооборудование мачт с площадкой типа П-1
   Электрооборудование площадки типа П-1. Вариант I
   Электрооборудование площадки типа П-1. Вариант II
   Электрооборудование мачт с площадкой типа П-2. Варианты I, II
   Электрооборудование площадки типа П-2. Вариант I
   Электрооборудование площадки типа П-2. Вариант II
   Схемы электрооборудования мачт с площадками типов П-1 и П-2. Варианты I, II
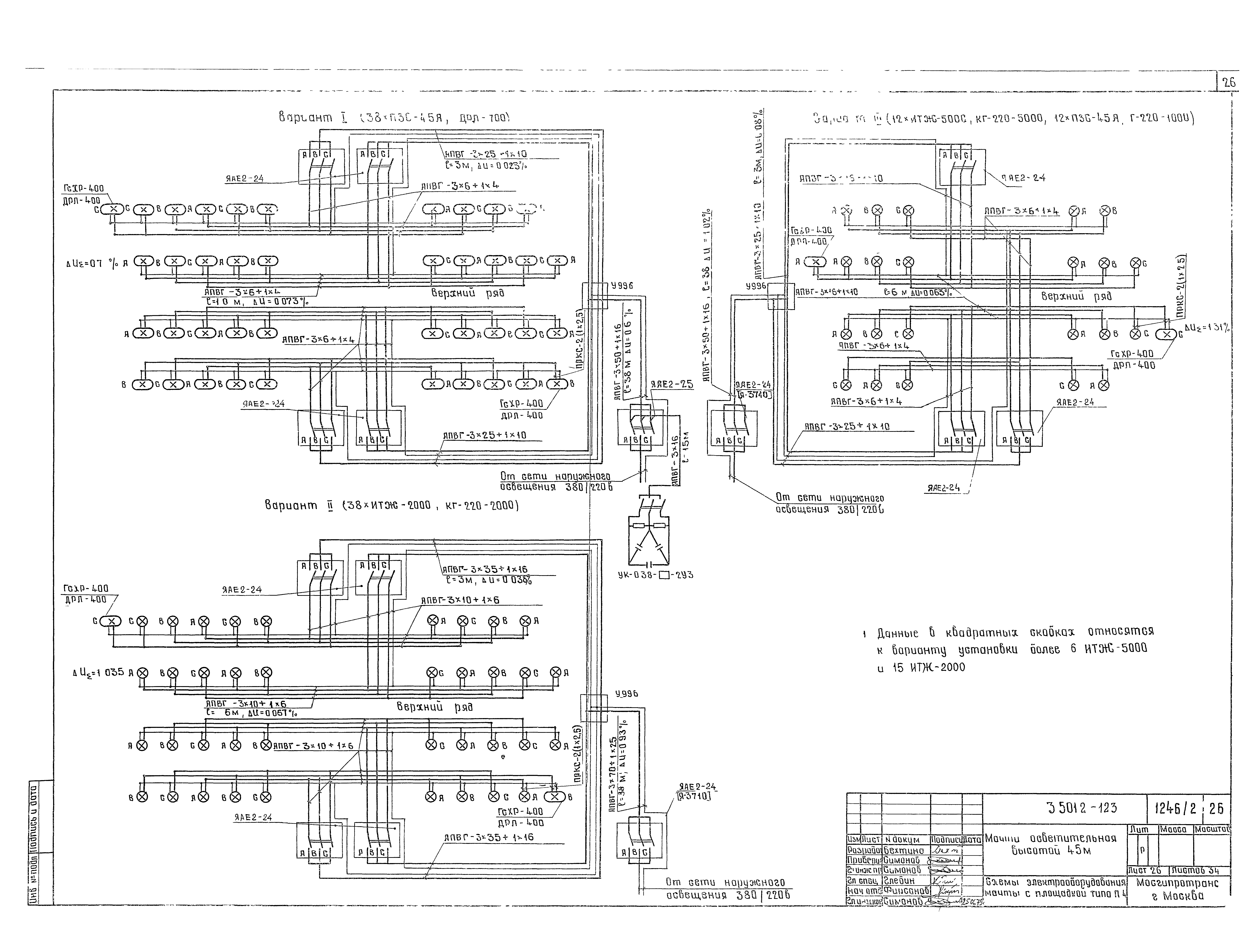
Мачты осветительные высотой 28 м, 35 м, 45 м
   Электрооборудование мачты высотой 28 м с площадкой типа П-2. Варианты III, IV, V
   Электрооборудование мачт высотой 35 м, 45 м с площадкой типа П-2. Варианты III, IV, V
   Электрооборудование площадки типа П-2. Вариант III
   Электрооборудование площадки типа П-2. Вариант IV
   Электрооборудование площадки типа П-2. Вариант V
   Схемы электрооборудования мачт с площадкой типа П-2. Варианты III, IV, V
Мачта осветительная высотой 35 м
   Спецификация
   Электрооборудование мачты с площадкой типа П-3
   Электрооборудование площадки типа П-3. Варианты I, II
   Электрооборудование площадки типа П-3. Вариант III
   Схемы электрооборудования мачты с площадкой типа П-3
Мачта осветительная высотой 45 м
   Электрооборудование мачты с площадкой типа П-4
   Электрооборудование площадки типа П-4. Варианты I, II
   Электрооборудование площадки типа П-4. Вариант III
   Схемы электрооборудования мачты с площадкой типа П-4
Мачты осветительные высотой 21 м, 28 м, 35 м, 45 м
   Детали для крепления ЯАЕ2-24 к площадкам
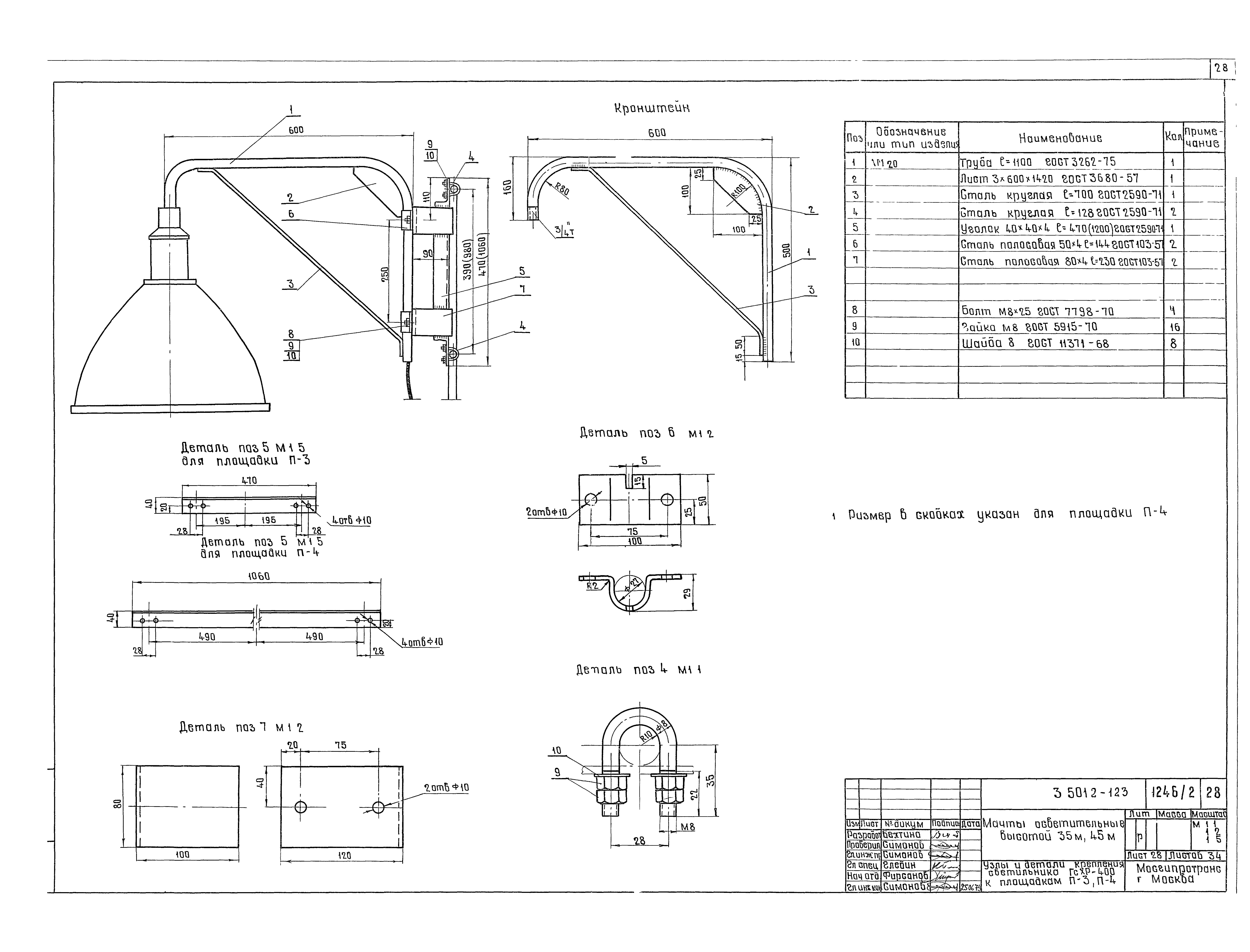
   Узлы и детали крепления светильника ГсХР-400 к площадкам П-3, П-4
   Узлы и конструкции крепления вводного и кабельного ящиков на мачтах высотой 21 м, 28 м, 35 м
   Узлы и конструкции крепления вводного и кабельного ящиков на мачтах высотой 45 м
   Узлы и конструкции крепления шкафа управления
   Узлы и детали крепления кабелей к стволу мачты
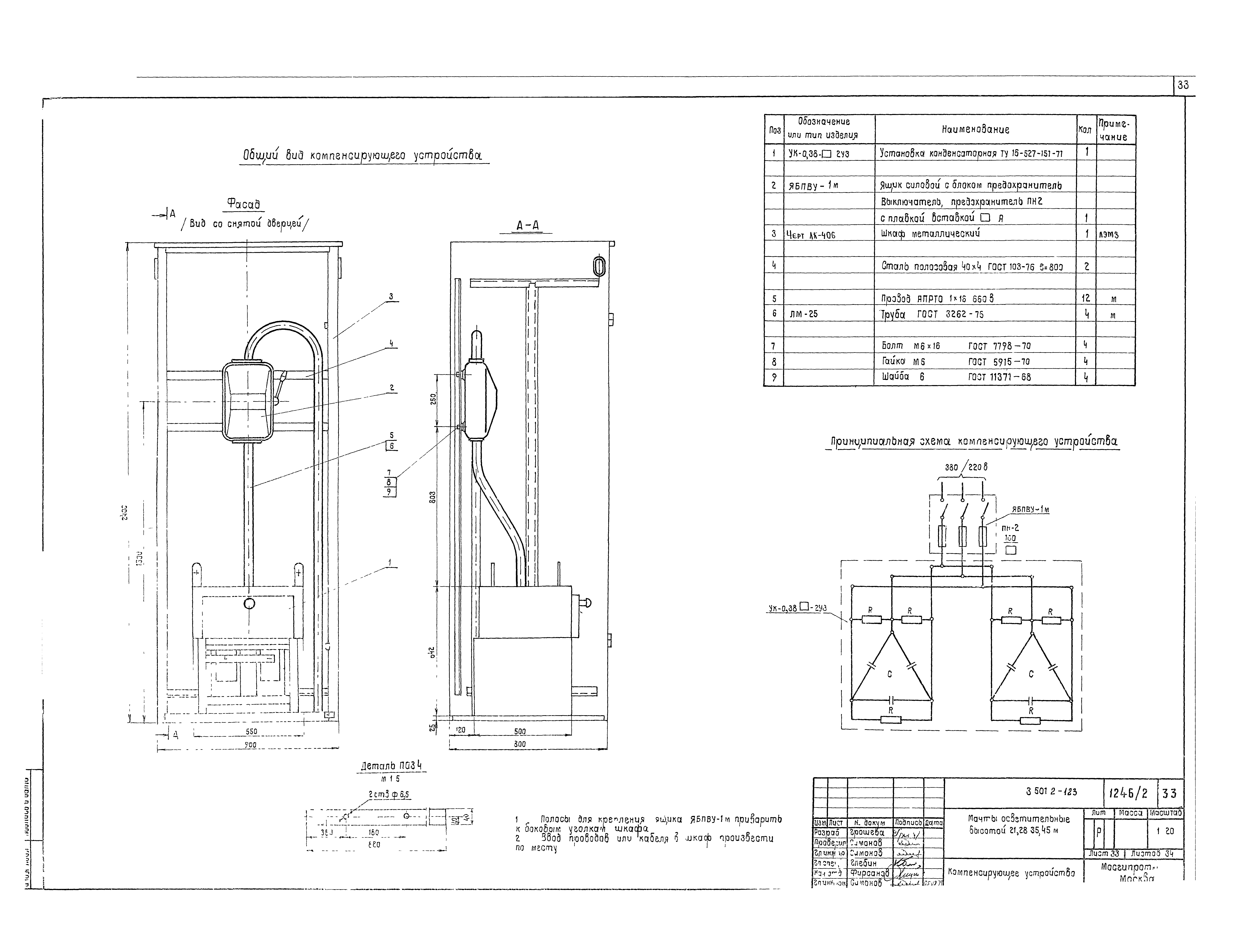
   Компенсирующее устройство
   Заземление мачт
Разработан: Мосгипротранс
Утверждён:18.09.1979 МПС (Ministry of Railroads П-30817)
Расположен в:Техническая документация Строительство Справочные документы Типовые строительные конструкции, изделия и узлы Общероссийский строительный каталог Строительные конструкции, изделия и узлы зданий и сооружений для всех видов строительства Конструкции и изделия сооружений и оборудования зданий Надземные сооружения Опоры и порталы линий электропередачи, освещения, связи и др. Стальные
Серия 3.501.2-123Серия 3.501.2-123Серия 3.501.2-123Серия 3.501.2-123Серия 3.501.2-123Серия 3.501.2-123Серия 3.501.2-123Серия 3.501.2-123Серия 3.501.2-123Серия 3.501.2-123Серия 3.501.2-123Серия 3.501.2-123Серия 3.501.2-123Серия 3.501.2-123Серия 3.501.2-123Серия 3.501.2-123Серия 3.501.2-123Серия 3.501.2-123Серия 3.501.2-123Серия 3.501.2-123Серия 3.501.2-123Серия 3.501.2-123Серия 3.501.2-123Серия 3.501.2-123Серия 3.501.2-123Серия 3.501.2-123Серия 3.501.2-123Серия 3.501.2-123Серия 3.501.2-123Серия 3.501.2-123Серия 3.501.2-123Серия 3.501.2-123Серия 3.501.2-123Серия 3.501.2-123

© 2013 Ёшкин Кот :-) Карта сайта