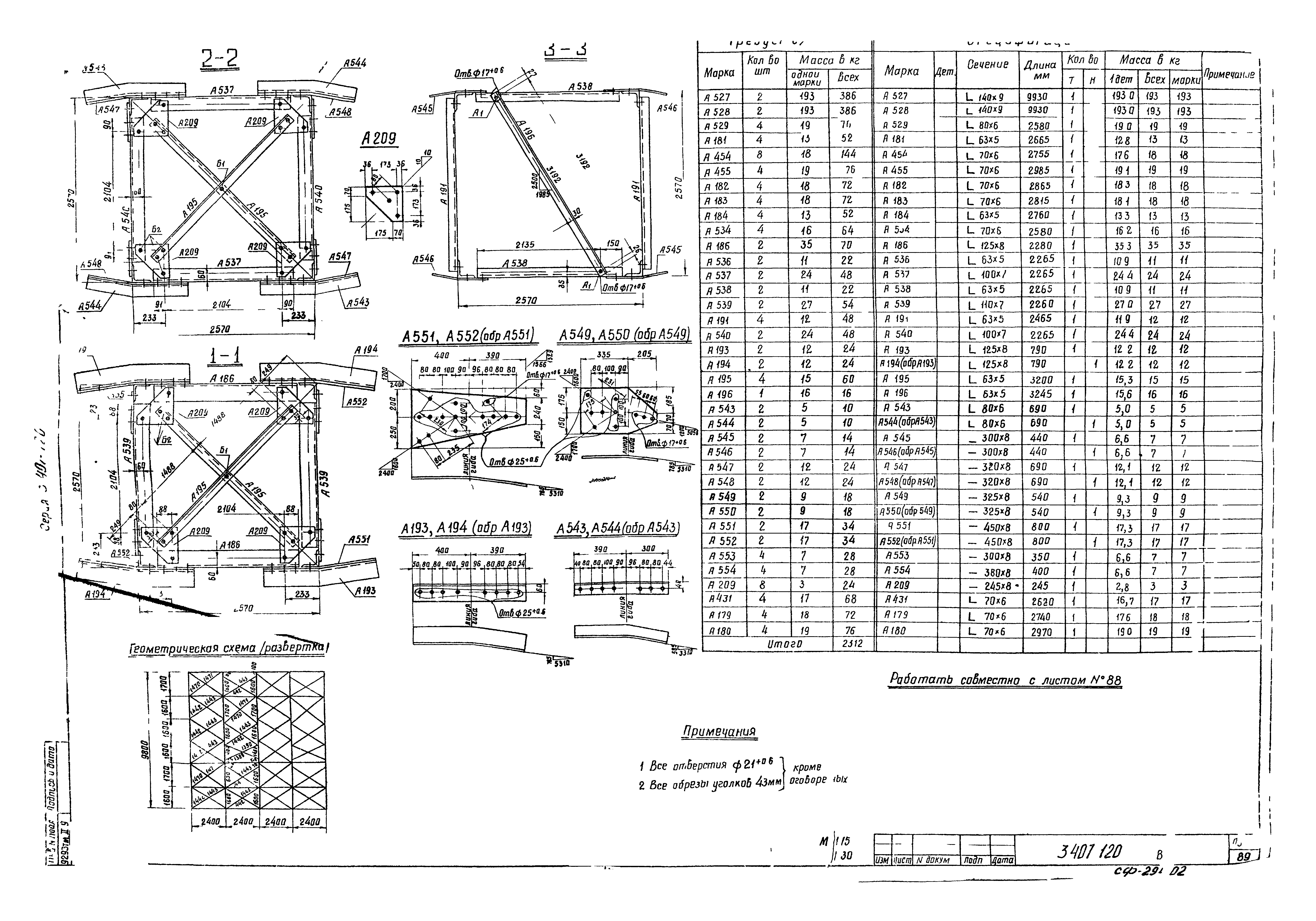
Скачать Серия 3.407-120 Выпуск 2. Рабочие чертежи опор ВЛ 220 кВДата актуализации: 10.08.2017 Серия 3.407-120
Выпуск 2. Рабочие чертежи опор ВЛ 220 кВОбозначение: | Серия 3.407-120 | Обозначение англ: | Series 3.407-120 | Статус: | действует | Название рус.: | Выпуск 2. Рабочие чертежи опор ВЛ 220 кВ | Дата добавления в базу: | 01.09.2013 | Дата актуализации: | 05.05.2017 | Дата введения: | 01.01.1978 | Разработан: | Севзапэнергосетьпроект
| Утверждён: | 28.05.1977 Минэнерго СССР (USSR Minenergo )
| Расположен в: |
|
                                                                                       
|