Информационная система
«Ёшкин Кот»

Скачать базу одним архивом
Скачать обновления
История создания базы
Карта сайта

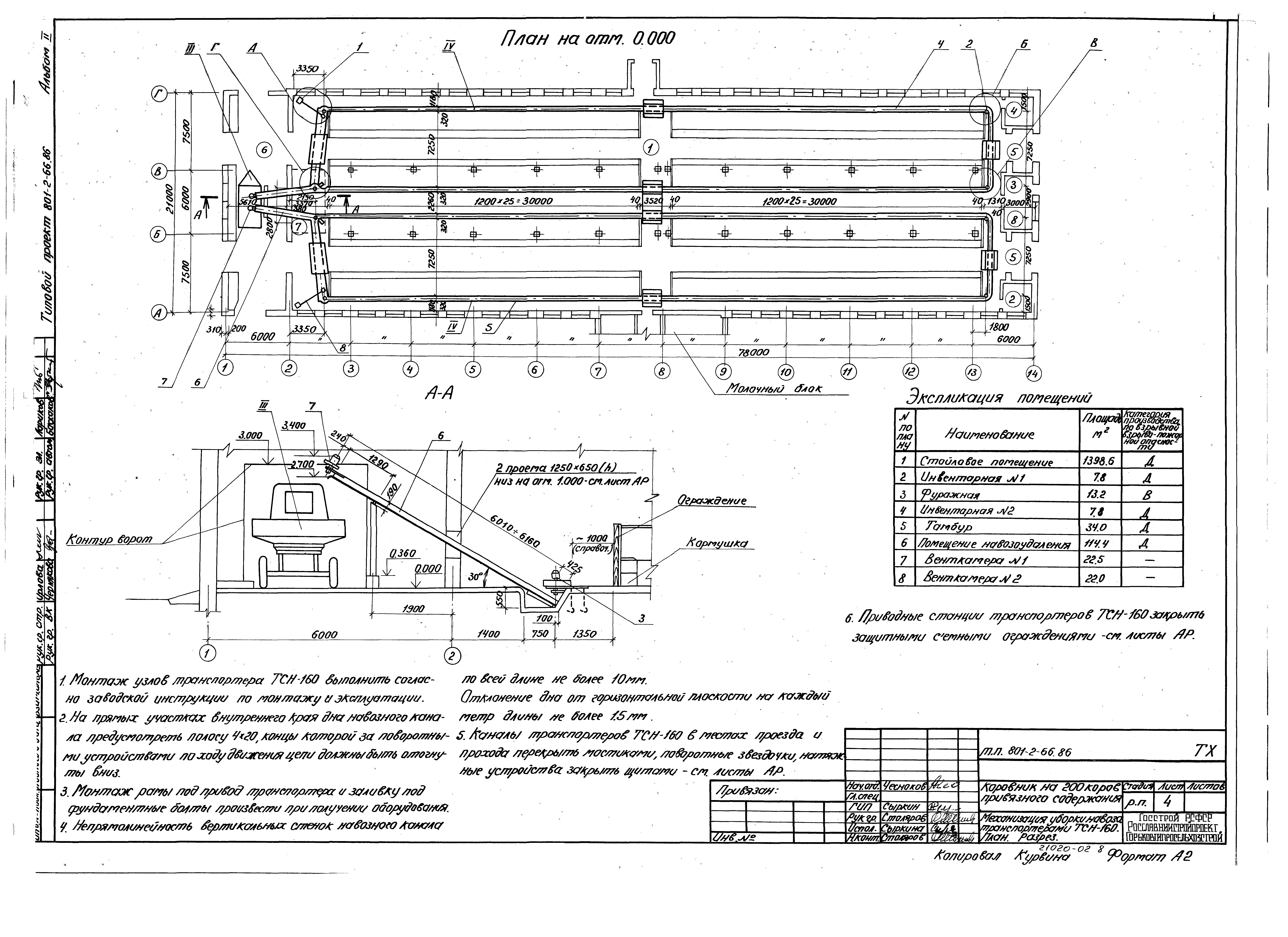
Скачать Типовой проект 801-2-66.86 Альбом II. Технология и механизация производственных процессов. Отопление и вентиляция. Внутренние водопровод и канализация. Электротехнические чертежи. Автоматизация санитарно-технических систем

Дата актуализации: 10.08.2017

Типовой проект 801-2-66.86

Альбом II. Технология и механизация производственных процессов. Отопление и вентиляция. Внутренние водопровод и канализация. Электротехнические чертежи. Автоматизация санитарно-технических систем

Обозначение: Типовой проект 801-2-66.86
Обозначение англ: 801-2-66.86
Статус:не определен законодательством
Название рус.:Альбом II. Технология и механизация производственных процессов. Отопление и вентиляция. Внутренние водопровод и канализация. Электротехнические чертежи. Автоматизация санитарно-технических систем
Дата добавления в базу:01.09.2013
Дата актуализации:05.05.2017
Дата введения:30.10.1984
Разработан: Институт Горьковгипросельхозстрой
Утверждён:22.06.1984 Минсельхоз РСФСР (Russian Federation Minselkhoz 20)
Расположен в:Техническая документация Строительство Справочные документы Типовые строительные конструкции, изделия и узлы Общероссийский строительный каталог Сельскохозяйственные предприятия, здания и сооружения Предприятия, здания и сооружения для крупного рогатого скота Здания и сооружения Производство молока и выращивание нетелей Коровники
Типовой проект 801-2-66.86Типовой проект 801-2-66.86Типовой проект 801-2-66.86Типовой проект 801-2-66.86Типовой проект 801-2-66.86Типовой проект 801-2-66.86Типовой проект 801-2-66.86Типовой проект 801-2-66.86Типовой проект 801-2-66.86Типовой проект 801-2-66.86Типовой проект 801-2-66.86Типовой проект 801-2-66.86Типовой проект 801-2-66.86Типовой проект 801-2-66.86Типовой проект 801-2-66.86Типовой проект 801-2-66.86Типовой проект 801-2-66.86Типовой проект 801-2-66.86Типовой проект 801-2-66.86Типовой проект 801-2-66.86Типовой проект 801-2-66.86Типовой проект 801-2-66.86Типовой проект 801-2-66.86Типовой проект 801-2-66.86Типовой проект 801-2-66.86Типовой проект 801-2-66.86Типовой проект 801-2-66.86Типовой проект 801-2-66.86Типовой проект 801-2-66.86Типовой проект 801-2-66.86Типовой проект 801-2-66.86Типовой проект 801-2-66.86Типовой проект 801-2-66.86Типовой проект 801-2-66.86Типовой проект 801-2-66.86Типовой проект 801-2-66.86Типовой проект 801-2-66.86Типовой проект 801-2-66.86Типовой проект 801-2-66.86Типовой проект 801-2-66.86Типовой проект 801-2-66.86Типовой проект 801-2-66.86Типовой проект 801-2-66.86Типовой проект 801-2-66.86Типовой проект 801-2-66.86Типовой проект 801-2-66.86Типовой проект 801-2-66.86Типовой проект 801-2-66.86

© 2013 Ёшкин Кот :-) Карта сайта