Информационная система
«Ёшкин Кот»

Скачать базу одним архивом
Скачать обновления
История создания базы
Карта сайта

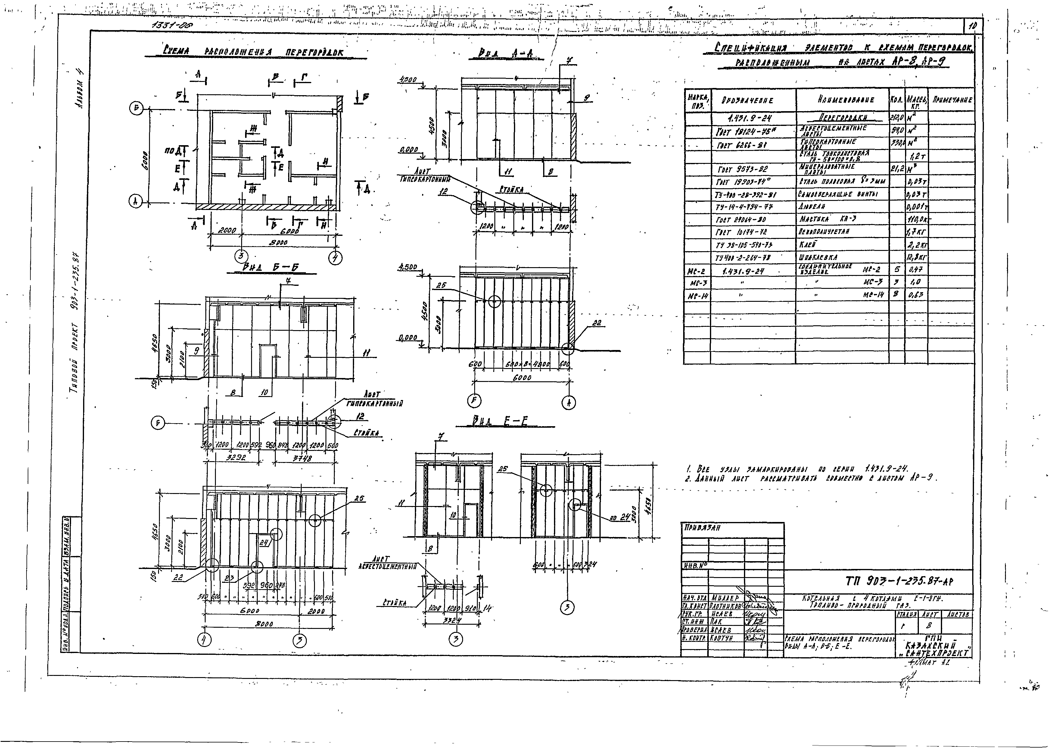
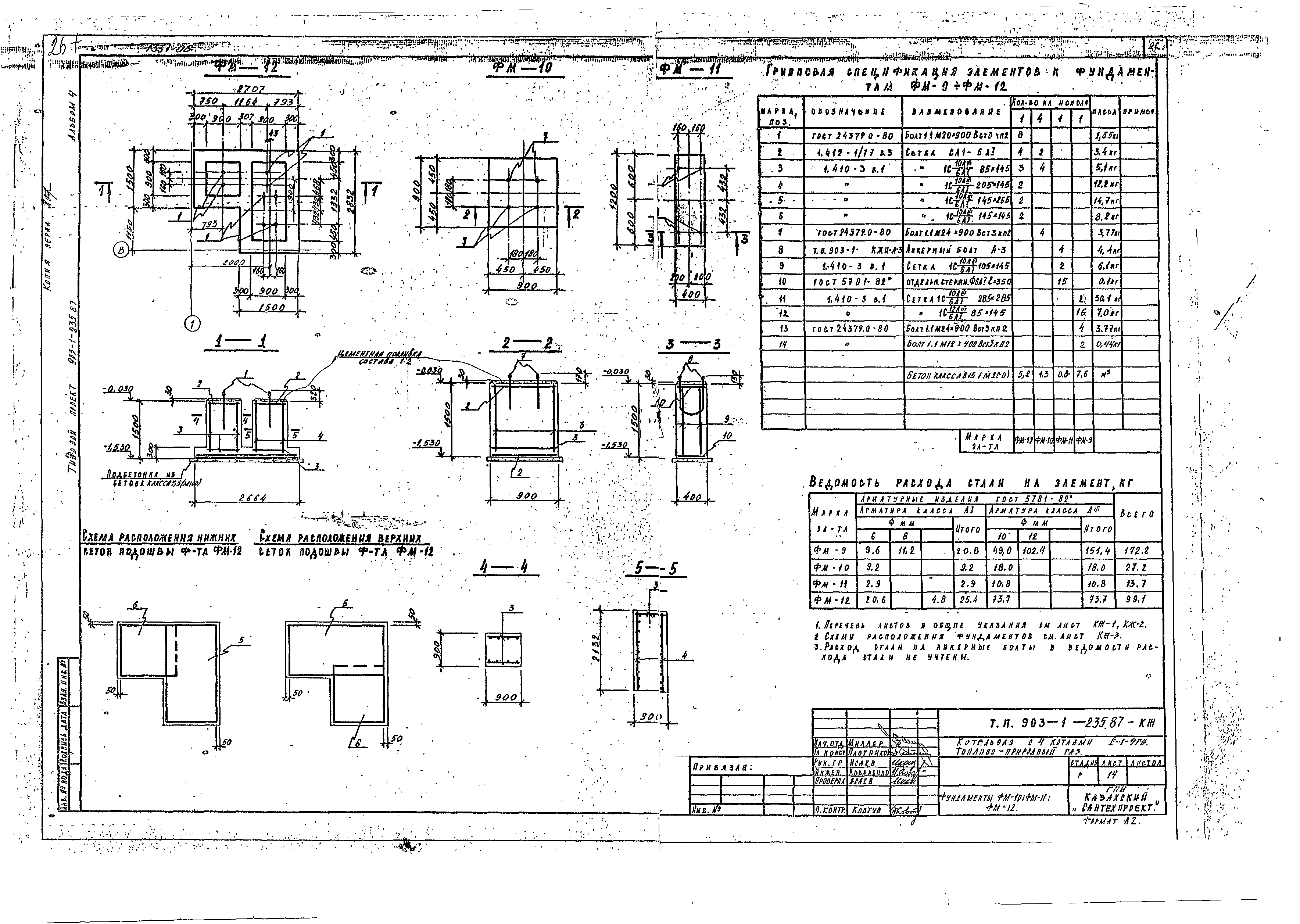
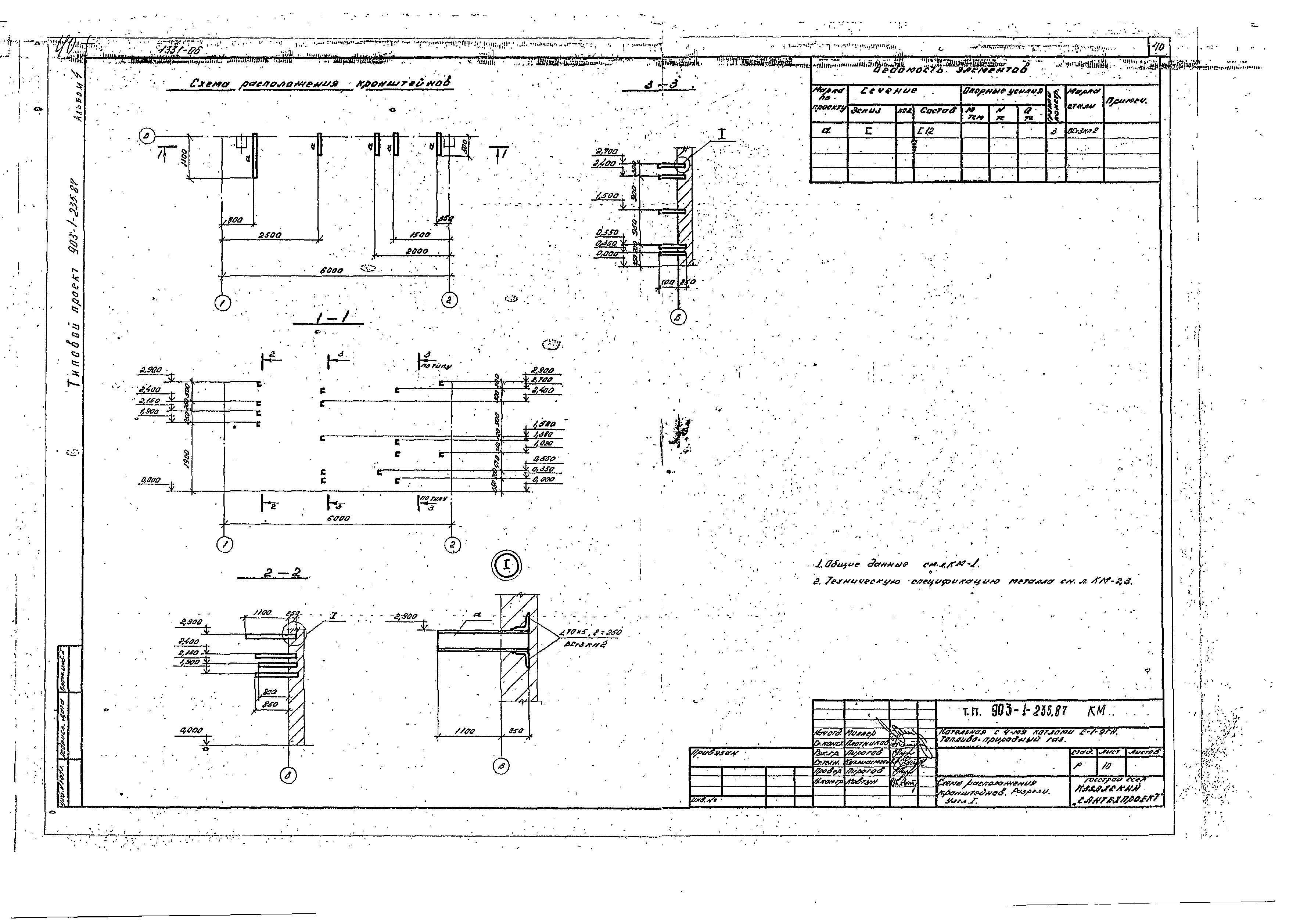
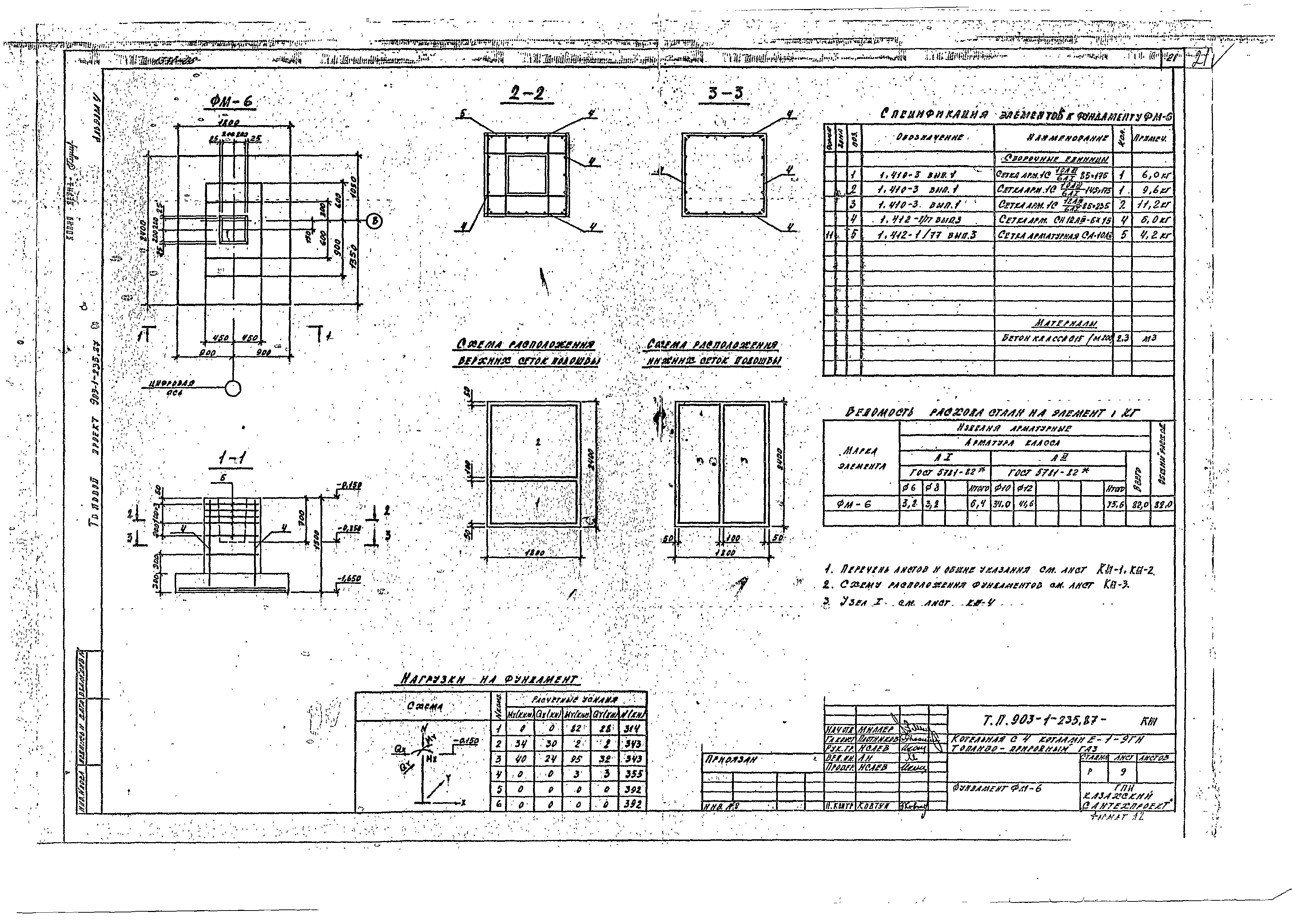
Скачать Типовой проект 903-1-235.87 Альбом 4. Архитектурные решения. Конструкции железобетонные. Конструкции металлические. Отопление и вентиляция

Дата актуализации: 10.08.2017

Типовой проект 903-1-235.87

Альбом 4. Архитектурные решения. Конструкции железобетонные. Конструкции металлические. Отопление и вентиляция

Обозначение: Типовой проект 903-1-235.87
Обозначение англ: 903-1-235.87
Статус:не определен законодательством
Название рус.:Альбом 4. Архитектурные решения. Конструкции железобетонные. Конструкции металлические. Отопление и вентиляция
Дата добавления в базу:01.09.2013
Дата актуализации:05.05.2017
Дата введения:27.11.1986
Разработан: ГПИ Казахский Сантехпроект Госстроя СССР
Утверждён:27.11.1986 ГПИ Сантехпроект (16/КУ-87)
Расположен в:Техническая документация Строительство Справочные документы Типовые строительные конструкции, изделия и узлы Общероссийский строительный каталог Промышленные предприятия, здания и сооружения Здания и сооружения санитарно-технические Теплоснабжение Котельные установки Закрытые системы теплоснабжения Топливо - газ
Заменяет собой:
  • Типовой проект 903-1-164
Типовой проект 903-1-235.87Типовой проект 903-1-235.87Типовой проект 903-1-235.87Типовой проект 903-1-235.87Типовой проект 903-1-235.87Типовой проект 903-1-235.87Типовой проект 903-1-235.87Типовой проект 903-1-235.87Типовой проект 903-1-235.87Типовой проект 903-1-235.87Типовой проект 903-1-235.87Типовой проект 903-1-235.87Типовой проект 903-1-235.87Типовой проект 903-1-235.87Типовой проект 903-1-235.87Типовой проект 903-1-235.87Типовой проект 903-1-235.87Типовой проект 903-1-235.87Типовой проект 903-1-235.87Типовой проект 903-1-235.87Типовой проект 903-1-235.87Типовой проект 903-1-235.87Типовой проект 903-1-235.87Типовой проект 903-1-235.87Типовой проект 903-1-235.87Типовой проект 903-1-235.87Типовой проект 903-1-235.87Типовой проект 903-1-235.87Типовой проект 903-1-235.87Типовой проект 903-1-235.87Типовой проект 903-1-235.87Типовой проект 903-1-235.87Типовой проект 903-1-235.87Типовой проект 903-1-235.87Типовой проект 903-1-235.87Типовой проект 903-1-235.87Типовой проект 903-1-235.87Типовой проект 903-1-235.87Типовой проект 903-1-235.87Типовой проект 903-1-235.87Типовой проект 903-1-235.87Типовой проект 903-1-235.87Типовой проект 903-1-235.87Типовой проект 903-1-235.87Типовой проект 903-1-235.87

© 2013 Ёшкин Кот :-) Карта сайта