Информационная система
«Ёшкин Кот»

Скачать базу одним архивом
Скачать обновления
История создания базы
Карта сайта

Скачать Типовой проект 902-9-20 Альбом IV. Электротехническая часть. Чертежи монтажной зоны и заготовительного участка

Дата актуализации: 10.08.2017

Типовой проект 902-9-20

Альбом IV. Электротехническая часть. Чертежи монтажной зоны и заготовительного участка

Обозначение: Типовой проект 902-9-20
Обозначение англ: 902-9-20
Статус:не определен законодательством
Название рус.:Альбом IV. Электротехническая часть. Чертежи монтажной зоны и заготовительного участка
Дата добавления в базу:01.09.2013
Дата актуализации:05.05.2017
Дата введения:24.03.1982
Оглавление:Общие данные
Ведомость электрооборудования и материалов (начало)
Ведомость электрооборудования и материалов (продолжение)
Ведомость электрооборудования и материалов (окончание)
2КТП 630 Схема принципиальная электрическая 0,4 кВ
Схема электрическая принципиальная питания электрооборудования. Лист 1
Схема электрическая принципиальная питания электрооборудования. Лист 2
Схемы электрические принципиальные управления турбовоздуходувкой. Лист 1
Схемы электрические принципиальные управления турбовоздуходувкой. Лист 2
Схема электрическая принципиальная управления насосами технической воды на постоянные нужды
Схемы электрические принципиальные управления насосами неуплотненого избыточного ила, дренажными насосами, насосами бытовой канализации
Схемы электрические принципиальные управления заслонками. Камеры фильтров
Схема электрическая принципиальная аварийной сигнализации
Схема подключения электрооборудования. Лист 1
Схема подключения электрооборудования. Лист 2
Схема подключения электрооборудования. Лист 3
Кабельный журнал. Лист 1
Кабельный журнал. Лист 2
Кабельный журнал. Лист 3
Размещение электрооборудования и прокладка кабеля. План на отм 0,000
Размещение электрооборудования и прокладка кабеля. План на отм -4,800 (-3,600) и 0,000
Размещение электрооборудования и прокладка кабеля. Спецификация
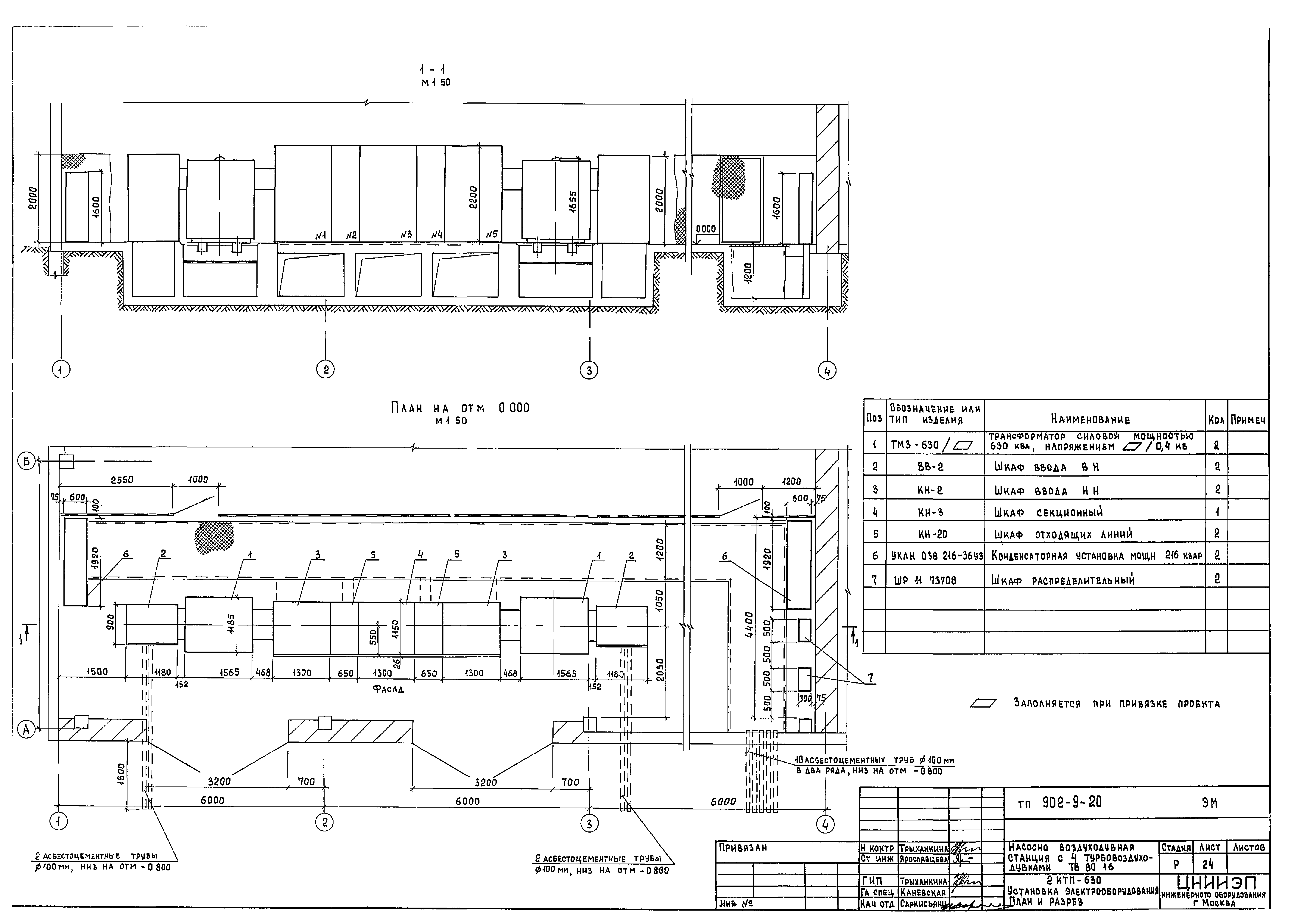
2 КТП 630. Установка электрооборудования. План и разрез
2КТП 630. Заземление. План
Электрическое освещение. План на отм 0,000 и -4,800
Опросный лист для заказа 2КТП 630 Хмельницкого завода трансформаторных подстанций
Разработан: ЦНИИЭП инженерного оборудования
Утверждён:22.07.1974 Госгражданстрой (Gosgrazhdanstroy 164)
Расположен в:Техническая документация Строительство Справочные документы Типовые строительные конструкции, изделия и узлы Общероссийский строительный каталог Промышленные предприятия, здания и сооружения Здания и сооружения санитарно-технические Канализация Сооружения для очистки производственных сточных вод Насосно-воздуходувные станции
Типовой проект 902-9-20Типовой проект 902-9-20Типовой проект 902-9-20Типовой проект 902-9-20Типовой проект 902-9-20Типовой проект 902-9-20Типовой проект 902-9-20Типовой проект 902-9-20Типовой проект 902-9-20Типовой проект 902-9-20Типовой проект 902-9-20Типовой проект 902-9-20Типовой проект 902-9-20Типовой проект 902-9-20Типовой проект 902-9-20Типовой проект 902-9-20Типовой проект 902-9-20Типовой проект 902-9-20Типовой проект 902-9-20Типовой проект 902-9-20Типовой проект 902-9-20Типовой проект 902-9-20Типовой проект 902-9-20Типовой проект 902-9-20Типовой проект 902-9-20Типовой проект 902-9-20Типовой проект 902-9-20Типовой проект 902-9-20Типовой проект 902-9-20Типовой проект 902-9-20Типовой проект 902-9-20Типовой проект 902-9-20Типовой проект 902-9-20

© 2013 Ёшкин Кот :-) Карта сайта