Скачать Типовой проект 902-9-14 Альбом II. Технологическая, санитарно-техническая, электротехническая части, нестандартизированное оборудованиеДата актуализации: 10.08.2017 Типовой проект 902-9-14
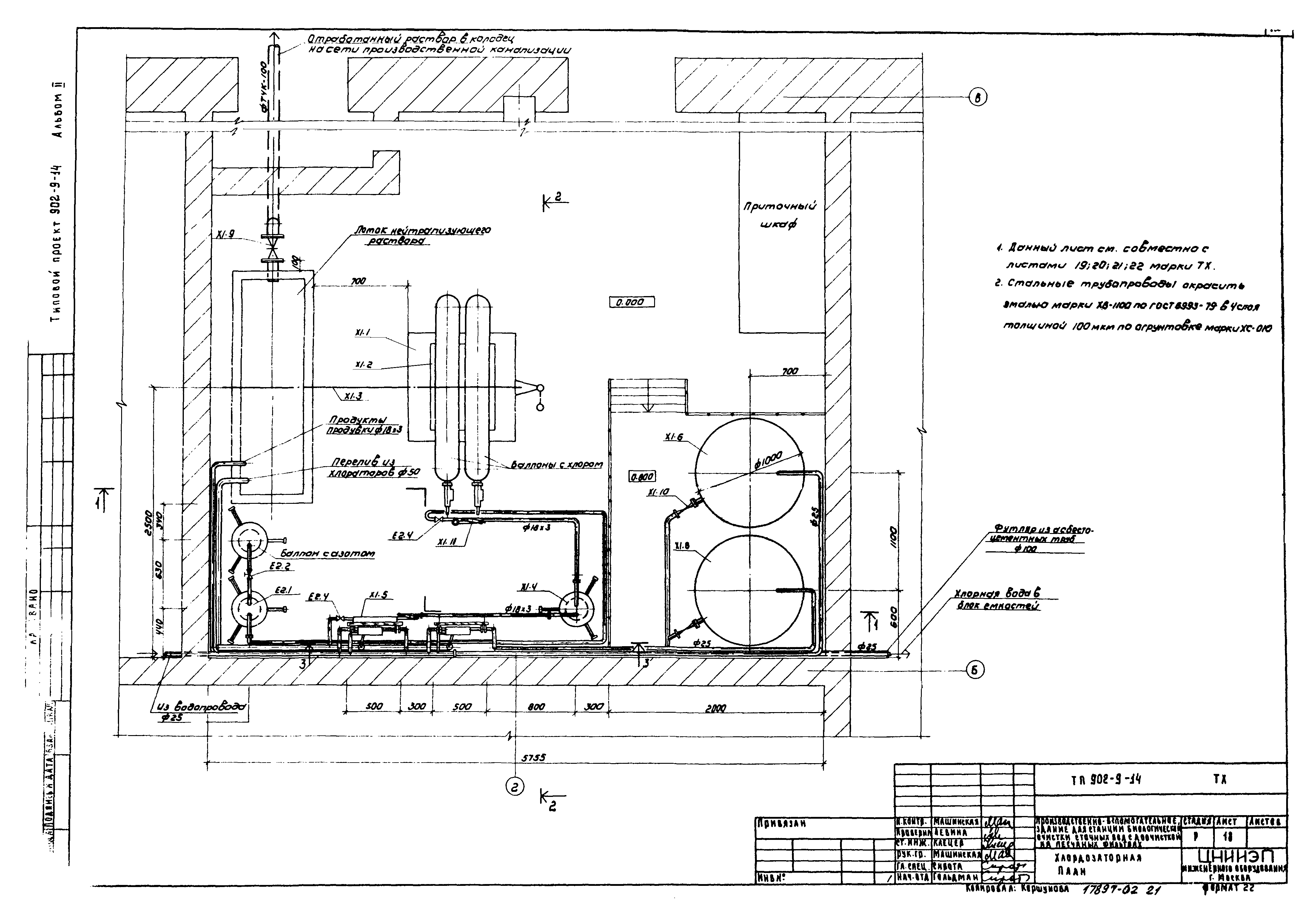
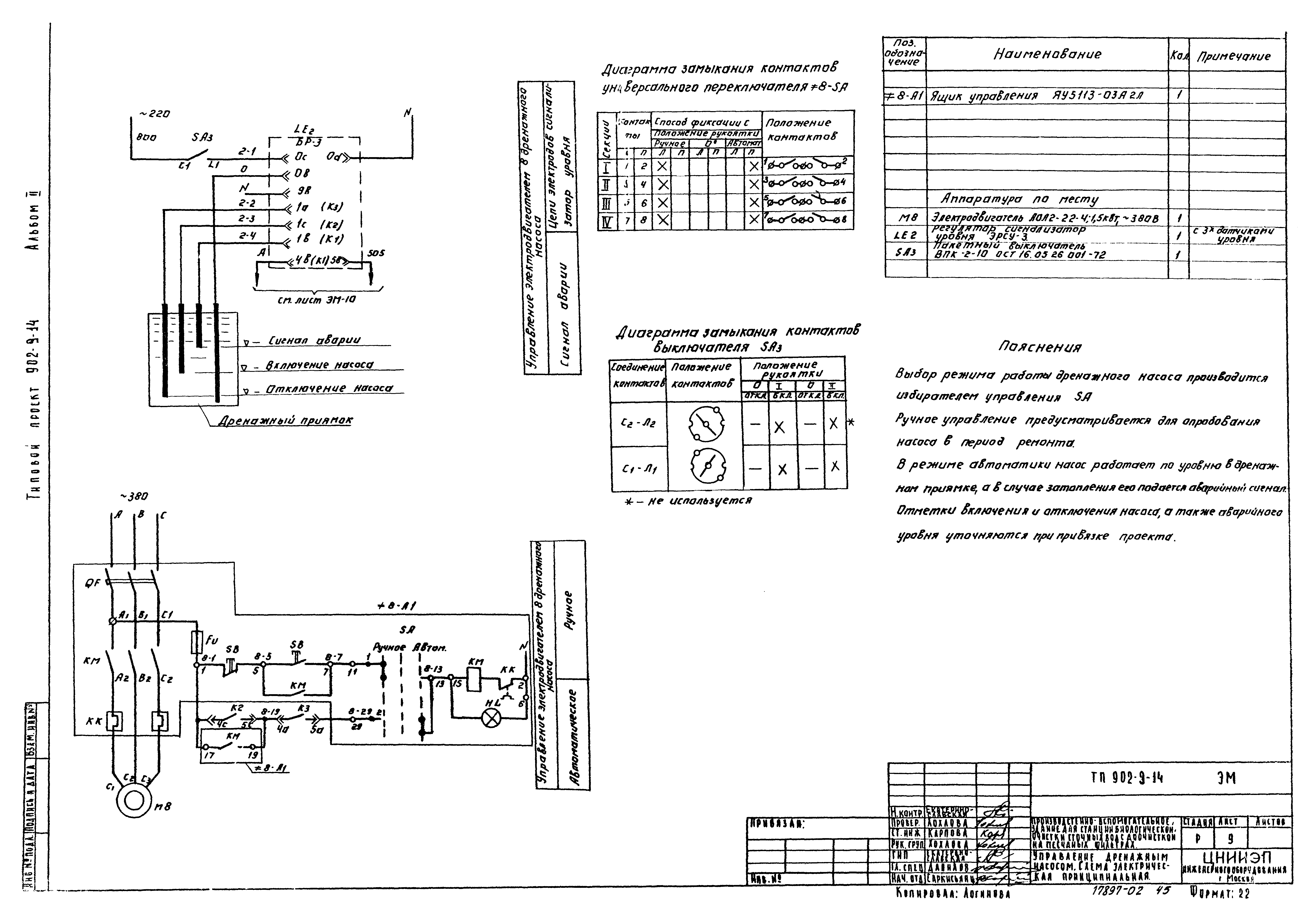
Альбом II. Технологическая, санитарно-техническая, электротехническая части, нестандартизированное оборудованиеОбозначение: | Типовой проект 902-9-14 | Обозначение англ: | 902-9-14 | Статус: | не определен законодательством | Название рус.: | Альбом II. Технологическая, санитарно-техническая, электротехническая части, нестандартизированное оборудование | Дата добавления в базу: | 01.09.2013 | Дата актуализации: | 05.05.2017 | Дата введения: | 27.11.1981 | Оглавление: | Содержание альбома Техническая часть марки ТХ Общие данные (начало) Общие данные (окончание) План с расстановкой оборудования Воздуходувная и помещение до очистки. Диаметр фильтров 2000 и 1500мм. План. Разрезы 1-1;2-2 Воздуходувная и помещение до очистки. Диаметр фильтров 2000 и 1500мм. План. Разрезы 3-3;4-4 Воздуходувная и помещение до очистки. Диаметр фильтров 2000 и 1500мм. План. Схемы трубопроводов Воздуходувная и помещение до очистки. Диаметр фильтров 1500мм. План. Спецификация Воздуходувная и помещение до очистки. Диаметр фильтров 2000мм. План. Спецификация Воздуходувная и помещение до очистки. Диаметр фильтров 3200 и 2500мм. План. Разрезы 1-1;2-2 Воздуходувная и помещение до очистки. Диаметр фильтров 3200 и 2500мм. План. Разрезы 3-3;4-4 Воздуходувная и помещение до очистки. Диаметр фильтров 3200 и 2500мм. План. Схемы трубопроводов Воздуходувная и помещение до очистки. Диаметр фильтров 2500мм. План. Спецификация Воздуходувная и помещение до очистки. Диаметр фильтров 3200мм. План. Спецификация Электролизная. План. Разрезы 1-1;2-2 Электролизная. Схема трубопроводов Хлордозаторная. План Хлордозаторная. Разрез 1-1 Хлордозаторная. Разрезы 2-2;3-3 Хлордозаторная. Схемы трубопроводов Хлордозаторная. Спецификация Санитарно-техническая часть марки ВК Общие данные. Спецификация Планы. Схема хоз-питьевого водопровода. Схемы бытовой канализации и промканализации Санитарно-техническая часть марки ОВ Общие данные (начало) Общие данные (продолжение) Общие данные (окончание) План на отм. 0.000. План кровли. Разрез 1-1. Узел управления Схемы систем отопления и вентиляции Вариант с электролизной. Приточный шкаф Вариант с хлордозаторной. Приточный шкаф Компоновка котельной. План. Разрез. Тепловая схема. Спецификация Подставка ОВН-1 Электротехническая часть марки ЭМ Общие данные Ведомость электрооборудования, изделий и материалов (начало) Ведомость электрооборудования, изделий и материалов (продолжение) Ведомость электрооборудования, изделий и материалов (окончание) Питание электрооборудования. Схема электрическая принципиальная (начало) Питание электрооборудования. Схема электрическая принципиальная (окончание) Управление насосами подачи воды на фильтр. Схема электрическая принципиальная Управление дренажным насосом. Схема электрическая принципиальная Аварийная сигнализация. Схема электрическая принципиальная Схема подключения электрооборудования Схема подключения приборов технологического контроля Кабельный журнал (начало) Кабельный журнал (окончание) Размещение электрооборудования и прокладки кабеля. Вариант с электролизной Размещение электрооборудования и прокладки кабеля. Вариант с хлордозаторной Размещение электрооборудования и прокладки кабеля. Помещение котельной и лаборатории Электрическое освещение. План на отм. 0.000. Вариант с электролизной Электрическое освещение. План на отм. 0.000. Вариант с хлордозаторной Молниезащита. План на отм. 0.000. Вариант с электролизной Попанельная спецификация и данные для заполнения опросного листа для заказа шкафа ШУН-5 Связь и сигнализация Общие данные. План на отм. 0.000 с сетями связи и радиофикации Нестандартизированное оборудование Расходный бак для хлорной воды Лист 1 Расходный бак для хлорной воды Лист 2 Воздуховод асбестоцементный монтируемый на уголках. Чертеж общего вида | Разработан: | ЦНИИЭП инженерного оборудования
| Утверждён: | 29.04.1981 Госгражданстрой (Gosgrazhdanstroy 141)
| Расположен в: |
|
                                                          
|