Информационная система
«Ёшкин Кот»

Скачать базу одним архивом
Скачать обновления
История создания базы
Карта сайта

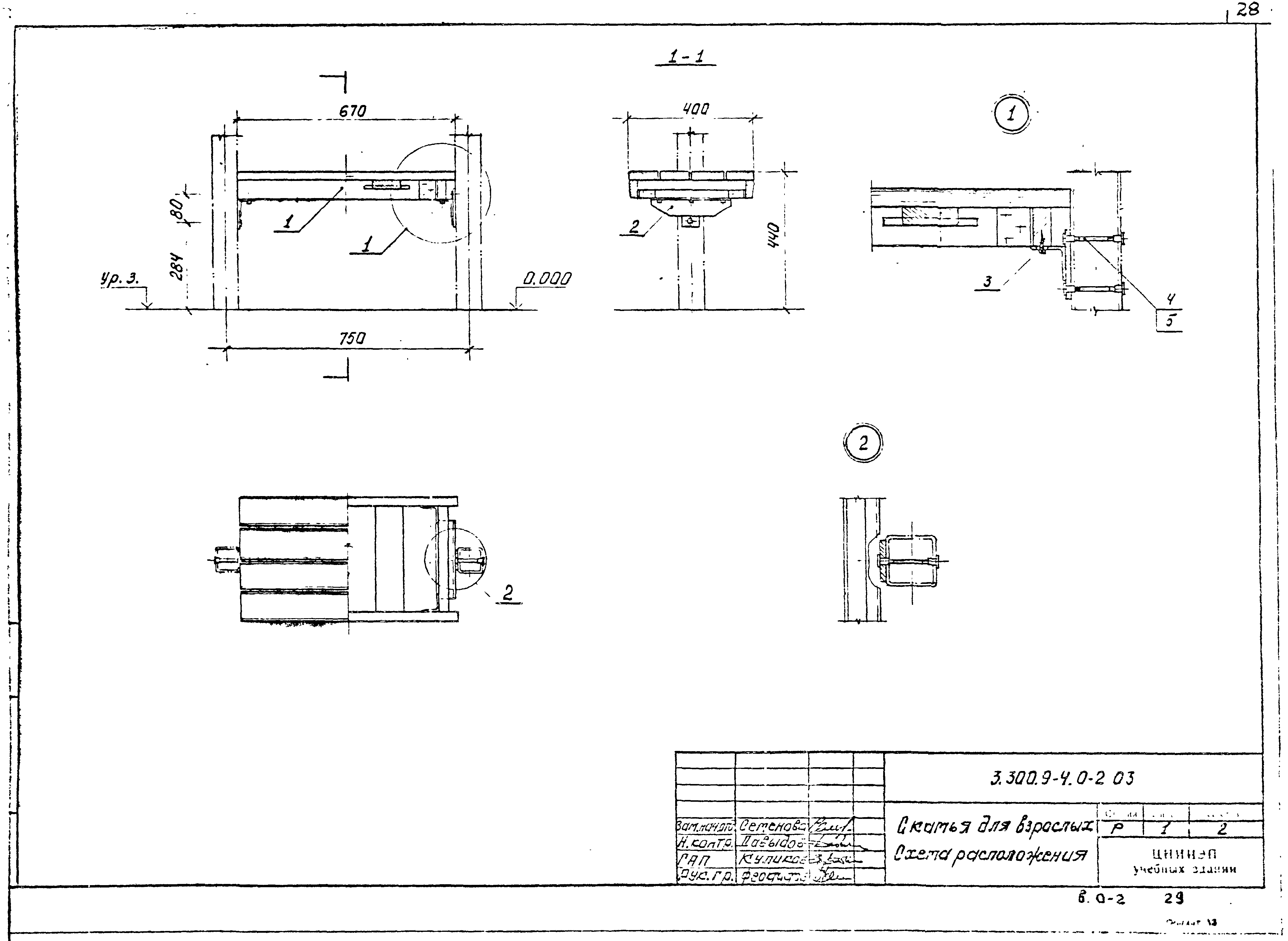
Скачать Серия 3.300.9-4 Выпуск 0-2. Оборудование и мебель детских площадок (комплекты для выносных модулей теневых навесов). Указания по применению

Дата актуализации: 10.08.2017

Серия 3.300.9-4

Выпуск 0-2. Оборудование и мебель детских площадок (комплекты для выносных модулей теневых навесов). Указания по применению

Обозначение: Серия 3.300.9-4
Обозначение англ: Series 3.300.9-4
Статус:не определен законодательством
Название рус.:Выпуск 0-2. Оборудование и мебель детских площадок (комплекты для выносных модулей теневых навесов). Указания по применению
Дата добавления в базу:01.09.2013
Дата актуализации:05.05.2017
Дата введения:01.12.1990
Область применения:Настоящий выпуск предназначен для комплектации готовых изделий, поставляемых в разобранном виде и проведения монтажных работ по установке навесных элементов составных частей мебели и оборудования, выполняемых непосредственно на площадках, на конструкциях выносных модулей и теневых навесов
Разработан: ЦНИИЭП учебных зданий Госкомархитектуры
Утверждён:27.02.1990 Госкомархитектура (36)
Расположен в:Техническая документация Строительство Справочные документы Типовые строительные конструкции, изделия и узлы Общероссийский строительный каталог Строительные конструкции, изделия и узлы зданий и сооружений для всех видов строительства Конструкции и изделия сооружений и оборудования зданий Надземные сооружения Конструкции и изделия благоустройства, в том числе ограждения
Серия 3.300.9-4Серия 3.300.9-4Серия 3.300.9-4Серия 3.300.9-4Серия 3.300.9-4Серия 3.300.9-4Серия 3.300.9-4Серия 3.300.9-4Серия 3.300.9-4Серия 3.300.9-4Серия 3.300.9-4Серия 3.300.9-4Серия 3.300.9-4Серия 3.300.9-4Серия 3.300.9-4Серия 3.300.9-4Серия 3.300.9-4Серия 3.300.9-4Серия 3.300.9-4Серия 3.300.9-4Серия 3.300.9-4Серия 3.300.9-4Серия 3.300.9-4Серия 3.300.9-4Серия 3.300.9-4Серия 3.300.9-4Серия 3.300.9-4Серия 3.300.9-4Серия 3.300.9-4Серия 3.300.9-4Серия 3.300.9-4Серия 3.300.9-4Серия 3.300.9-4Серия 3.300.9-4Серия 3.300.9-4Серия 3.300.9-4Серия 3.300.9-4Серия 3.300.9-4Серия 3.300.9-4Серия 3.300.9-4Серия 3.300.9-4Серия 3.300.9-4Серия 3.300.9-4Серия 3.300.9-4Серия 3.300.9-4Серия 3.300.9-4Серия 3.300.9-4Серия 3.300.9-4Серия 3.300.9-4Серия 3.300.9-4Серия 3.300.9-4Серия 3.300.9-4Серия 3.300.9-4Серия 3.300.9-4Серия 3.300.9-4Серия 3.300.9-4Серия 3.300.9-4Серия 3.300.9-4Серия 3.300.9-4Серия 3.300.9-4Серия 3.300.9-4Серия 3.300.9-4Серия 3.300.9-4Серия 3.300.9-4Серия 3.300.9-4Серия 3.300.9-4Серия 3.300.9-4Серия 3.300.9-4Серия 3.300.9-4Серия 3.300.9-4Серия 3.300.9-4Серия 3.300.9-4Серия 3.300.9-4Серия 3.300.9-4Серия 3.300.9-4Серия 3.300.9-4Серия 3.300.9-4Серия 3.300.9-4Серия 3.300.9-4Серия 3.300.9-4Серия 3.300.9-4Серия 3.300.9-4

© 2013 Ёшкин Кот :-) Карта сайта