Информационная система
«Ёшкин Кот»

Скачать базу одним архивом
Скачать обновления
История создания базы
Карта сайта

Скачать Типовой проект 901-4-63.83 Альбом VI. Технологические трубопроводы и сигнализация для резервуаров емкостью 50-20000 м3

Дата актуализации: 10.08.2017

Типовой проект 901-4-63.83

Альбом VI. Технологические трубопроводы и сигнализация для резервуаров емкостью 50-20000 м3

Обозначение: Типовой проект 901-4-63.83
Обозначение англ: 901-4-63.83
Статус:действует
Название рус.:Альбом VI. Технологические трубопроводы и сигнализация для резервуаров емкостью 50-20000 м3
Дата добавления в базу:01.09.2013
Дата актуализации:05.05.2017
Оглавление:Чертежи основного комплекта марки Т
   Общие данные
   Резервуары емкостью 50 - 2400 куб. м. Планы
   Резервуары емкостью 2500 - 20000 куб. м. Планы
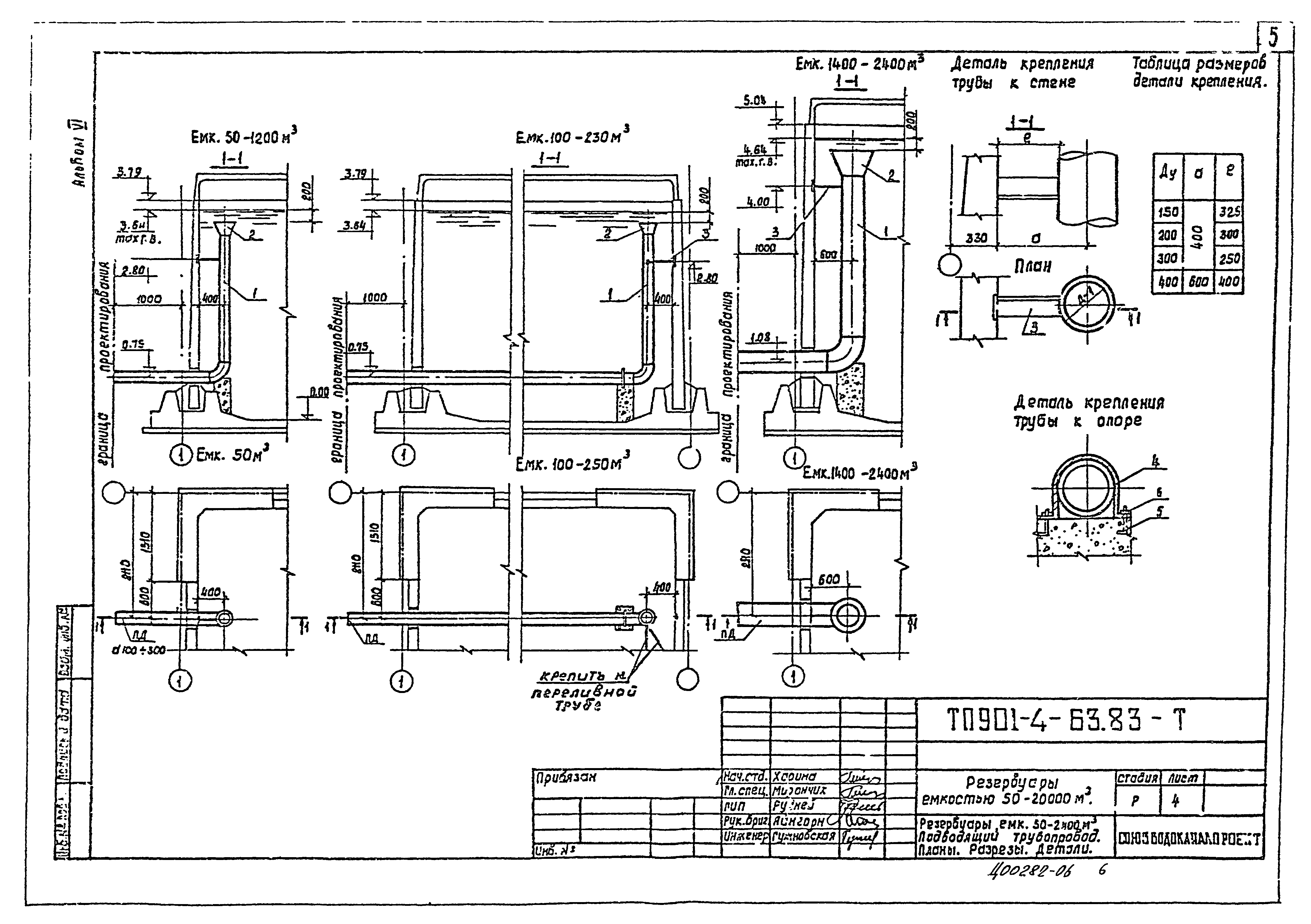
   Резервуары емкостью 50 - 2400 куб. м. Подводящий трубопровод. Планы. Разрезы. Детали
   Резервуары емкостью 50 - 2400 куб. м. Подводящий трубопровод. Спецификация
   Резервуары емкостью 50 - 2400 куб. м. Переливное устройство. Фрагмент плана. Разрезы
   Резервуары емкостью 50 - 2400 куб. м. Переливное устройство. Спецификация
   Резервуары емкостью 2500 - 20000 куб. м. Промывочный водопровод. Схема. Узлы
   Резервуары емкостью 2500 - 20000 куб. м. Промывочный водопровод. Спецификация
Чертежи основного комплекта марки ЭА
   Общие данные
   Установка датчика уровня УКС-1 и первичного преобразователя уровнемера РУС-0
   Установка датчика уровня ЭРСУ-3 (ЭРСУ-2) и нулевого электрода
Разработан: Союзводоканалпроект
ЦНИИпромзданий
НИИЖБ
Утверждён:17.11.1978 Госстрой СССР (Государственный комитет Совета Министров СССР по делам строительства) (USSR Gosstroy 2/3-409)
Расположен в:Техническая документация Строительство Справочные документы Типовые строительные конструкции, изделия и узлы Общероссийский строительный каталог Промышленные предприятия, здания и сооружения Здания и сооружения санитарно-технические Водоснабжение Резервуары для воды
Типовой проект 901-4-63.83Типовой проект 901-4-63.83Типовой проект 901-4-63.83Типовой проект 901-4-63.83Типовой проект 901-4-63.83Типовой проект 901-4-63.83Типовой проект 901-4-63.83Типовой проект 901-4-63.83Типовой проект 901-4-63.83Типовой проект 901-4-63.83Типовой проект 901-4-63.83Типовой проект 901-4-63.83Типовой проект 901-4-63.83Типовой проект 901-4-63.83Типовой проект 901-4-63.83

© 2013 Ёшкин Кот :-) Карта сайта