Информационная система
«Ёшкин Кот»

Скачать базу одним архивом
Скачать обновления
История создания базы
Карта сайта

Скачать Типовой проект 901-4-58.83 Альбом IV. Узлы резервуаров емкостью 50-20000 куб. м. (из ТП 901-4-63.83)

Дата актуализации: 10.08.2017

Типовой проект 901-4-58.83

Альбом IV. Узлы резервуаров емкостью 50-20000 куб. м. (из ТП 901-4-63.83)

Обозначение: Типовой проект 901-4-58.83
Обозначение англ: 901-4-58.83
Статус:не определен законодательством
Название рус.:Альбом IV. Узлы резервуаров емкостью 50-20000 куб. м. (из ТП 901-4-63.83)
Дата добавления в базу:01.09.2013
Дата актуализации:05.05.2017
Дата введения:23.06.1983
Оглавление:Перечень чертежей
Пояснительная записка
Узлы 9,10. Фундаментный паз под стену
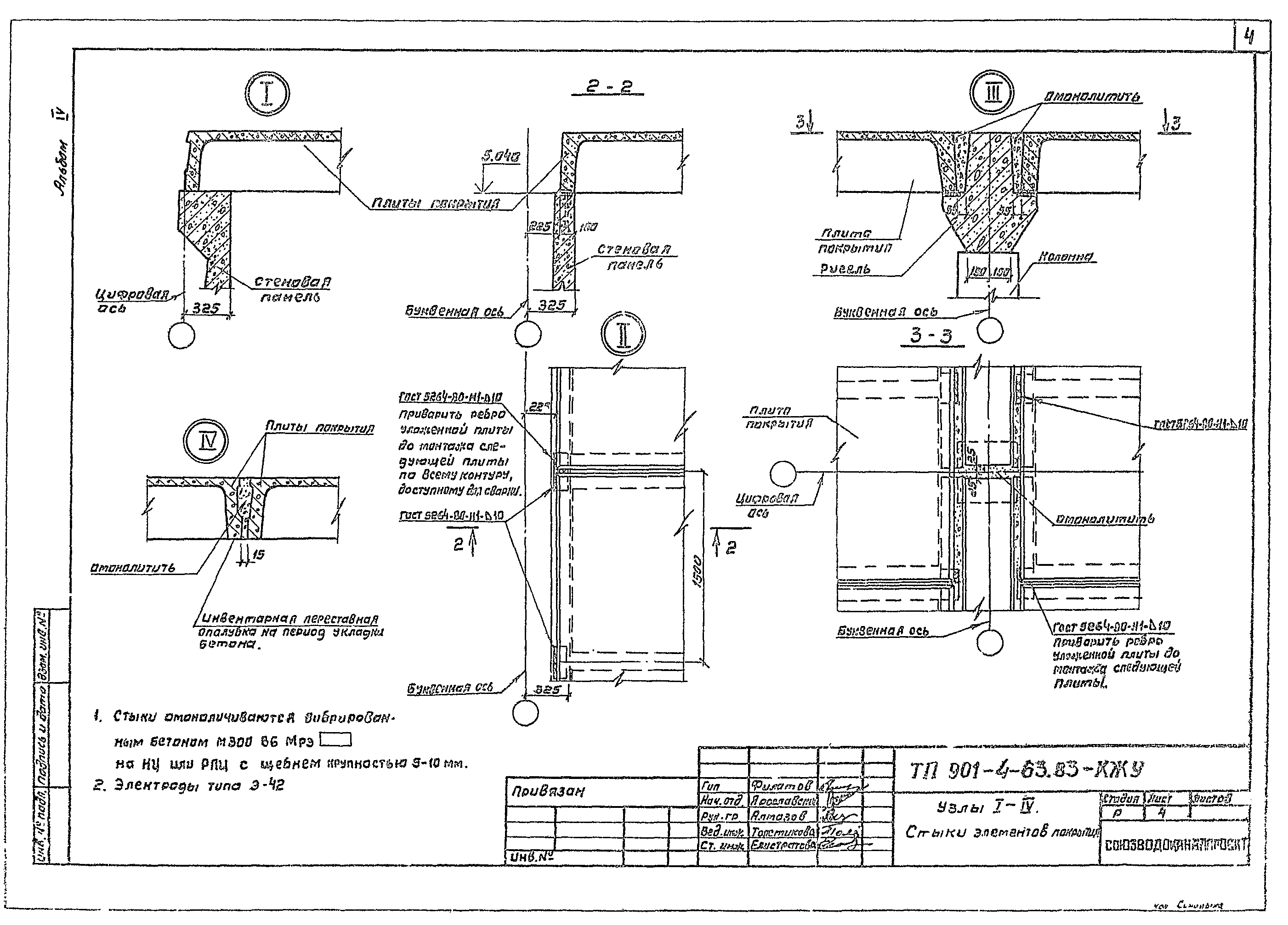
Узлы 1-4. Стыки элементов покрытия
Узлы 5-8. Стыки стен и колонн с покрытием и днищем
Узлы 11,38. Примыкание перегородок к колоннам и стенам
Узлы 12-27,39. Стыки элементов стен. Спецификация накладок
Узлы 12-27,39. Стыки элементов стен. Накладки
Узлы 12-19;39. Стыки элементов стен. Сборочный чертеж
Узлы 20-27. Стыки элементов стен. Сборочный чертеж
Узлы 28-30. Вентиляционное устройство ВУ1. Сборочный чертеж
Узлы 31-33. Вентиляционное устройство ВУ2. Сборочный чертеж
Узлы 34-37. Спецификация. Установка стремянки
Узлы 34,34а,34б. Камера приборов. Сборочный чертеж
Узлы 35,35а. Камера лаза КЛ1. Сборочный чертеж
Узлы 36,36а. Камера лаза КЛ2. Сборочный чертеж
Узлы 37. Камера лаза КЛ3. Сборочный чертеж
Углы гидроизоляции (начало)
Углы гидроизоляции (окончание)
Вариант углового участка стены высотой 3,6м в монолитном железобетоне (начало)
Вариант углового участка стены высотой 3,6м в монолитном железобетоне (окончание)
Вариант углового участка стены высотой 4,8м в монолитном железобетоне (начало)
Вариант углового участка стены высотой 4,8м в монолитном железобетоне (окончание)
Разработан: Союзводоканалпроект
ЦНИИпромзданий
НИИЖБ
Утверждён:17.11.1978 Госстрой СССР (Государственный комитет Совета Министров СССР по делам строительства) (USSR Gosstroy 2/3-409)
Расположен в:Техническая документация Строительство Справочные документы Типовые строительные конструкции, изделия и узлы Общероссийский строительный каталог Промышленные предприятия, здания и сооружения Здания и сооружения санитарно-технические Водоснабжение Резервуары для воды
Типовой проект 901-4-58.83Типовой проект 901-4-58.83Типовой проект 901-4-58.83Типовой проект 901-4-58.83Типовой проект 901-4-58.83Типовой проект 901-4-58.83Типовой проект 901-4-58.83Типовой проект 901-4-58.83Типовой проект 901-4-58.83Типовой проект 901-4-58.83Типовой проект 901-4-58.83Типовой проект 901-4-58.83Типовой проект 901-4-58.83Типовой проект 901-4-58.83Типовой проект 901-4-58.83Типовой проект 901-4-58.83Типовой проект 901-4-58.83Типовой проект 901-4-58.83Типовой проект 901-4-58.83Типовой проект 901-4-58.83Типовой проект 901-4-58.83Типовой проект 901-4-58.83Типовой проект 901-4-58.83Типовой проект 901-4-58.83

© 2013 Ёшкин Кот :-) Карта сайта