Информационная система
«Ёшкин Кот»

Скачать базу одним архивом
Скачать обновления
История создания базы
Карта сайта

Скачать Серия 3.016.2-12 Выпуск 2. Фундаменты. Рабочие чертежи

Дата актуализации: 10.08.2017

Серия 3.016.2-12

Выпуск 2. Фундаменты. Рабочие чертежи

Обозначение: Серия 3.016.2-12
Обозначение англ: Series 3.016.2-12
Статус:не определен законодательством
Название рус.:Выпуск 2. Фундаменты. Рабочие чертежи
Дата добавления в базу:01.09.2013
Дата актуализации:05.05.2017
Дата введения:01.01.1992
Оглавление:3.016.2-12.2-ТУ Технические условия
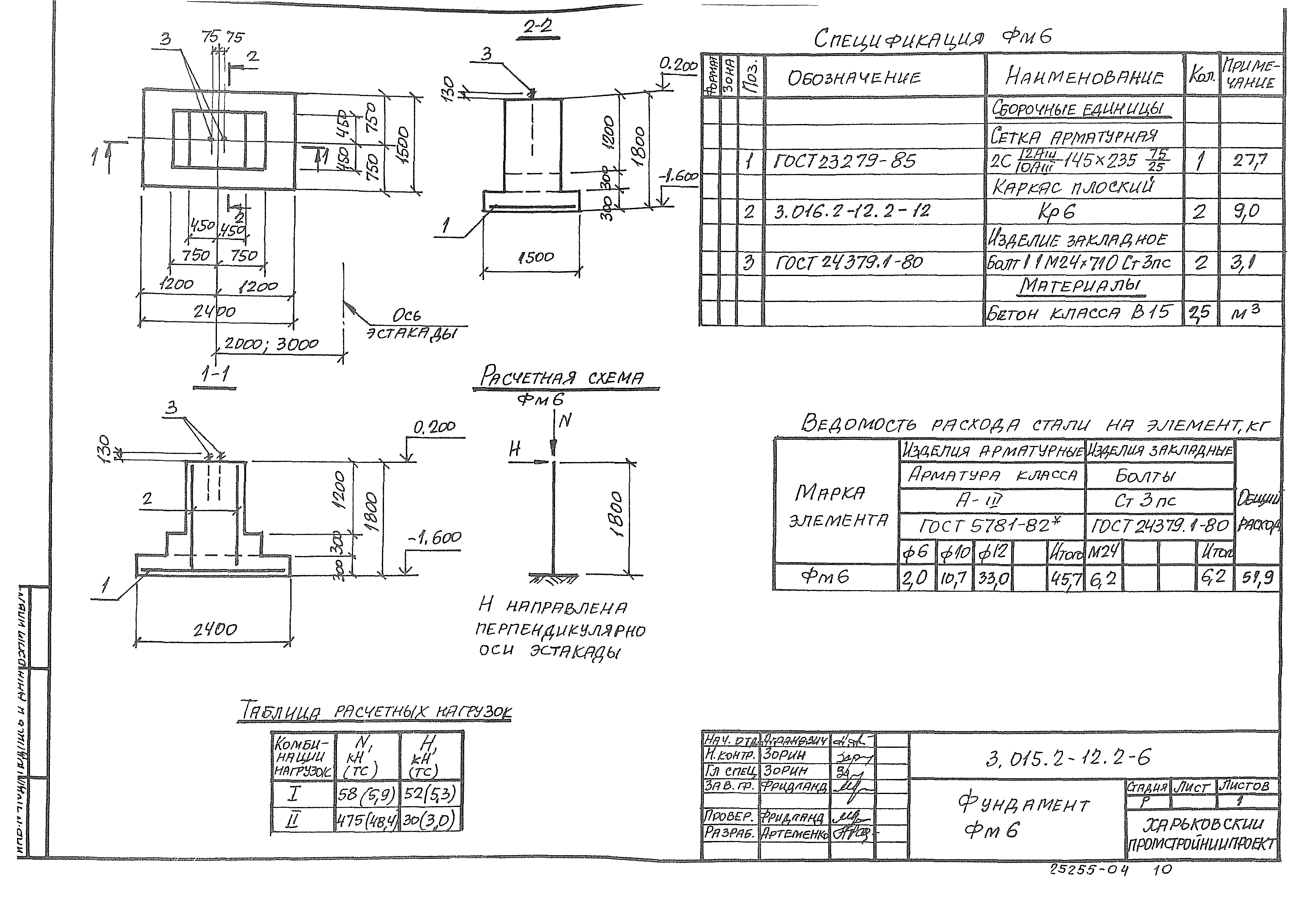
3.016.2-12.2-1 Фундамент Фм1;Фм1-1
3.016.2-12.2-2 Фундамент Фм2
3.016.2-12.2-3 Фундамент Фм3;Фм3-1
3.016.2-12.2-4 Фундамент Фм4
3.016.2-12.2-5 Фундамент Фм5;Фм5-1;Фм5-2
3.016.2-12.2-6 Фундамент Фм6
3.016.2-12.2-7 Фундамент Фм7
3.016.2-12.2-8 Фундамент Фм8;Фм8-1;Фм9
3.016.2-12.2-9 Фундамент Фм10
3.016.2-12.2-10 Каркас плоский Кр1;Кр2
3.016.2-12.2-11 Каркас плоский Кр3;Кр4
3.016.2-12.2-12 Каркас плоский Кр5;Кр6
3.016.2-12.2-13 Сетка арматурная С1
Разработан: Харьковский Промстройниипроект
Утверждён:02.09.1991 Концерн Электромонтаж (6-3-10)
Издан: АПП ЦИТП (1991 г. )
Расположен в:Техническая документация Строительство Справочные документы Типовые строительные конструкции, изделия и узлы Общероссийский строительный каталог Строительные конструкции, изделия и узлы зданий и сооружений для всех видов строительства Конструкции и изделия сооружений и оборудования зданий Надземные сооружения Кабельные эстакады
Серия 3.016.2-12Серия 3.016.2-12Серия 3.016.2-12Серия 3.016.2-12Серия 3.016.2-12Серия 3.016.2-12Серия 3.016.2-12Серия 3.016.2-12Серия 3.016.2-12Серия 3.016.2-12Серия 3.016.2-12Серия 3.016.2-12Серия 3.016.2-12Серия 3.016.2-12Серия 3.016.2-12

© 2013 Ёшкин Кот :-) Карта сайта