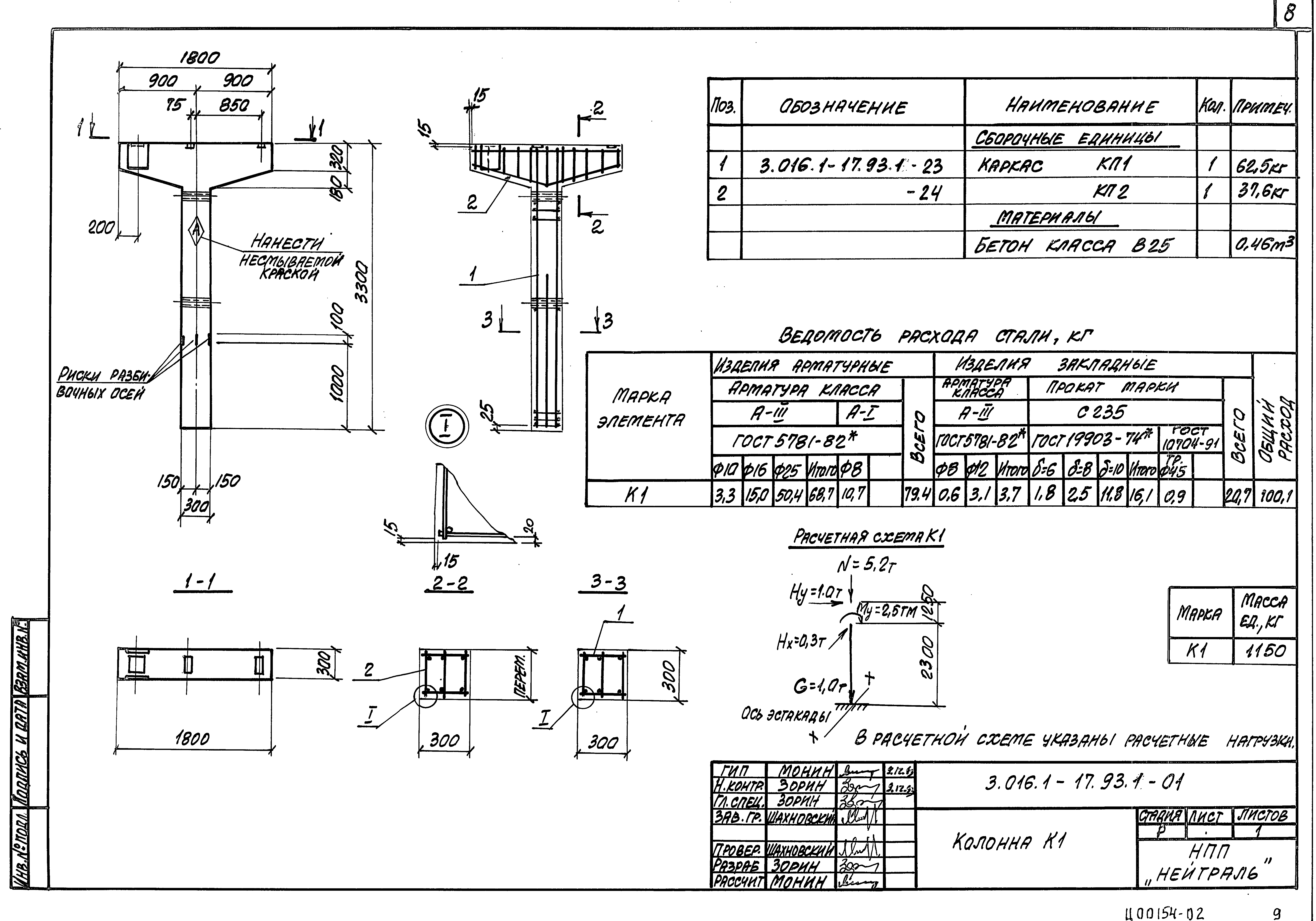
Скачать Серия 3.016.1-17.93 Выпуск 1. Изделия железобетонные. Рабочие чертежиДата актуализации: 10.08.2017 Серия 3.016.1-17.93
Выпуск 1. Изделия железобетонные. Рабочие чертежиОбозначение: | Серия 3.016.1-17.93 | Обозначение англ: | Series 3.016.1-17.93 | Статус: | не определен законодательством | Название рус.: | Выпуск 1. Изделия железобетонные. Рабочие чертежи | Дата добавления в базу: | 01.09.2013 | Дата актуализации: | 05.05.2017 | Дата введения: | 01.01.1994 | Разработан: | НПП Нейтраль
| Утверждён: | 03.12.1993 Главпроект Госстроя России (9-3-3/257)
| Расположен в: |
|
                                                           
|