Информационная система
«Ёшкин Кот»

Скачать базу одним архивом
Скачать обновления
История создания базы
Карта сайта

Скачать Серия 3.015.2-15 Выпуск 3. Изделия металлические. Рабочие чертежи

Дата актуализации: 10.08.2017

Серия 3.015.2-15

Выпуск 3. Изделия металлические. Рабочие чертежи

Обозначение: Серия 3.015.2-15
Обозначение англ: Series 3.015.2-15
Статус:не определен законодательством
Название рус.:Выпуск 3. Изделия металлические. Рабочие чертежи
Дата добавления в базу:01.09.2013
Дата актуализации:05.05.2017
Дата введения:01.01.1993
Оглавление:3.015.2-15.3-ТТ Технические требования
3.015.2-15.3-1 Фермы Ф8;Ф9
3.015.2-15.3-2 Фермы Ф10;Ф11
3.015.2-15.3-3 Вставки ВС1…ВС6, прогон ПР1
3.015.2-15.3-4 Опоры промежуточные ОП1…ОП16
3.015.2-15.3-5 Опоры промежуточные ОП17…ОП22;ОП26…ОП28
3.015.2-15.3-6 Опоры промежуточные ОП23…ОП25
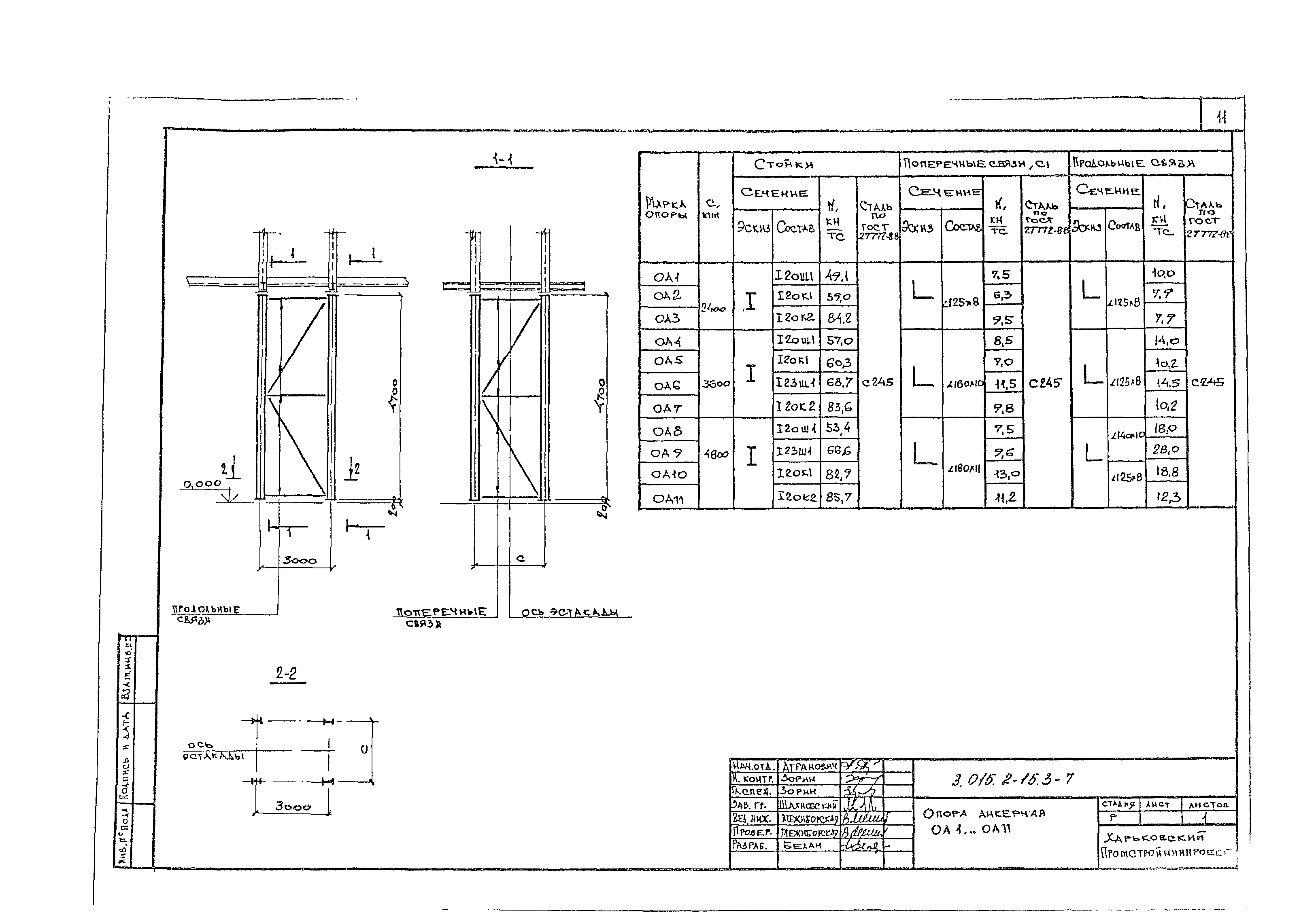
3.015.2-15.3-7 Опоры анкерные ОА1…ОА11
3.015.2-15.3-8 Опоры анкерные ОА12…ОА17;ОА21…ОА23
3.015.2-15.3-9 Опоры анкерные ОА18…ОА20
3.015.2-15.3-10 Надколонники НК1-1…НК6-1;НК4-2…НК6-2
3.015.2-15.3-11 Траверсы ТН1-6…ТН1-10;ИН2-5…ТН2-7;ТН3-4…ТН3-6;ТН4-1
3.015.2-15.3-12 Палец П5
3.015.2-15.3-13 Спецификация стали ферм, вставок, надколонников
3.015.2-15.3-14 Спецификация стали опор промежуточных
3.015.2-15.3-15 Спецификация стали опор анкерных
3.015.2-15.3-16 Спецификация стали траверс, прогонов, пальцев
Разработан: Харьковский Промстройниипроект
ВНИИПроектэлектромонтаж
Утверждён:12.11.1992 Минстрой России (Russian Federation Minstroy 9-1/350)
Расположен в:Техническая документация Строительство Справочные документы Типовые строительные конструкции, изделия и узлы Общероссийский строительный каталог Строительные конструкции, изделия и узлы зданий и сооружений для всех видов строительства Конструкции и изделия сооружений и оборудования зданий Надземные сооружения Опоры и эстакады под технологические трубопроводы
Серия 3.015.2-15Серия 3.015.2-15Серия 3.015.2-15Серия 3.015.2-15Серия 3.015.2-15Серия 3.015.2-15Серия 3.015.2-15Серия 3.015.2-15Серия 3.015.2-15Серия 3.015.2-15Серия 3.015.2-15Серия 3.015.2-15Серия 3.015.2-15Серия 3.015.2-15Серия 3.015.2-15Серия 3.015.2-15Серия 3.015.2-15Серия 3.015.2-15Серия 3.015.2-15Серия 3.015.2-15Серия 3.015.2-15

© 2013 Ёшкин Кот :-) Карта сайта