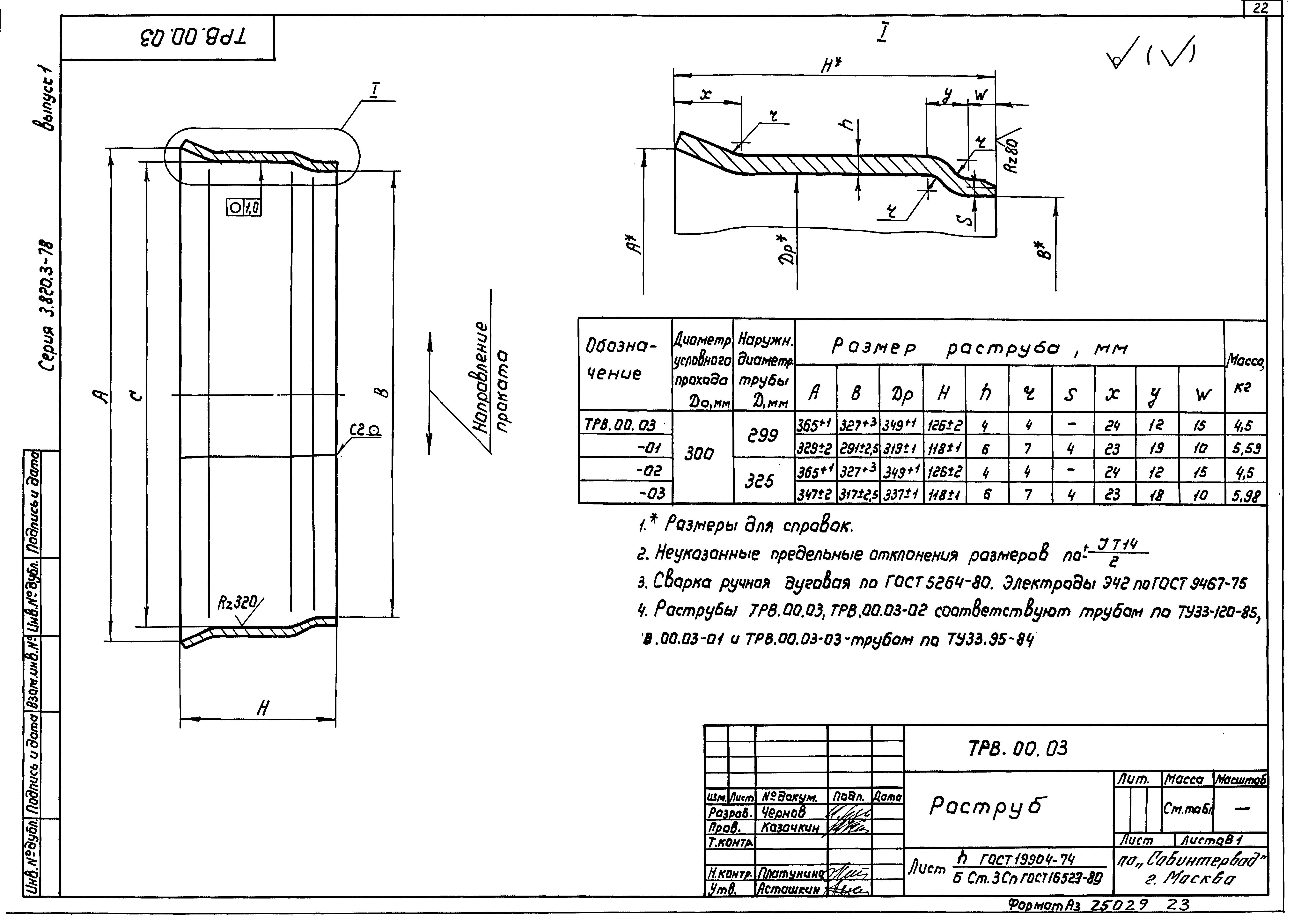
Скачать Серия 3.820.3-78 Выпуск 1. Рабочие чертежиДата актуализации: 10.08.2017 Серия 3.820.3-78
Выпуск 1. Рабочие чертежиОбозначение: | Серия 3.820.3-78 | Обозначение англ: | Series 3.820.3-78 | Статус: | не определен законодательством | Название рус.: | Выпуск 1. Рабочие чертежи | Дата добавления в базу: | 01.09.2013 | Дата актуализации: | 05.05.2017 | Дата введения: | 01.01.1992 | Разработан: | П/О Совинтервод
| Утверждён: | 13.06.1991 Госконцерн СССР Водстрой (858)
| Расположен в: |
|
                                                                 
|