Скачать Серия 3.820-7 Выпуск 2. Трубы диаметром 400-1600 мм, длиной 2,5 м (раструбные и с гладкими концами)Дата актуализации: 10.08.2017 Серия 3.820-7
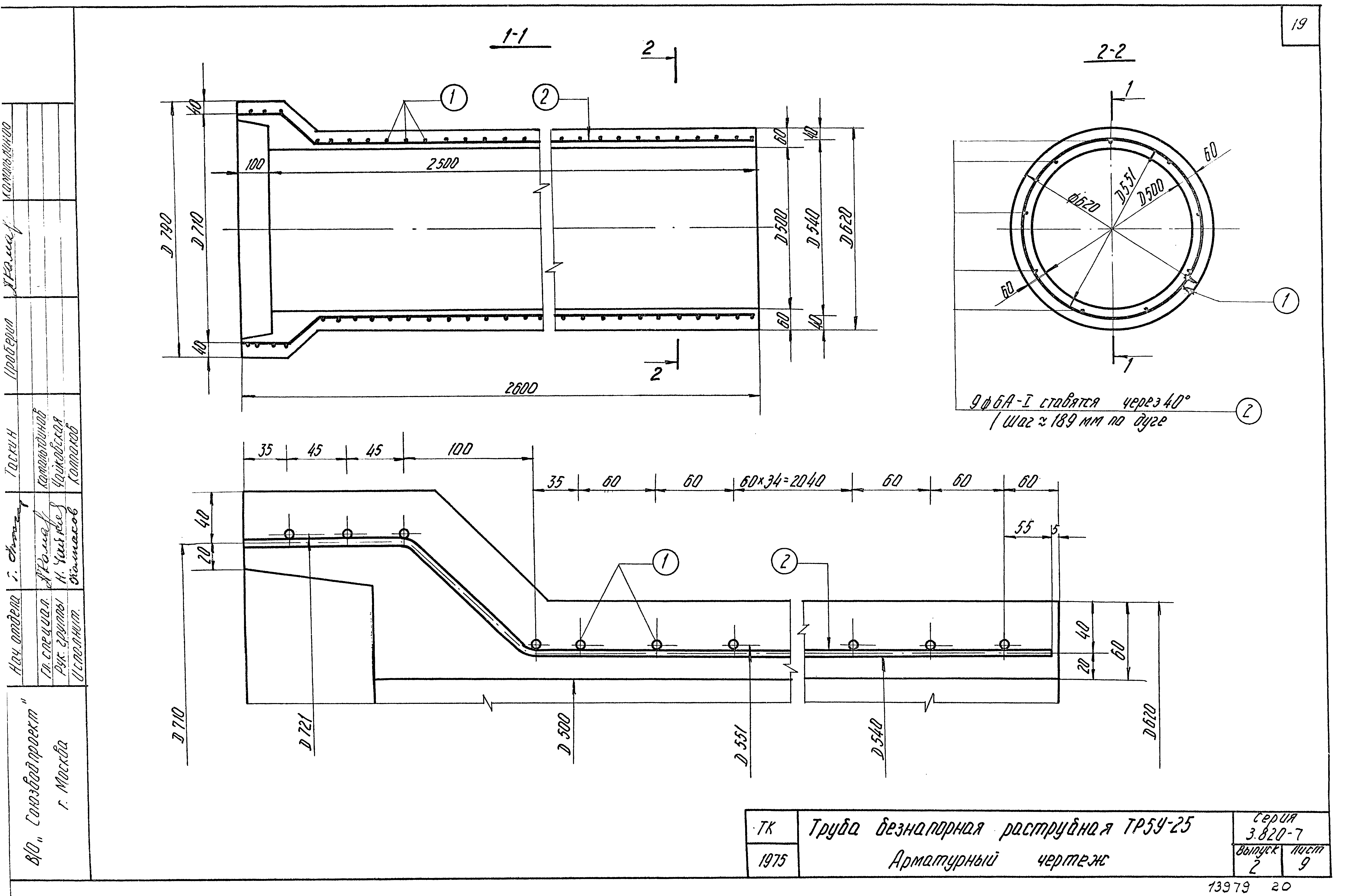
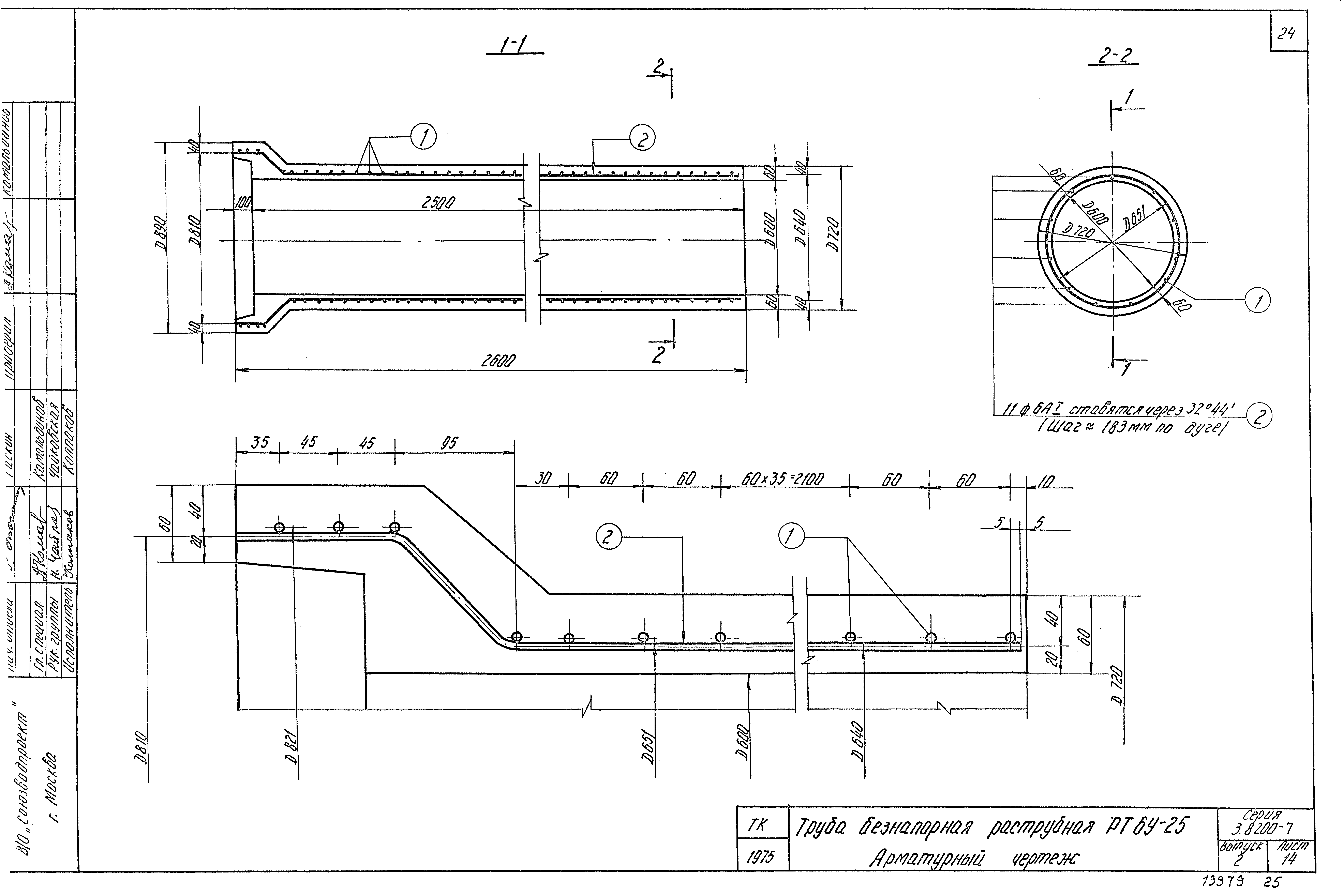
Выпуск 2. Трубы диаметром 400-1600 мм, длиной 2,5 м (раструбные и с гладкими концами)Обозначение: | Серия 3.820-7 | Обозначение англ: | Series 3.820-7 | Статус: | действует | Название рус.: | Выпуск 2. Трубы диаметром 400-1600 мм, длиной 2,5 м (раструбные и с гладкими концами) | Дата добавления в базу: | 01.09.2013 | Дата актуализации: | 05.05.2017 | Дата введения: | 01.03.1976 | Разработан: | В/О Союзводпроект Минводхоза СССР
| Утверждён: | 04.05.1975 Минводхоз СССР (USSR Minvodkhoz 122)
| Расположен в: |
|
                                                                                  
|