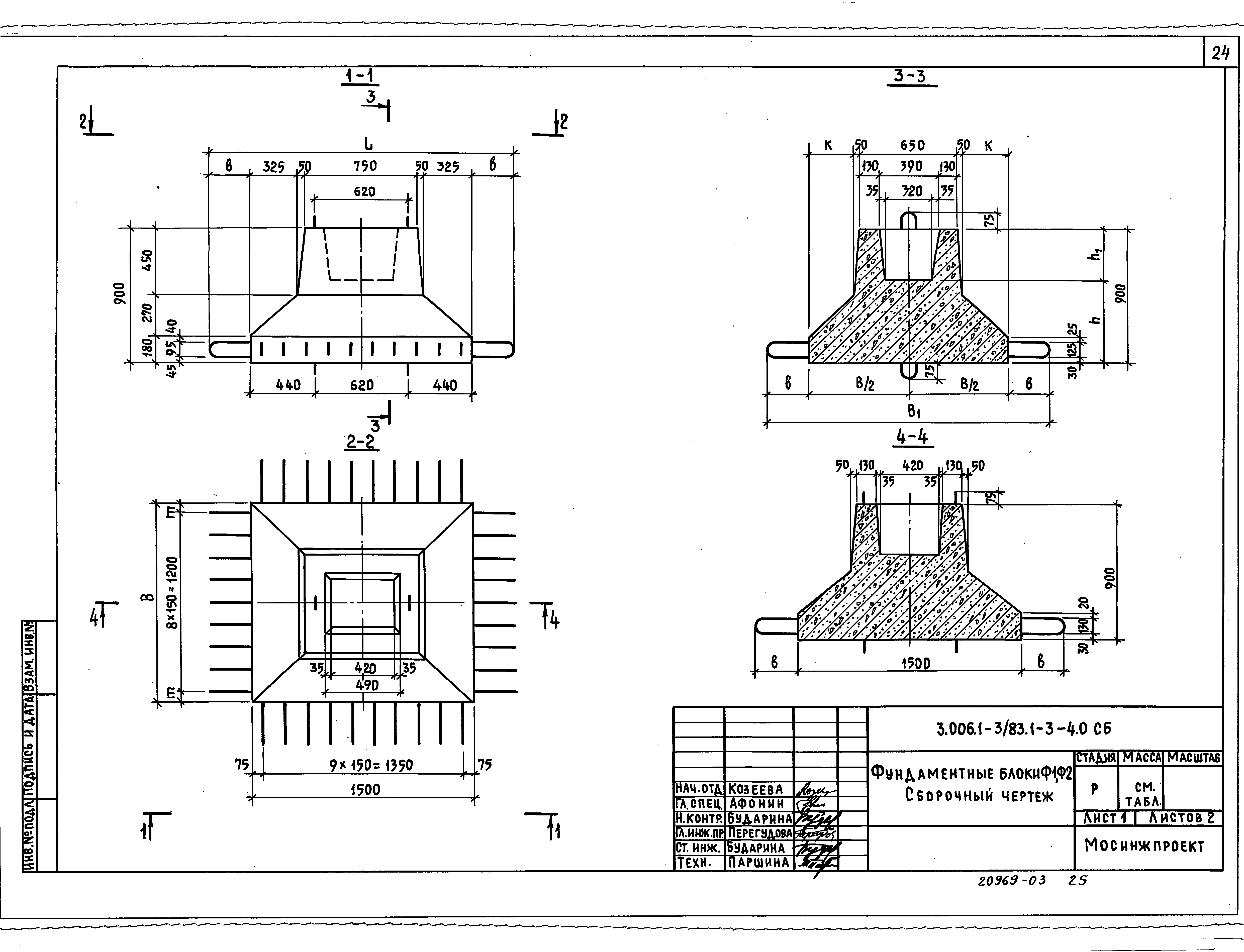
Скачать Серия 3.006.1-3/83 Выпуск 1-3. Тоннели с применением уголковых стеновых элементов. Уголковые стеновые блоки, балки, колонны, фундаменты. Рабочие чертежиДата актуализации: 10.08.2017 Серия 3.006.1-3/83
Выпуск 1-3. Тоннели с применением уголковых стеновых элементов. Уголковые стеновые блоки, балки, колонны, фундаменты. Рабочие чертежиОбозначение: | Серия 3.006.1-3/83 | Обозначение англ: | Series 3.006.1-3/83 | Статус: | не определен законодательством | Название рус.: | Выпуск 1-3. Тоннели с применением уголковых стеновых элементов. Уголковые стеновые блоки, балки, колонны, фундаменты. Рабочие чертежи | Дата добавления в базу: | 01.09.2013 | Дата актуализации: | 05.05.2017 | Дата введения: | 01.05.1986 | Разработан: | Мосинжпроект ГлавАПУ Москвы
| Утверждён: | 19.12.1985 Госстрой СССР (Государственный комитет Совета Министров СССР по делам строительства) (USSR Gosstroy 237)
| Расположен в: |
|
                                           
|