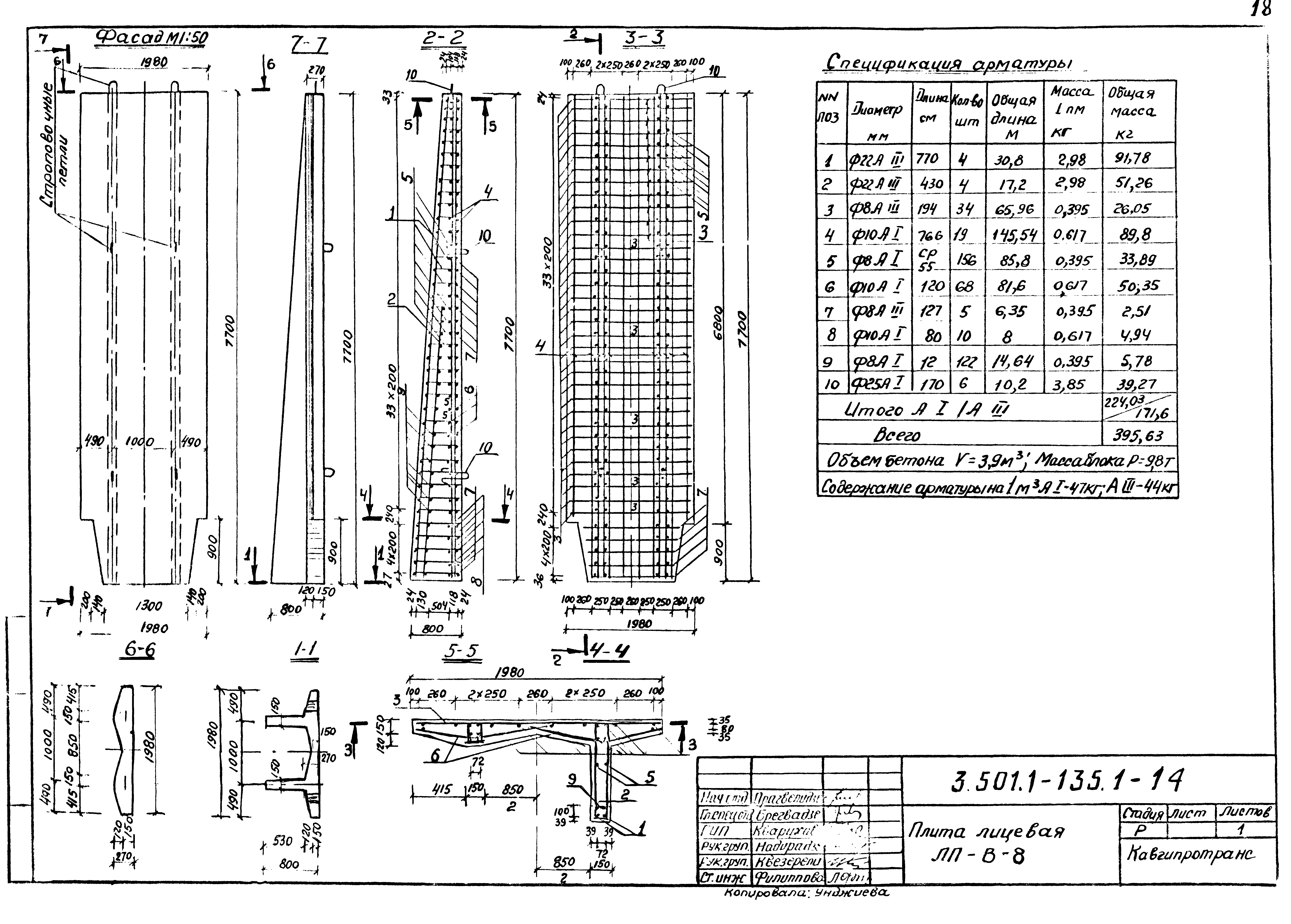
Скачать Серия 3.501.1-135 Выпуск 1. Изделия заводского изготовления. Рабочие чертежиДата актуализации: 10.08.2017 Серия 3.501.1-135
Выпуск 1. Изделия заводского изготовления. Рабочие чертежиОбозначение: | Серия 3.501.1-135 | Обозначение англ: | Series 3.501.1-135 | Статус: | действует | Название рус.: | Выпуск 1. Изделия заводского изготовления. Рабочие чертежи | Дата добавления в базу: | 01.09.2013 | Дата актуализации: | 05.05.2017 | Дата введения: | 01.03.1985 | Разработан: | Кавгипротранс Минтрансстроя
| Утверждён: | 20.02.1985 МПС (Ministry of Railroads М-5393)
| Расположен в: |
|
                     
|