Информационная система
«Ёшкин Кот»

Скачать базу одним архивом
Скачать обновления
История создания базы
Карта сайта

Скачать Серия 3.002.1-3 Выпуск 0. Материалы для проектирования

Дата актуализации: 10.08.2017

Серия 3.002.1-3

Выпуск 0. Материалы для проектирования

Обозначение: Серия 3.002.1-3
Обозначение англ: Series 3.002.1-3
Статус:не определен законодательством
Название рус.:Выпуск 0. Материалы для проектирования
Дата добавления в базу:01.09.2013
Дата актуализации:05.05.2017
Дата введения:01.08.1992
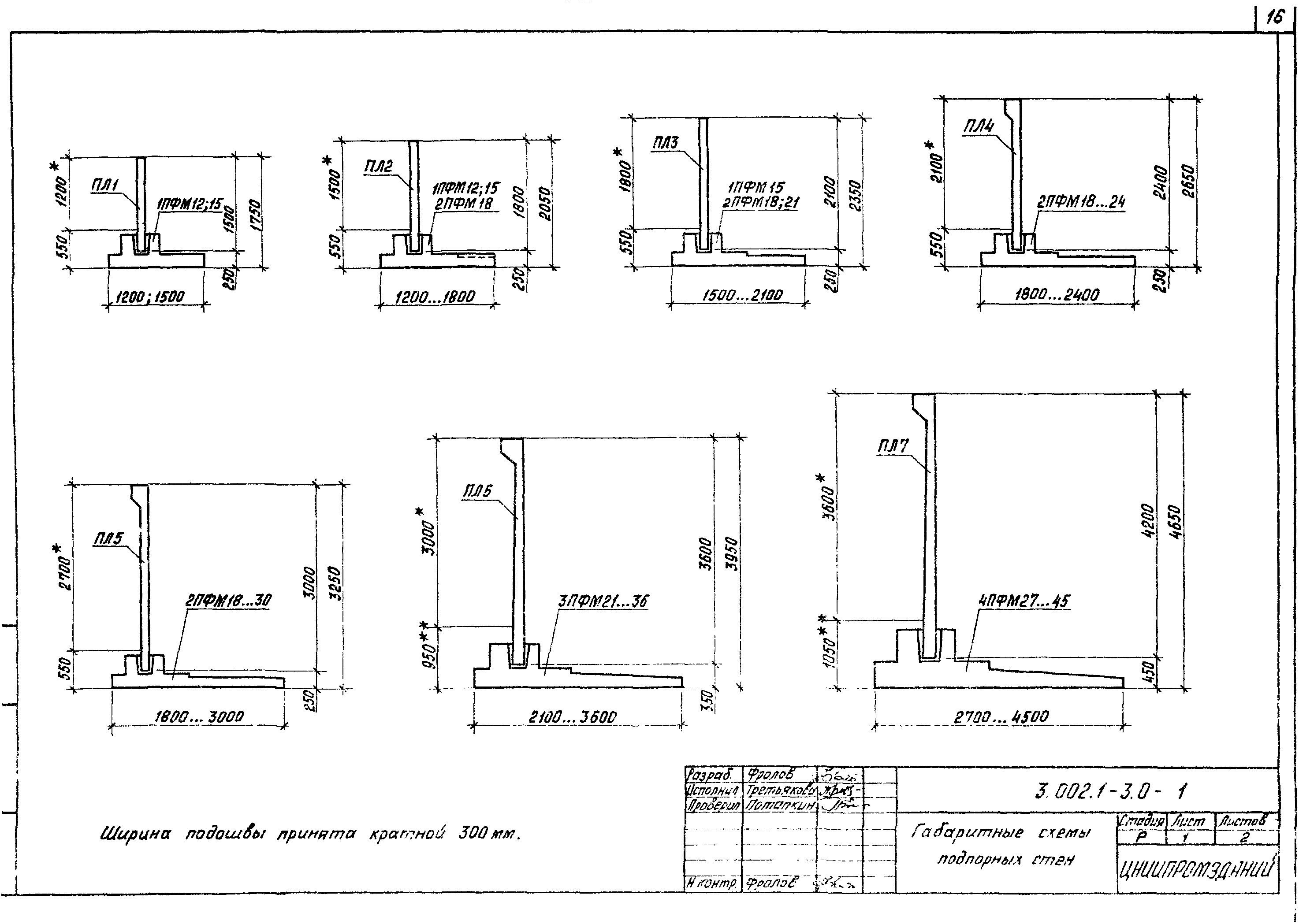
Область применения:Настоящая серия содержит материалы для проектирования сборно-монолитных подпорных стен и рабочие чертежи фундаментных плит из монолитного железобетона
Оглавление:3.002.1-3.0-ПЗ Пояснительная записка
3.002.1-3.0-НИ Номенклатура подпорных стен Габаритные схемы подпорных стен
3.002.1-3.0-1 Габаритные схемы подпорных стен
3.002.1-3.0-2 Плита фундамента 1ПФМ
3.002.1-3.0-3 Плита фундамента 2ПФМ
3.002.1-3.0-4 Плита фундамента 3ПФМ
3.002.1-3.0-5 Плита фундамента 4ПФМ
3.002.1-3.0-6 Плита фундамента 5ПФМ
3.002.1-3.0-РС Ведомость расхода стали
Разработан: АО ЦНИИпромзданий
Утверждён:28.10.1991 Госстрой СССР (Государственный комитет Совета Министров СССР по делам строительства) (USSR Gosstroy 5/4-43)
Расположен в:Техническая документация Строительство Справочные документы Типовые строительные конструкции, изделия и узлы Общероссийский строительный каталог Строительные конструкции, изделия и узлы зданий и сооружений для всех видов строительства Конструкции и изделия сооружений и оборудования зданий Подземные сооружения Подпорные стены
Серия 3.002.1-3Серия 3.002.1-3Серия 3.002.1-3Серия 3.002.1-3Серия 3.002.1-3Серия 3.002.1-3Серия 3.002.1-3Серия 3.002.1-3Серия 3.002.1-3Серия 3.002.1-3Серия 3.002.1-3Серия 3.002.1-3Серия 3.002.1-3Серия 3.002.1-3Серия 3.002.1-3Серия 3.002.1-3Серия 3.002.1-3Серия 3.002.1-3Серия 3.002.1-3Серия 3.002.1-3Серия 3.002.1-3Серия 3.002.1-3Серия 3.002.1-3Серия 3.002.1-3Серия 3.002.1-3Серия 3.002.1-3Серия 3.002.1-3Серия 3.002.1-3Серия 3.002.1-3Серия 3.002.1-3Серия 3.002.1-3Серия 3.002.1-3Серия 3.002.1-3Серия 3.002.1-3Серия 3.002.1-3Серия 3.002.1-3Серия 3.002.1-3Серия 3.002.1-3Серия 3.002.1-3Серия 3.002.1-3Серия 3.002.1-3Серия 3.002.1-3Серия 3.002.1-3Серия 3.002.1-3Серия 3.002.1-3Серия 3.002.1-3Серия 3.002.1-3Серия 3.002.1-3Серия 3.002.1-3Серия 3.002.1-3Серия 3.002.1-3Серия 3.002.1-3Серия 3.002.1-3Серия 3.002.1-3Серия 3.002.1-3

© 2013 Ёшкин Кот :-) Карта сайта