Информационная система
«Ёшкин Кот»

Скачать базу одним архивом
Скачать обновления
История создания базы
Карта сайта

Скачать Серия 3.501.1-130 Фундаменты железобетонные под металлические опоры контактной сети для районов Севера

Дата актуализации: 10.08.2017

Серия 3.501.1-130

Фундаменты железобетонные под металлические опоры контактной сети для районов Севера

Обозначение: Серия 3.501.1-130
Обозначение англ: Series 3.501.1-130
Статус:действует
Название рус.:Фундаменты железобетонные под металлические опоры контактной сети для районов Севера
Дата добавления в базу:01.09.2013
Дата актуализации:05.05.2017
Дата введения:01.08.1982
Оглавление:3.501.1-130-0.00.00 ТО Техническое описание
3.501.1-130-0.00.00 ТО Номенклатура изделий
3.501.1-130-0.00.00 ВД Ведомость ссылочных документов
3.501.1-130-0.00.00 СМ1 Условия установки фундаментов стальных консольных опор при ширине земляного полотна 5,8 м. Благоприятные участки
3.501.1-130-0.00.00 СМ2 Условия установки фундаментов стальных консольных опор при ширине земляного полотна 5,8 м. Условно-благоприятные участки
3.501.1-130-0.00.00 СМ3 Условия установки фундаментов стальных консольных опор при ширине земляного полотна 5,8 м. Неблагоприятные участки
3.501.1-130-0.00.00 СМ4 Условия установки фундаментов стальных консольных опор при ширине земляного полотна 7,0 м. Благоприятные участки
3.501.1-130-0.00.00 СМ5 Условия установки фундаментов стальных консольных опор при ширине земляного полотна 7,0 м. Условно-благоприятные участки
3.501.1-130-0.00.00 СМ6 Условия установки фундаментов стальных консольных опор при ширине земляного полотна 7,0 м. Неблагоприятные участки
3.501.1-130-0.00.00 СМ7 Условия установки фундаментов стальных консольных опор в пучинистых грунтах
3.501.1-130-0.00.00 СМ8 Условия установки свайных фундаментов стальных консольных опор в пучинистых грунтах
3.501.1-130-1.00.00 Фундамент ФТС
3.501.1-130-1.00.00 СБ Фундамент ФТС. Сборочный чертеж
3.501.1-130-1.01.00 Сетка арматурная С-1…С-18
3.501.1-130-1.01.00 СБ Сетка арматурная С-1…С-18. Сборочный чертеж
3.501.1-130-1.02.00 Сетка арматурная С-19
3.501.1-130-1.00.01 Хомут
3.501.1-130-2.00.00 Свая железобетонная
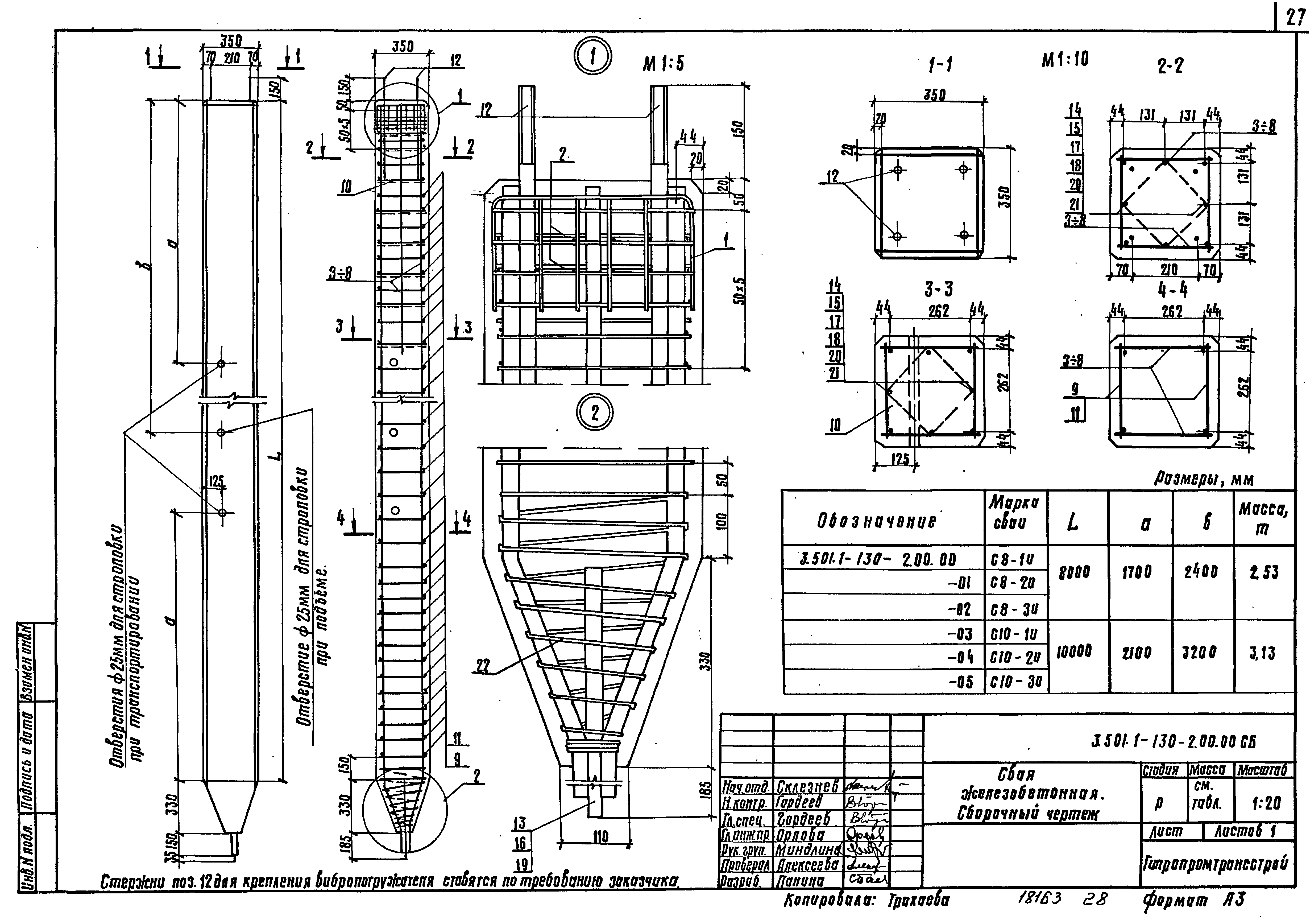
3.501.1-130-2.00.00 СБ Свая железобетонная. Сборочный чертеж
3.501.1-130-2.01.00 Каркас арматурный К-1
3.501.1-130-2.02.00 Сетка арматурная С-1
3.501.1-130-2.03.00 Сетка арматурная С-2…С-7
3.501.1-130-2.03.00 СБ Сетка арматурная С-2…С-7. Сборочный чертеж
3.501.1-130-2.00.01 Хомут
3.501.1-130-2.00.02 Закладная деталь для крепления вибропогружателя
3.501.1-130-3.00.00 Оголовок СТ-1и
3.501.1-130-3.00.00 СБ Оголовок СТ-1и. Сборочный чертеж
3.501.1-130-3.01.00 Каркас арматурный К-1
3.501.1-130-3.01.02 Спираль
3.501.1-130-3.02.00 Сетка арматурная С-1
3.501.1-130-3.03.00 Сетка арматурная С-2
3.501.1-130-3.01.03 Обруч
3.501.1-130-3.00.04 Хомут
3.501.1-130-1.00.02 Строповочная петля
3.501.1-130-1.00.03 Анкерный болт
3.501.1-130-0.01.00 Узел крепления сваи в оголовке
3.501.1-130-0.02.00 Узел крепления опоры к фундаменту
3.501.1-130-0.00.01 Втулка изолирующая
3.501.1-130-0.00.02 Шайба металлическая
3.501.1-130-0.00.03 Подкладка изолирующая
3.501.1-130-0.00.04 Шайба регулировочная
3.501.1-130-0.03.00 Короб деревянный для фундаментов опор
3.501.1-130-0.03.00 СБ Короб деревянный для фундаментов опор. Сборочный чертеж
3.501.1-130-0.04.00 Щит короба
3.501.1-130-0.04.00 СБ Щит короба. Сборочный чертеж
3.501.1-130-0.00.00 ВС Ведомость расхода стали на элемент
Разработан: Гипропромтрансстрой
Утверждён:27.01.1982 МПС (Ministry of Railroads П-2853)
Расположен в:Техническая документация Строительство Справочные документы Типовые строительные конструкции, изделия и узлы Общероссийский строительный каталог Строительные конструкции, изделия и узлы зданий и сооружений для всех видов строительства Конструкции и изделия сооружений и оборудования зданий Подземные сооружения Сваи и фундаменты
Серия 3.501.1-130Серия 3.501.1-130Серия 3.501.1-130Серия 3.501.1-130Серия 3.501.1-130Серия 3.501.1-130Серия 3.501.1-130Серия 3.501.1-130Серия 3.501.1-130Серия 3.501.1-130Серия 3.501.1-130Серия 3.501.1-130Серия 3.501.1-130Серия 3.501.1-130Серия 3.501.1-130Серия 3.501.1-130Серия 3.501.1-130Серия 3.501.1-130Серия 3.501.1-130Серия 3.501.1-130Серия 3.501.1-130Серия 3.501.1-130Серия 3.501.1-130Серия 3.501.1-130Серия 3.501.1-130Серия 3.501.1-130Серия 3.501.1-130Серия 3.501.1-130Серия 3.501.1-130Серия 3.501.1-130Серия 3.501.1-130Серия 3.501.1-130Серия 3.501.1-130Серия 3.501.1-130Серия 3.501.1-130Серия 3.501.1-130Серия 3.501.1-130Серия 3.501.1-130Серия 3.501.1-130Серия 3.501.1-130Серия 3.501.1-130Серия 3.501.1-130Серия 3.501.1-130Серия 3.501.1-130

© 2013 Ёшкин Кот :-) Карта сайта