Информационная система
«Ёшкин Кот»

Скачать базу одним архивом
Скачать обновления
История создания базы
Карта сайта

Скачать Серия 1.481.3-2 Выпуск 2. Изделия. Чертежи КМ

Дата актуализации: 10.08.2017

Серия 1.481.3-2

Выпуск 2. Изделия. Чертежи КМ

Обозначение: Серия 1.481.3-2
Обозначение англ: Series 1.481.3-2
Статус:не определен законодательством
Название рус.:Выпуск 2. Изделия. Чертежи КМ
Дата добавления в базу:01.09.2013
Дата актуализации:05.05.2017
Дата введения:15.06.1989
Оглавление:1.481.3-2.2-ПЗ Пояснительная записка
1.481.3-2.2-ТУ Конструкции унифицированные комплектной поставки встроенных постов управления. Технические условия
1.481.3-2.2-01 КМ Панель стеновая ПК3
1.481.3-2.2-02 КМ Панель стеновая ПО3, ПЦ3
1.481.3-2.2-03 КМ Панель стеновая ПГ3, ПВ3, ПВ3н
1.481.3-2.2-04 КМ Панель стеновая ПК4,5
1.481.3-2.2-05 КМ Панель стеновая ПО4,5, ПЦ4,5
1.481.3-2.2-06 КМ Панель стеновая ПГ4,5; ПВ4,5; ПВ4,5н
1.481.3-2.2-07 КМ Панель стеновая ПР0,5, ПР1,5, Порог П
1.481.3-2.2-08 КМ Блок дверной БД. Проушина ГЦ
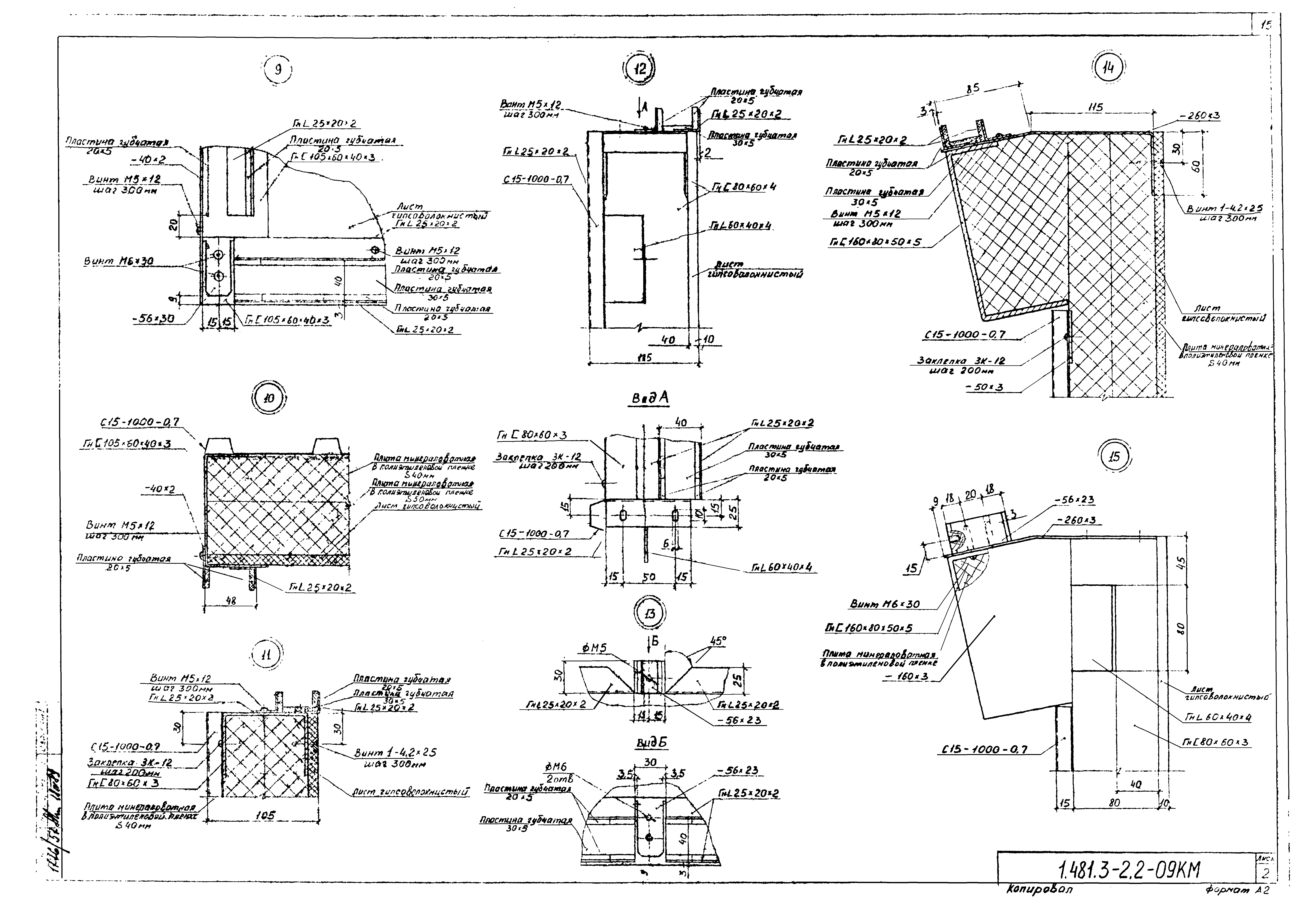
1.481.3-2.2-09 КМ Узел 1 - 22
1.481.3-2.2-10 КМ Балка БО3-1, БО4,5, БО3-2, ВС, БП
1.481.3-2.2-11 КМ Стойка СР, СН, СБ-2, СМ, С-1, С-2, СБ-1
1.481.3-2.2-12 КМ Изделие комплектующее БК4,5, БК3, РК, В, СК, ЗГ-1, ЗГ-2, ЗГ-3, Н, ЭП-1, ЭП-2, ЭП-3, ЭП-4
1.481.3-2.2-13 КМ Площадка ПМ
1.481.3-2.2-14 КМ Потолок подвесной. Детали
Разработан: ВНИПИ Тяжпромэлектропроект
ЦНИИПроектлегконструкция
Утверждён:05.05.1988 Союзлегконструкция
Расположен в:Техническая документация Строительство Справочные документы Типовые строительные конструкции, изделия и узлы Общероссийский строительный каталог Строительные конструкции, изделия и узлы зданий и сооружений для всех видов строительства Конструкции, изделия и узлы зданий Оснащение зданий. Встроенное оборудование
Серия 1.481.3-2Серия 1.481.3-2Серия 1.481.3-2Серия 1.481.3-2Серия 1.481.3-2Серия 1.481.3-2Серия 1.481.3-2Серия 1.481.3-2Серия 1.481.3-2Серия 1.481.3-2Серия 1.481.3-2Серия 1.481.3-2Серия 1.481.3-2Серия 1.481.3-2Серия 1.481.3-2Серия 1.481.3-2Серия 1.481.3-2Серия 1.481.3-2Серия 1.481.3-2Серия 1.481.3-2Серия 1.481.3-2Серия 1.481.3-2Серия 1.481.3-2

© 2013 Ёшкин Кот :-) Карта сайта