Информационная система
«Ёшкин Кот»

Скачать базу одним архивом
Скачать обновления
История создания базы
Карта сайта

Скачать Серия 1.273.9-5 Выпуск 6. Облицовки из гипсоволокнистых листов на металлическом каркасе. Рабочие чертежи

Дата актуализации: 10.08.2017

Серия 1.273.9-5

Выпуск 6. Облицовки из гипсоволокнистых листов на металлическом каркасе. Рабочие чертежи

Обозначение: Серия 1.273.9-5
Обозначение англ: Series 1.273.9-5
Статус:не определен законодательством
Название рус.:Выпуск 6. Облицовки из гипсоволокнистых листов на металлическом каркасе. Рабочие чертежи
Дата добавления в базу:01.09.2013
Дата актуализации:05.05.2017
Дата введения:01.07.1987
Оглавление:1.273.9-5.6-0.0ПЗ Пояснительная записка
1.273.9-5.6-0.0ВД Ведомость ссылочных документов
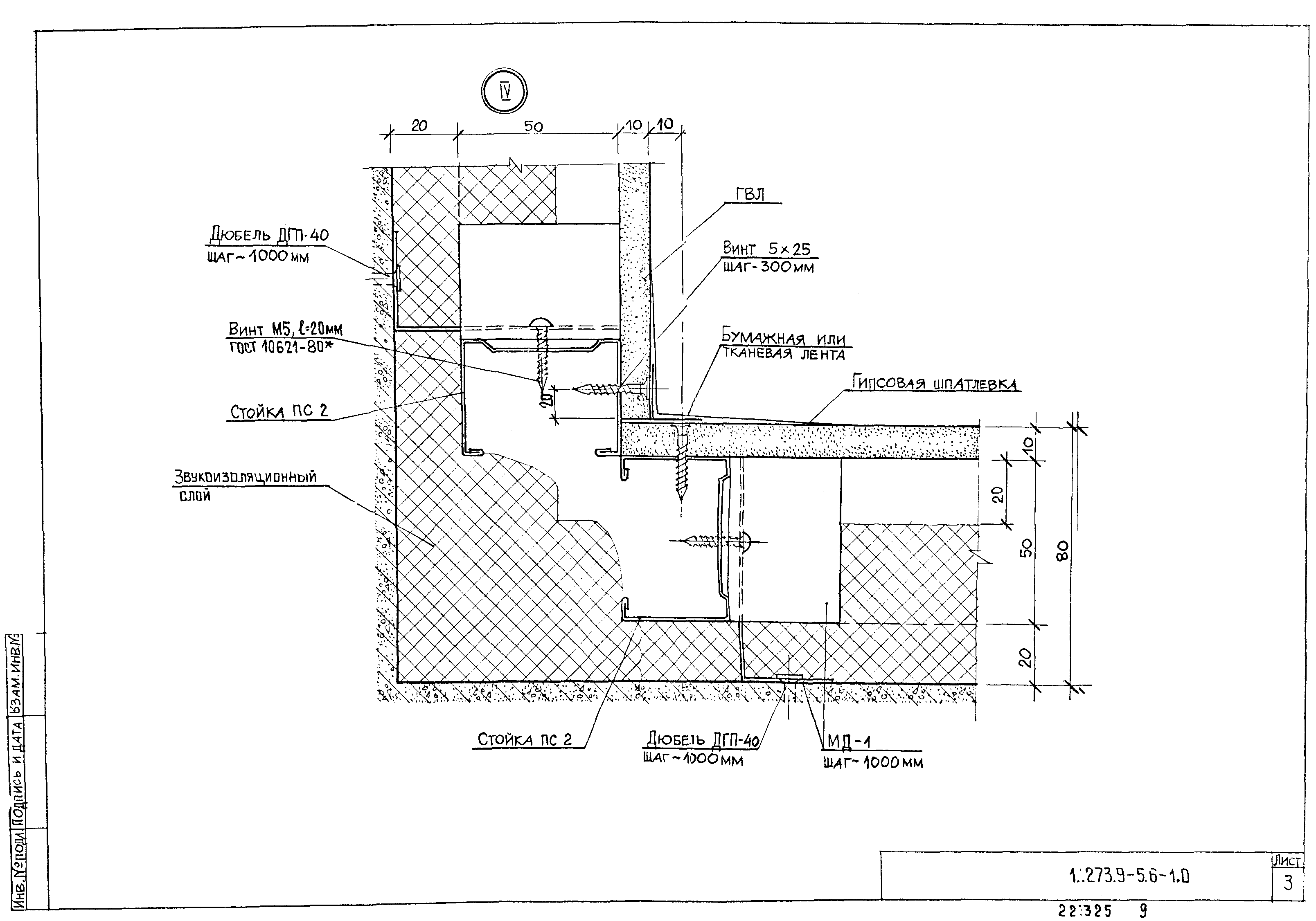
1.273.9-5.6-1.0 Облицовка ОГВМ-1м/ОГВМ-1/ (фрагмент). Узлы I…X. Пример
1.273.9-5.6-2.0 Облицовка ОГВМ-2 /ОГВМ-2/ (фрагмент). Узлы I…VII. Пример
1.273.9-5.6-3.0 Примеры установки анкера падающего, крючка, анкера проходного и дюбеля разжимного
1.273.9-5.6-0.1 Профиль стойки ПС2
1.273.9-5.6-0.2 Профиль направляющий ПН2
1.273.9-5.6-0.3 Винт
1.273.9-5.6-0.4 Монтажная деталь МД-1 (обрезок ПС2, L = 100 мм)
1.273.9-5.6-0.5 Анкер падающий
1.273.9-5.6-0.6 Дюбель разжимной
1.273.9-5.6-0.7 Крючок
1.273.9-5.6-0.8 Анкер проходной
1.273.9-5.6-0.9 Дюбель-гвоздь пистолетный
Разработан: ЦНИИЭП торгово-бытовых зданий и туристских комплексов
Утверждён:19.05.1987 Государственный комитет по гражданскому строительству и архитектуре при Госстрое СССР (161)
Расположен в:Техническая документация Строительство Справочные документы Типовые строительные конструкции, изделия и узлы Общероссийский строительный каталог Строительные конструкции, изделия и узлы зданий и сооружений для всех видов строительства Конструкции, изделия и узлы зданий Оснащение зданий. Встроенное оборудование
Серия 1.273.9-5Серия 1.273.9-5Серия 1.273.9-5Серия 1.273.9-5Серия 1.273.9-5Серия 1.273.9-5Серия 1.273.9-5Серия 1.273.9-5Серия 1.273.9-5Серия 1.273.9-5Серия 1.273.9-5Серия 1.273.9-5Серия 1.273.9-5Серия 1.273.9-5Серия 1.273.9-5Серия 1.273.9-5Серия 1.273.9-5Серия 1.273.9-5Серия 1.273.9-5Серия 1.273.9-5Серия 1.273.9-5Серия 1.273.9-5

© 2013 Ёшкин Кот :-) Карта сайта