Информационная система
«Ёшкин Кот»

Скачать базу одним архивом
Скачать обновления
История создания базы
Карта сайта

Скачать Серия 1.273.9-5 Выпуск 5. Облицовки из гипсоволокнистых листов на деревянном каркасе. Рабочие чертежи

Дата актуализации: 10.08.2017

Серия 1.273.9-5

Выпуск 5. Облицовки из гипсоволокнистых листов на деревянном каркасе. Рабочие чертежи

Обозначение: Серия 1.273.9-5
Обозначение англ: Series 1.273.9-5
Статус:не определен законодательством
Название рус.:Выпуск 5. Облицовки из гипсоволокнистых листов на деревянном каркасе. Рабочие чертежи
Дата добавления в базу:01.09.2013
Дата актуализации:05.05.2017
Дата введения:01.07.1987
Оглавление:1.273.9-5.5-0.0ПЗ Пояснительная записка
1.273.9-5.5-0.0ВД Ведомость ссылочных документов
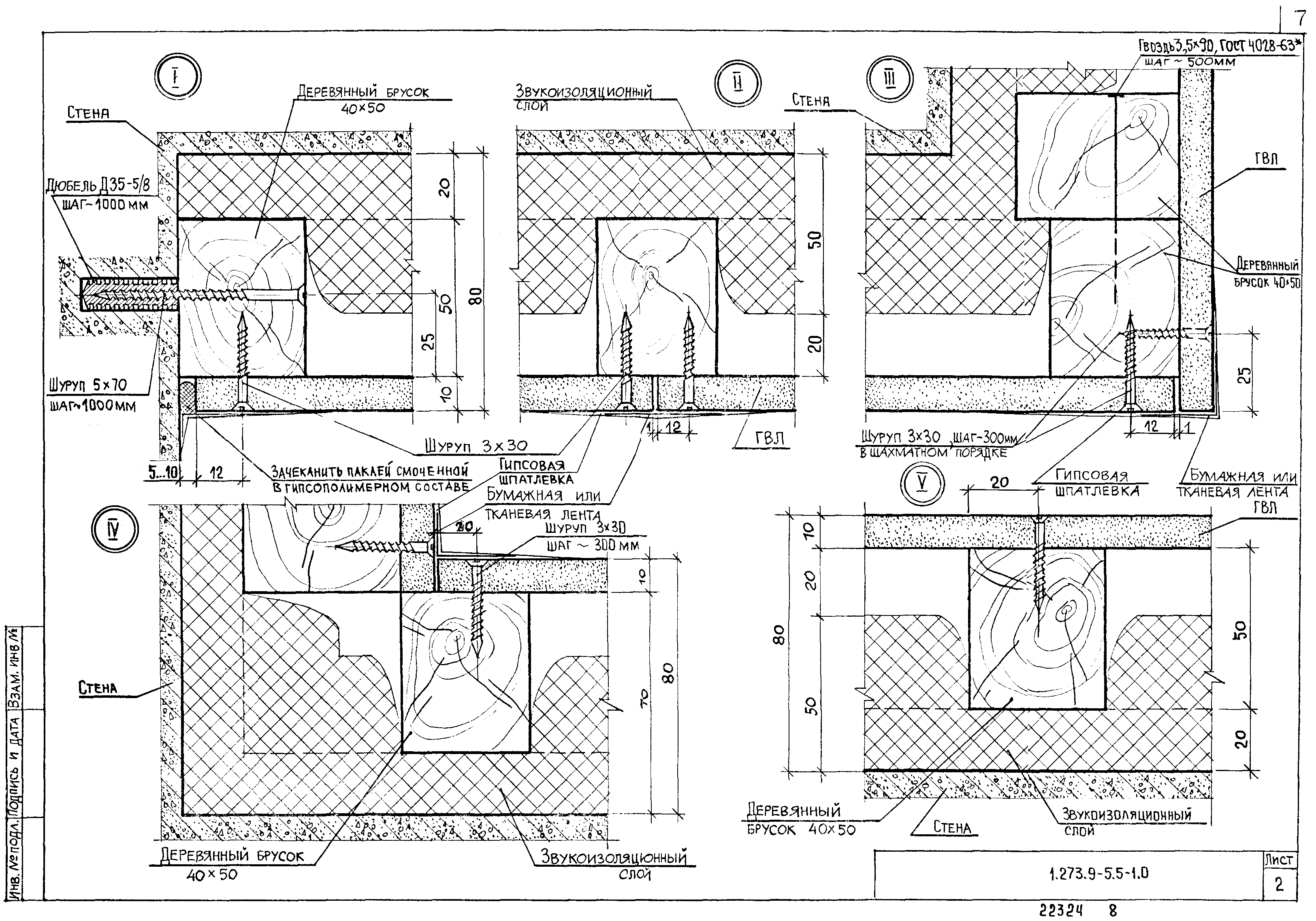
1.273.9-5.5-1.0 Облицовка ОГВД-1м/ОГВД-1/(фрагмент). Узлы 1...8;1а...4а,6а Пример
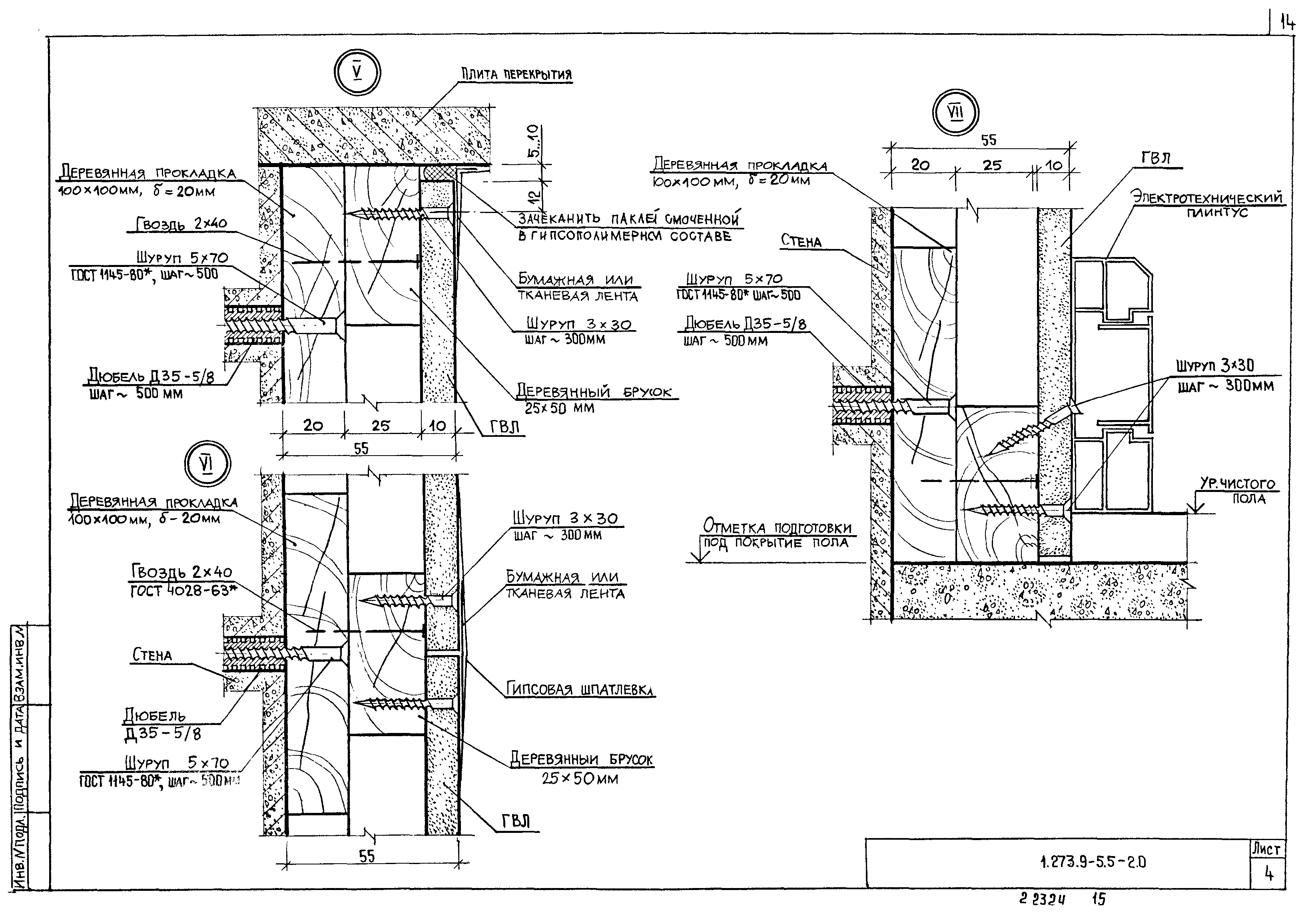
1.273.9-5.5-2.0 Облицовка ОГВД-2(фрагмент). Узлы 1...7;1а...6а Пример
1.273.9-5.5-3.0 Примеры установки анкера падающего, крючка, анкера проходного и дюбеля разжимного
1.273.9-5.5-0.1 Крючок
1.273.9-5.5-0.2 Анкер проходной
1.273.9-5.5-0.3 Анкер падающий
1.273.9-5.5-0.4 Дюбель разжимной
Разработан: ЦНИИЭП торгово-бытовых зданий и туристских комплексов
Утверждён:19.05.1987 Государственный комитет по гражданскому строительству и архитектуре при Госстрое СССР (161)
Расположен в:Техническая документация Строительство Справочные документы Типовые строительные конструкции, изделия и узлы Общероссийский строительный каталог Строительные конструкции, изделия и узлы зданий и сооружений для всех видов строительства Конструкции, изделия и узлы зданий Оснащение зданий. Встроенное оборудование
Серия 1.273.9-5Серия 1.273.9-5Серия 1.273.9-5Серия 1.273.9-5Серия 1.273.9-5Серия 1.273.9-5Серия 1.273.9-5Серия 1.273.9-5Серия 1.273.9-5Серия 1.273.9-5Серия 1.273.9-5Серия 1.273.9-5Серия 1.273.9-5Серия 1.273.9-5Серия 1.273.9-5Серия 1.273.9-5Серия 1.273.9-5Серия 1.273.9-5Серия 1.273.9-5

© 2013 Ёшкин Кот :-) Карта сайта