Информационная система
«Ёшкин Кот»

Скачать базу одним архивом
Скачать обновления
История создания базы
Карта сайта

Скачать Серия 1.273.9-5 Выпуск 3. Облицовки из цементностружечных плит на деревянном каркасе. Рабочие чертежи

Дата актуализации: 10.08.2017

Серия 1.273.9-5

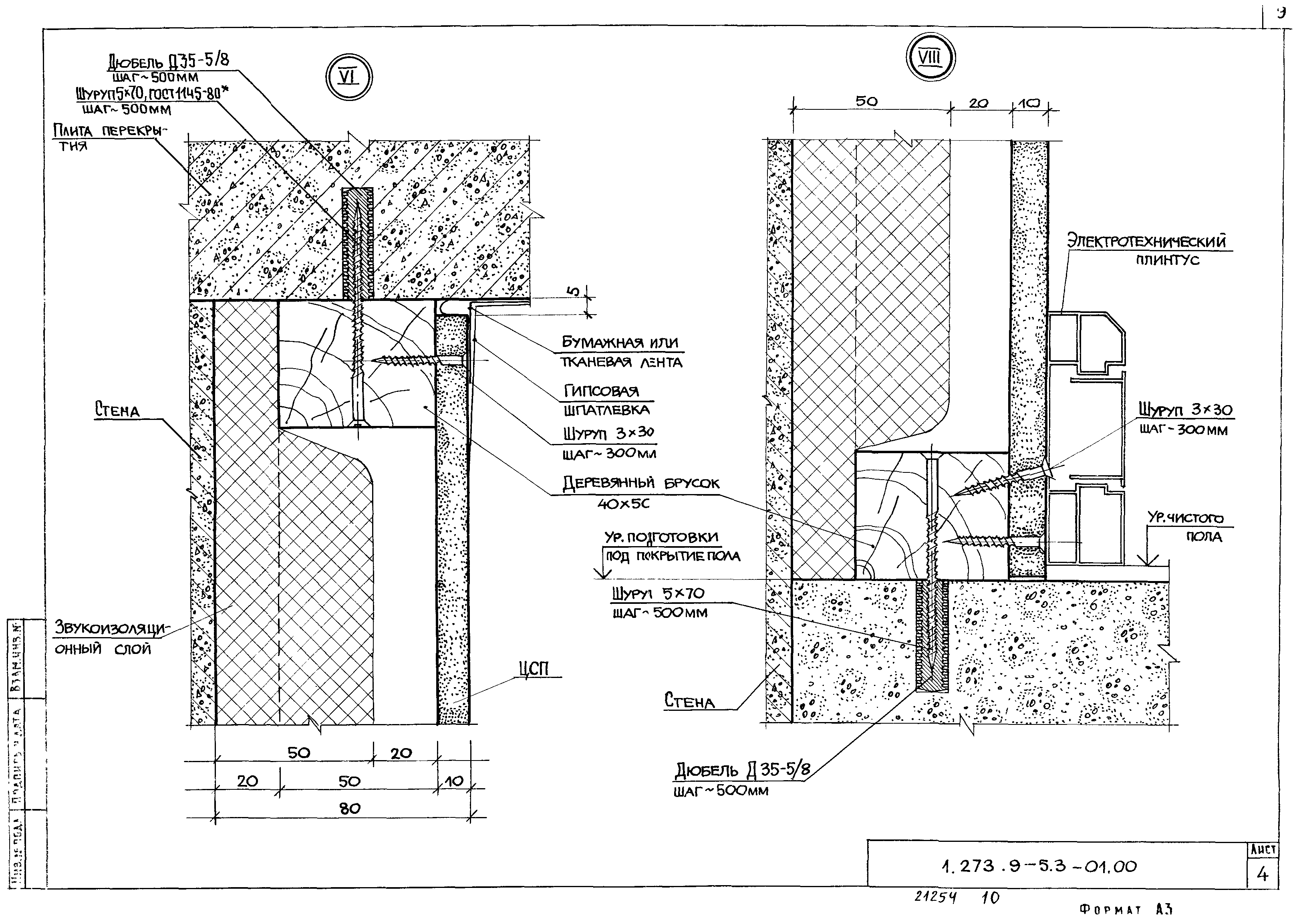
Выпуск 3. Облицовки из цементностружечных плит на деревянном каркасе. Рабочие чертежи

Обозначение: Серия 1.273.9-5
Обозначение англ: Series 1.273.9-5
Статус:не определен законодательством
Название рус.:Выпуск 3. Облицовки из цементностружечных плит на деревянном каркасе. Рабочие чертежи
Дата добавления в базу:01.09.2013
Дата актуализации:05.05.2017
Дата введения:01.05.1986
Оглавление:1.273.9-5.3-00.00ПЗ Пояснительная записка
1.273.9-5.3-00.00ВД Ведомость ссылочных документов
1.273.9-5.3-01.00 Облицовка ОЦД-1м/ОЦД-1/(фрагмент). Узлы 1-8;1а-4а,6а Пример
1.273.9-5.3-02.00 Облицовка ОЦД-2(фрагмент). Узлы 1-7;1а-6а Пример
1.273.9-5.3-03.00 Примеры установки анкера падающего, крючка, анкера проходного и дюбеля разжимного
1.273.9-5.3-00.01 Крючок
1.273.9-5.3-00.02 Анкер проходной
1.273.9-5.3-00.03 Анкер падающий
1.273.9-5.3-00.04 Дюбель разжимной
Разработан: ЦНИИЭП торгово-бытовых зданий и туристских комплексов
Утверждён:28.03.1986 Государственный комитет по гражданскому строительству и архитектуре при Госстрое СССР (114)
Расположен в:Техническая документация Строительство Справочные документы Типовые строительные конструкции, изделия и узлы Общероссийский строительный каталог Строительные конструкции, изделия и узлы зданий и сооружений для всех видов строительства Конструкции, изделия и узлы зданий Оснащение зданий. Встроенное оборудование
Серия 1.273.9-5Серия 1.273.9-5Серия 1.273.9-5Серия 1.273.9-5Серия 1.273.9-5Серия 1.273.9-5Серия 1.273.9-5Серия 1.273.9-5Серия 1.273.9-5Серия 1.273.9-5Серия 1.273.9-5Серия 1.273.9-5Серия 1.273.9-5Серия 1.273.9-5Серия 1.273.9-5Серия 1.273.9-5Серия 1.273.9-5Серия 1.273.9-5Серия 1.273.9-5

© 2013 Ёшкин Кот :-) Карта сайта