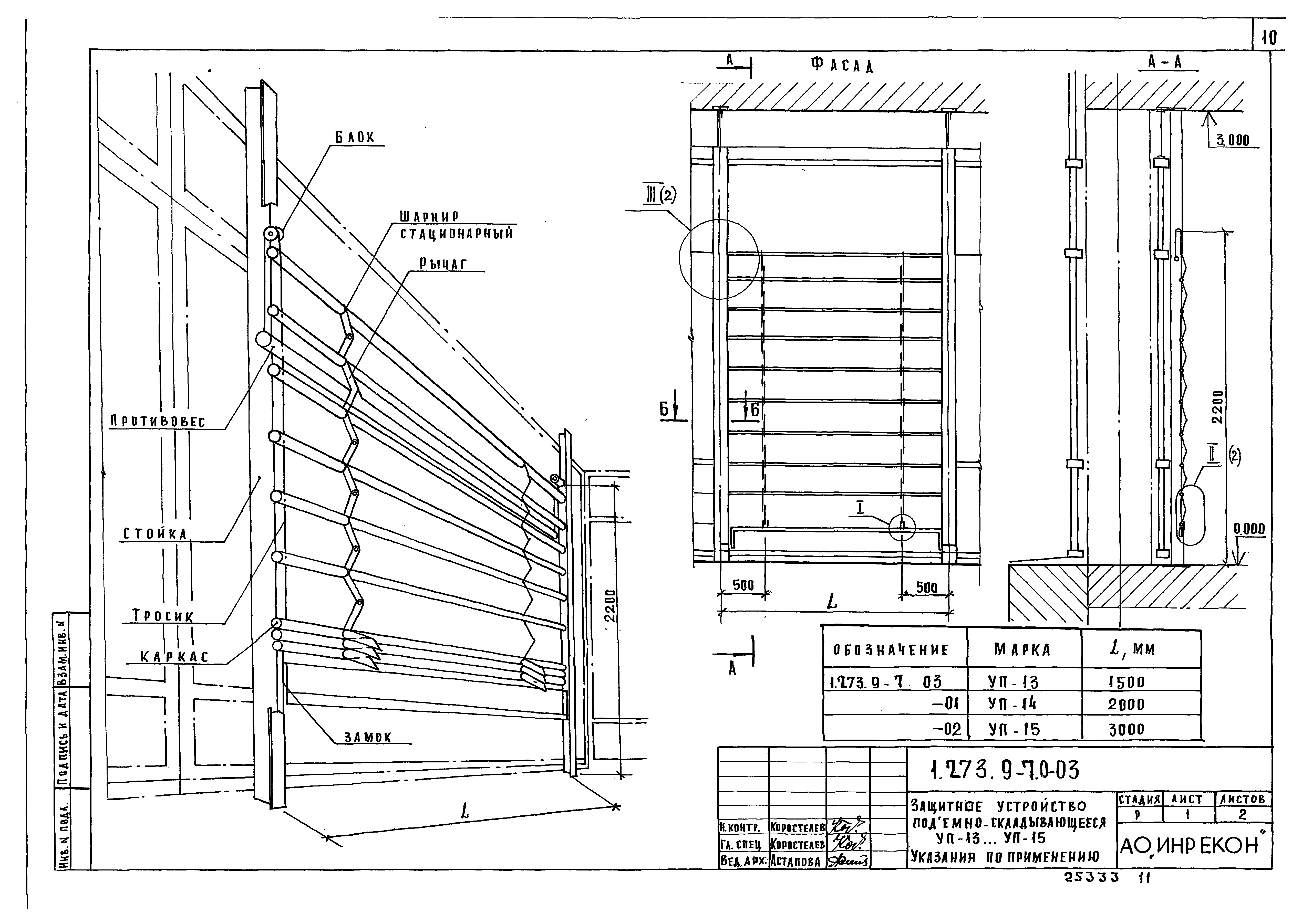
Скачать Серия 1.273.9-7 Выпуск 0. Указания по применениюДата актуализации: 10.08.2017 Серия 1.273.9-7
Выпуск 0. Указания по применениюОбозначение: | Серия 1.273.9-7 | Обозначение англ: | Series 1.273.9-7 | Статус: | не определен законодательством | Название рус.: | Выпуск 0. Указания по применению | Дата добавления в базу: | 01.09.2013 | Дата актуализации: | 05.05.2017 | Дата введения: | 01.04.1992 | Разработан: | АО ИНРЕКОН
| Утверждён: | 29.11.1991 Госкомархитектура (169)
| Расположен в: |
|
                  
|