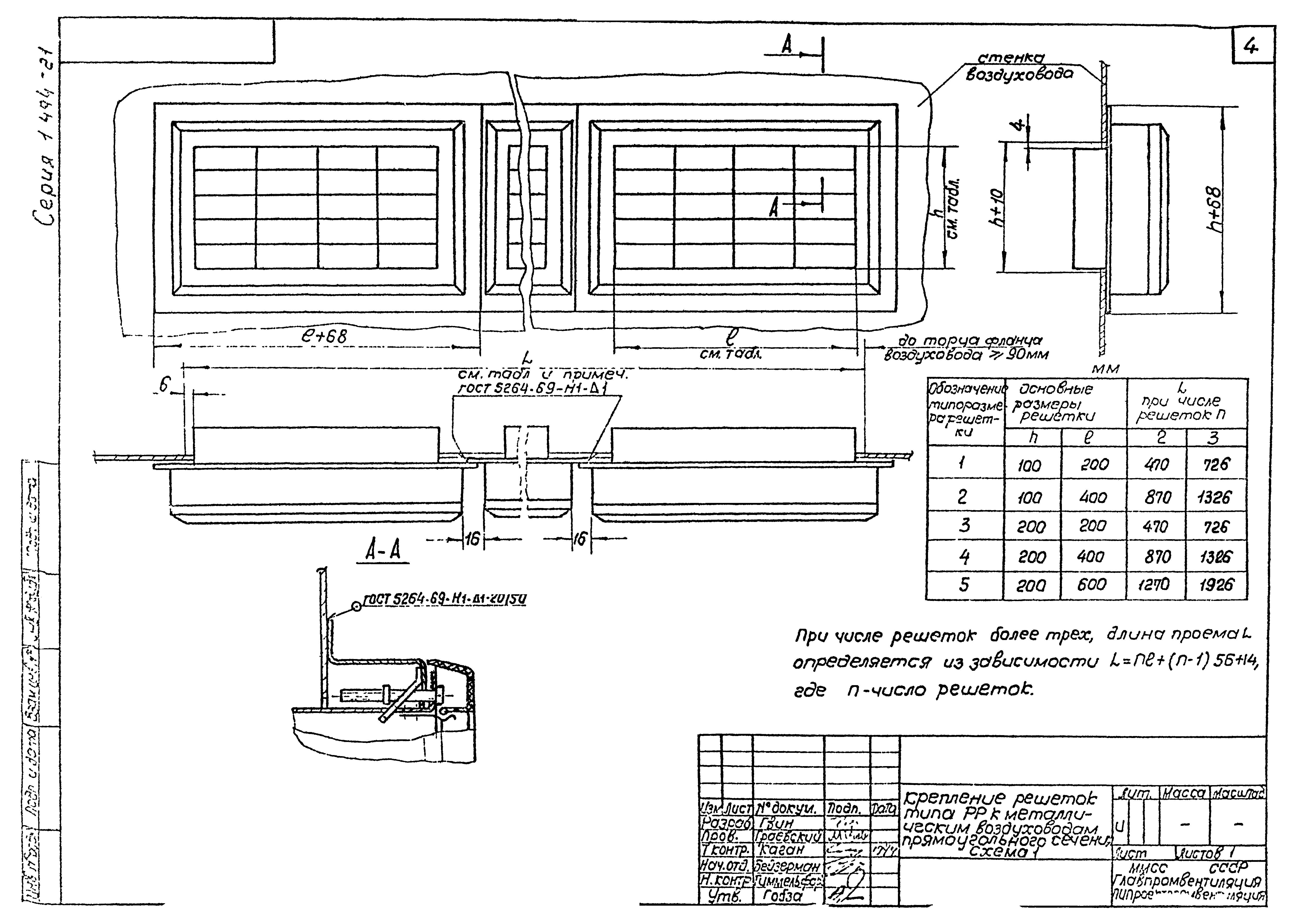
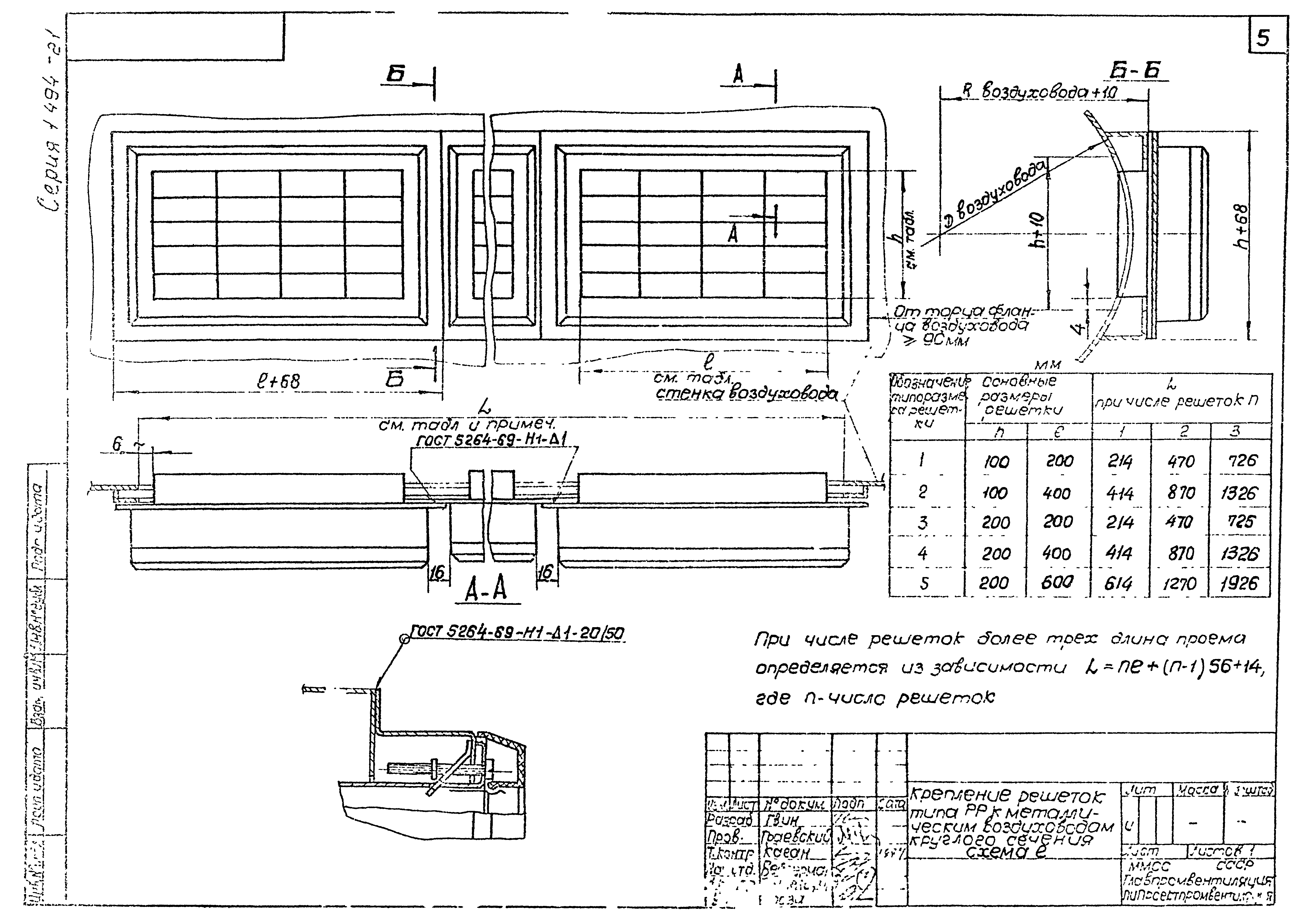
Скачать Серия 1.494-21 Крепления решеток воздухоприточных типа РР и щелевых регулирующих типа Р к воздуховодам и строительным конструкциямДата актуализации: 10.08.2017 Серия 1.494-21
Крепления решеток воздухоприточных типа "РР" и щелевых регулирующих типа "Р" к воздуховодам и строительным конструкциямОбозначение: | Серия 1.494-21 | Обозначение англ: | Series 1.494-21 | Статус: | не определен законодательством | Название рус.: | Крепления решеток воздухоприточных типа "РР" и щелевых регулирующих типа "Р" к воздуховодам и строительным конструкциям | Дата добавления в базу: | 01.09.2013 | Дата актуализации: | 05.05.2017 | Дата введения: | 01.06.1975 | Разработан: | Проектпромвентиляция
| Утверждён: | 16.05.1975 Главпромстройпроект Госстроя СССР (29)
| Расположен в: |
|
          
|