Информационная система
«Ёшкин Кот»

Скачать базу одним архивом
Скачать обновления
История создания базы
Карта сайта

Скачать Серия 1.189.1-9 Выпуск 4. Конструкции унифицированные шахт лифтов грузоподъемностью 630 и 500 кг с противовесом справа кабины (глубокая кабина) для зданий высотой до 17 этажей. Рабочие чертежи

Дата актуализации: 10.08.2017

Серия 1.189.1-9

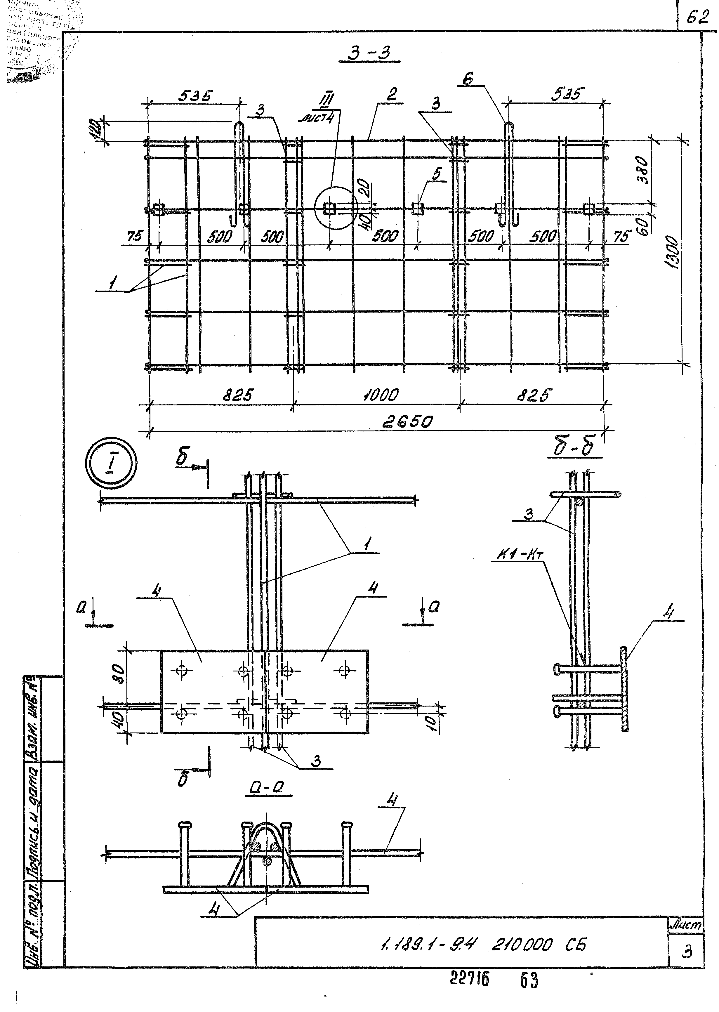
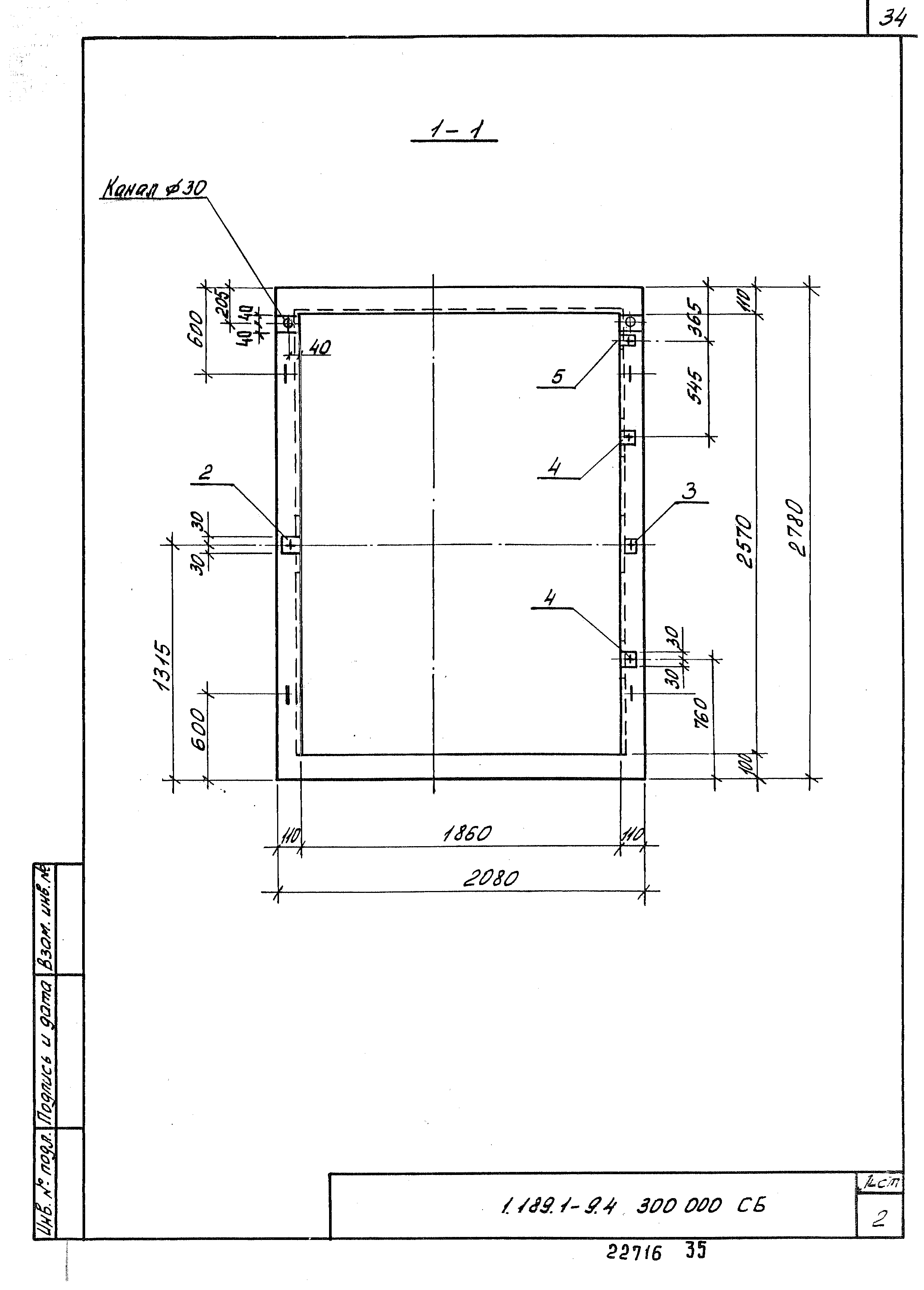
Выпуск 4. Конструкции унифицированные шахт лифтов грузоподъемностью 630 и 500 кг с противовесом справа кабины (глубокая кабина) для зданий высотой до 17 этажей. Рабочие чертежи

Обозначение: Серия 1.189.1-9
Обозначение англ: Series 1.189.1-9
Статус:не определен законодательством
Название рус.:Выпуск 4. Конструкции унифицированные шахт лифтов грузоподъемностью 630 и 500 кг с противовесом справа кабины (глубокая кабина) для зданий высотой до 17 этажей. Рабочие чертежи
Дата добавления в базу:01.09.2013
Дата актуализации:05.05.2017
Дата введения:01.12.1987
Разработан: ЦНИИЭП жилища
Утверждён:30.11.1987 Госгражданстрой (Gosgrazhdanstroy 385)
Принят: Гипростроммаш
Издан: ЦИТП Госстроя СССР (CITP, Gosstroy (USSR) 1988 г. )
Расположен в:Техническая документация Строительство Справочные документы Типовые строительные конструкции, изделия и узлы Общероссийский строительный каталог Строительные конструкции, изделия и узлы зданий и сооружений для всех видов строительства Конструкции, изделия и узлы зданий Несущие конструкции двухэтажных и многоэтажных зданий Шахты лифтов
Серия 1.189.1-9Серия 1.189.1-9Серия 1.189.1-9Серия 1.189.1-9Серия 1.189.1-9Серия 1.189.1-9Серия 1.189.1-9Серия 1.189.1-9Серия 1.189.1-9Серия 1.189.1-9Серия 1.189.1-9Серия 1.189.1-9Серия 1.189.1-9Серия 1.189.1-9Серия 1.189.1-9Серия 1.189.1-9Серия 1.189.1-9Серия 1.189.1-9Серия 1.189.1-9Серия 1.189.1-9Серия 1.189.1-9Серия 1.189.1-9Серия 1.189.1-9Серия 1.189.1-9Серия 1.189.1-9Серия 1.189.1-9Серия 1.189.1-9Серия 1.189.1-9Серия 1.189.1-9Серия 1.189.1-9Серия 1.189.1-9Серия 1.189.1-9Серия 1.189.1-9Серия 1.189.1-9Серия 1.189.1-9Серия 1.189.1-9Серия 1.189.1-9Серия 1.189.1-9Серия 1.189.1-9Серия 1.189.1-9Серия 1.189.1-9Серия 1.189.1-9Серия 1.189.1-9Серия 1.189.1-9Серия 1.189.1-9Серия 1.189.1-9Серия 1.189.1-9Серия 1.189.1-9Серия 1.189.1-9Серия 1.189.1-9Серия 1.189.1-9Серия 1.189.1-9Серия 1.189.1-9Серия 1.189.1-9Серия 1.189.1-9Серия 1.189.1-9Серия 1.189.1-9Серия 1.189.1-9Серия 1.189.1-9Серия 1.189.1-9Серия 1.189.1-9Серия 1.189.1-9Серия 1.189.1-9Серия 1.189.1-9Серия 1.189.1-9Серия 1.189.1-9Серия 1.189.1-9Серия 1.189.1-9Серия 1.189.1-9Серия 1.189.1-9Серия 1.189.1-9Серия 1.189.1-9Серия 1.189.1-9Серия 1.189.1-9Серия 1.189.1-9Серия 1.189.1-9Серия 1.189.1-9Серия 1.189.1-9Серия 1.189.1-9Серия 1.189.1-9Серия 1.189.1-9Серия 1.189.1-9Серия 1.189.1-9Серия 1.189.1-9Серия 1.189.1-9Серия 1.189.1-9Серия 1.189.1-9Серия 1.189.1-9Серия 1.189.1-9Серия 1.189.1-9Серия 1.189.1-9Серия 1.189.1-9Серия 1.189.1-9Серия 1.189.1-9Серия 1.189.1-9Серия 1.189.1-9Серия 1.189.1-9Серия 1.189.1-9Серия 1.189.1-9Серия 1.189.1-9Серия 1.189.1-9

© 2013 Ёшкин Кот :-) Карта сайта