Информационная система
«Ёшкин Кот»

Скачать базу одним архивом
Скачать обновления
История создания базы
Карта сайта

Скачать Серия 1.189.1-8 Выпуск 2. Материалы для проектирования и объемные элементы шахт пассажирских лифтов грузоподъемностью 400 кг с противовесом сзади кабины. Рабочие чертежи

Дата актуализации: 10.08.2017

Серия 1.189.1-8

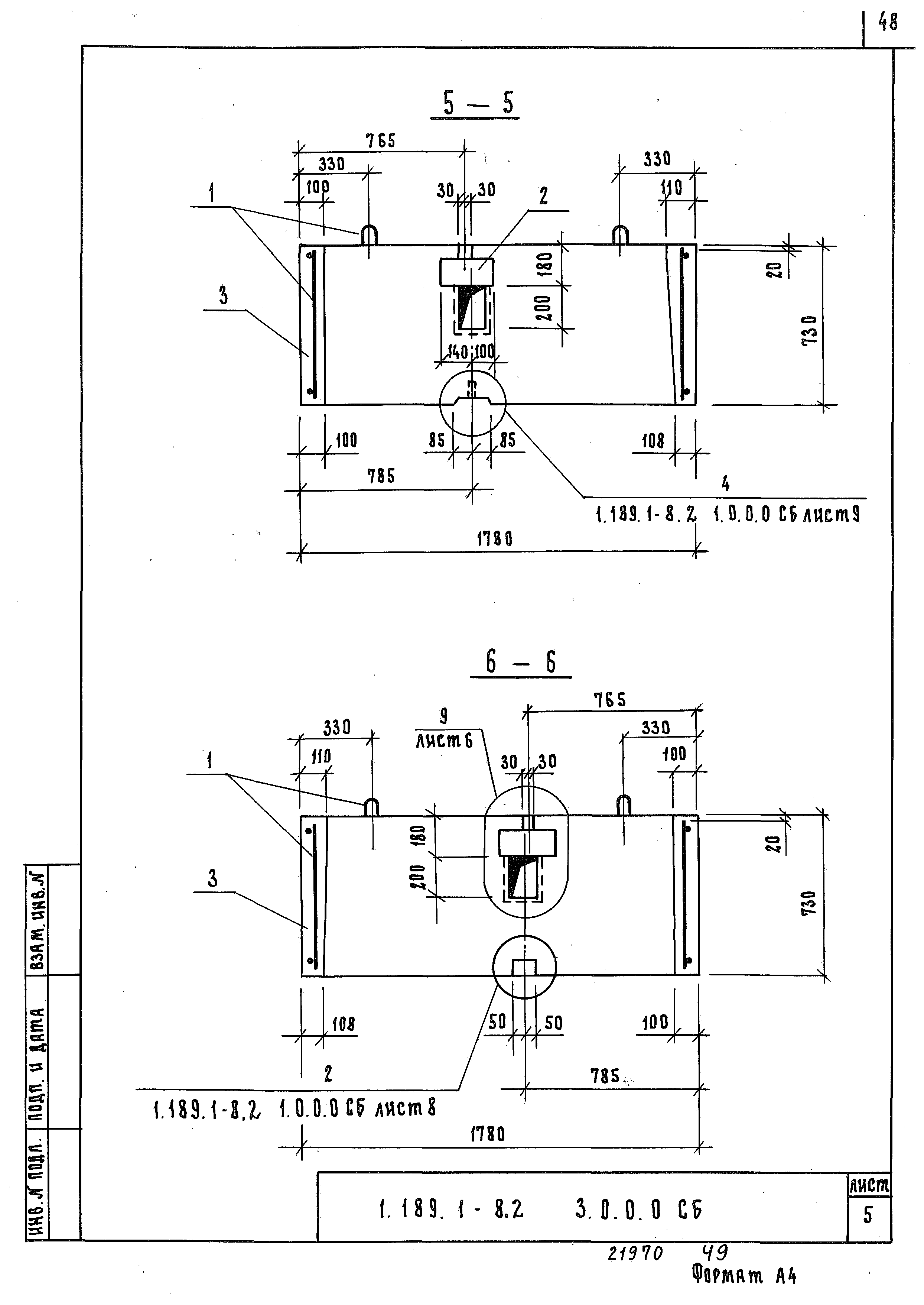
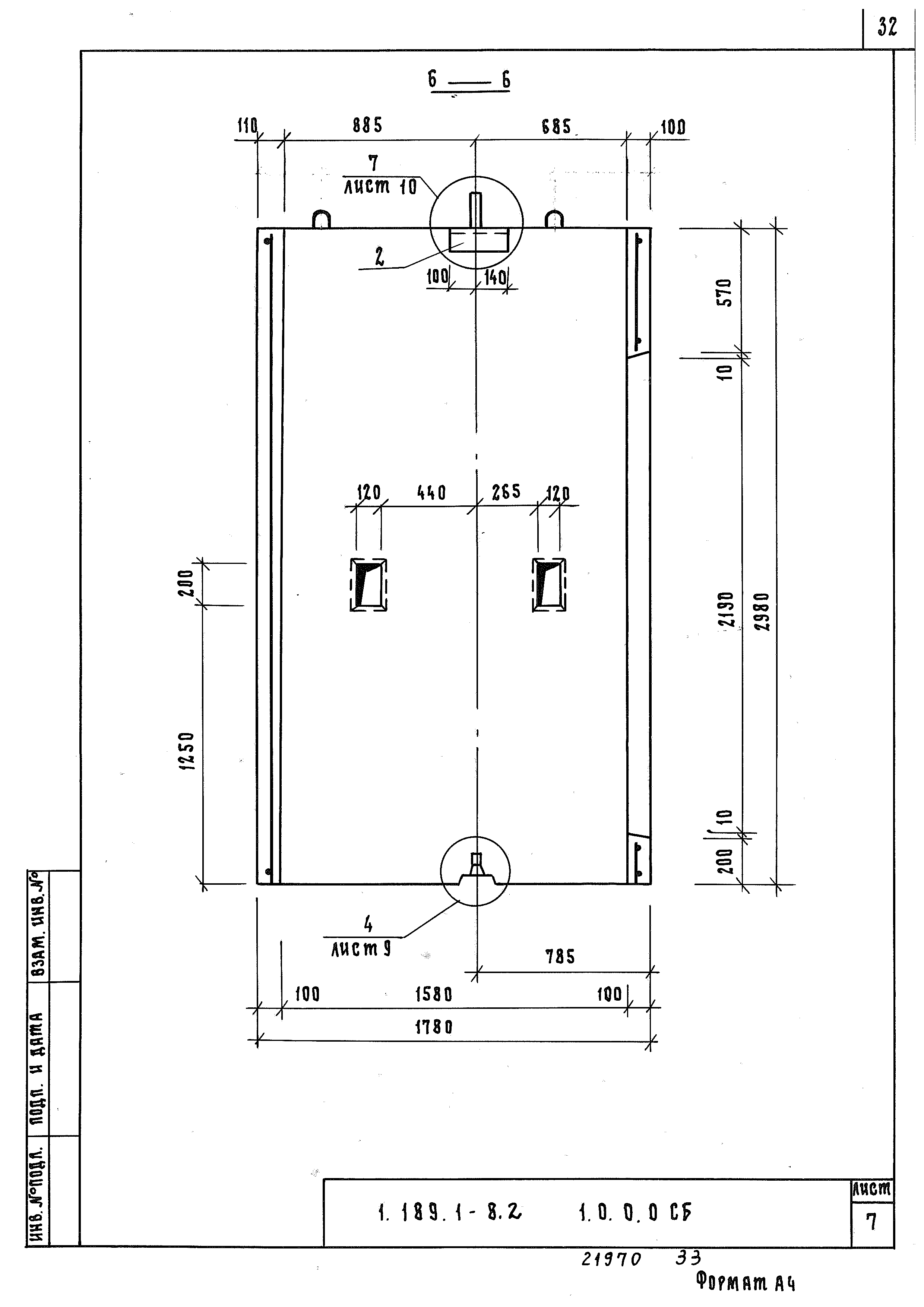
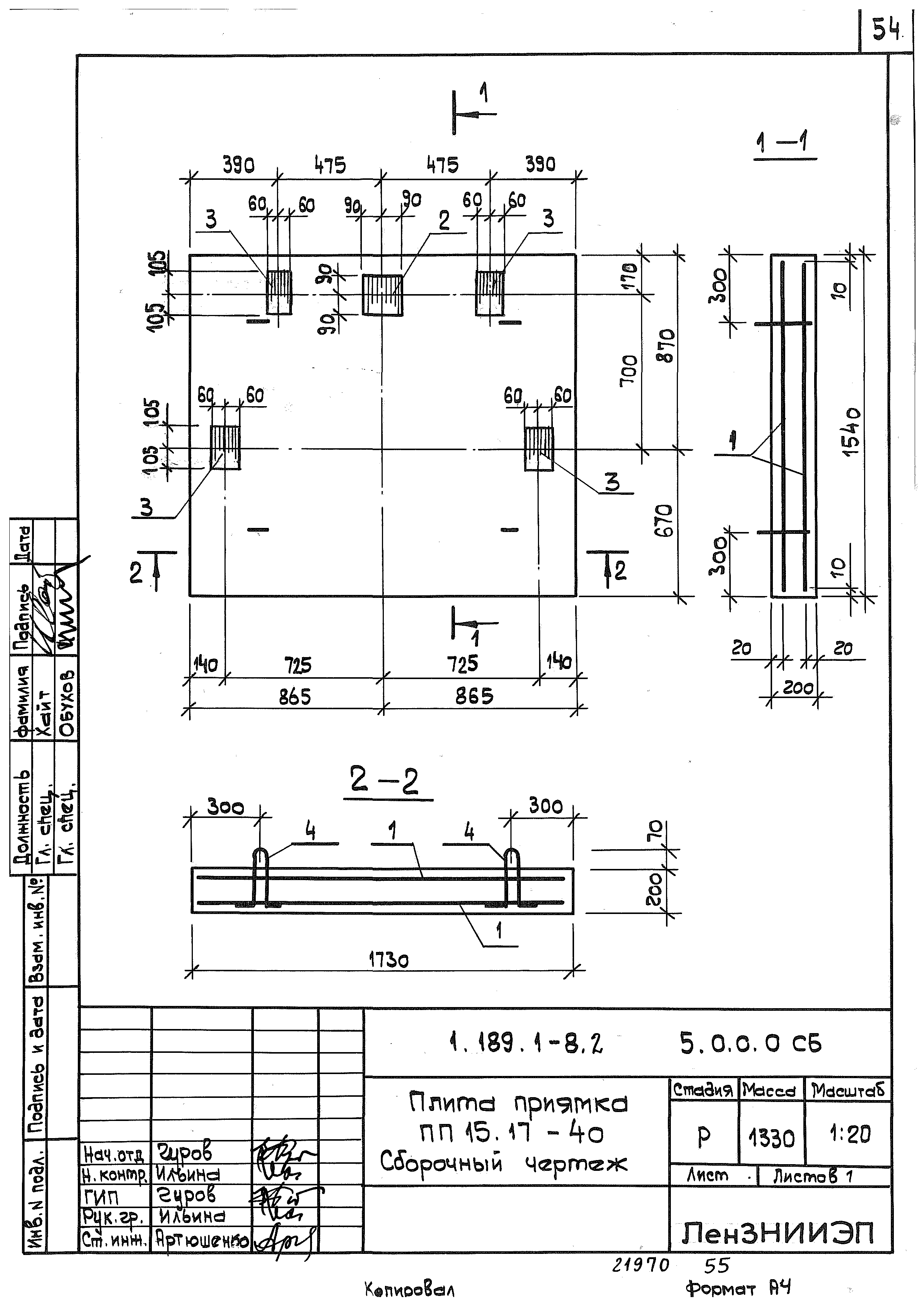
Выпуск 2. Материалы для проектирования и объемные элементы шахт пассажирских лифтов грузоподъемностью 400 кг с противовесом сзади кабины. Рабочие чертежи

Обозначение: Серия 1.189.1-8
Обозначение англ: Series 1.189.1-8
Статус:действует
Название рус.:Выпуск 2. Материалы для проектирования и объемные элементы шахт пассажирских лифтов грузоподъемностью 400 кг с противовесом сзади кабины. Рабочие чертежи
Дата добавления в базу:01.09.2013
Дата актуализации:05.05.2017
Дата введения:15.04.1986
Область применения:Настоящие чертежи объемных элементов железобетонных шахт лифтов для жилых домов до 9 этажей с высотой этажа 3,0 м, строящихся в обычных условиях и на вечномерзлых грунтах используемых по принципу I и II
Разработан: ЛенЗНИИЭП Госгражданстроя
Утверждён:18.03.1986 Госгражданстрой (Gosgrazhdanstroy 94)
Принят: ЦПКБ Союзлифтмаш
Расположен в:Техническая документация Строительство Справочные документы Типовые строительные конструкции, изделия и узлы Общероссийский строительный каталог Строительные конструкции, изделия и узлы зданий и сооружений для всех видов строительства Конструкции, изделия и узлы зданий Несущие конструкции двухэтажных и многоэтажных зданий Шахты лифтов
Серия 1.189.1-8Серия 1.189.1-8Серия 1.189.1-8Серия 1.189.1-8Серия 1.189.1-8Серия 1.189.1-8Серия 1.189.1-8Серия 1.189.1-8Серия 1.189.1-8Серия 1.189.1-8Серия 1.189.1-8Серия 1.189.1-8Серия 1.189.1-8Серия 1.189.1-8Серия 1.189.1-8Серия 1.189.1-8Серия 1.189.1-8Серия 1.189.1-8Серия 1.189.1-8Серия 1.189.1-8Серия 1.189.1-8Серия 1.189.1-8Серия 1.189.1-8Серия 1.189.1-8Серия 1.189.1-8Серия 1.189.1-8Серия 1.189.1-8Серия 1.189.1-8Серия 1.189.1-8Серия 1.189.1-8Серия 1.189.1-8Серия 1.189.1-8Серия 1.189.1-8Серия 1.189.1-8Серия 1.189.1-8Серия 1.189.1-8Серия 1.189.1-8Серия 1.189.1-8Серия 1.189.1-8Серия 1.189.1-8Серия 1.189.1-8Серия 1.189.1-8Серия 1.189.1-8Серия 1.189.1-8Серия 1.189.1-8Серия 1.189.1-8Серия 1.189.1-8Серия 1.189.1-8Серия 1.189.1-8Серия 1.189.1-8Серия 1.189.1-8Серия 1.189.1-8Серия 1.189.1-8Серия 1.189.1-8Серия 1.189.1-8Серия 1.189.1-8Серия 1.189.1-8Серия 1.189.1-8Серия 1.189.1-8Серия 1.189.1-8Серия 1.189.1-8Серия 1.189.1-8Серия 1.189.1-8Серия 1.189.1-8Серия 1.189.1-8Серия 1.189.1-8Серия 1.189.1-8Серия 1.189.1-8Серия 1.189.1-8Серия 1.189.1-8Серия 1.189.1-8Серия 1.189.1-8Серия 1.189.1-8Серия 1.189.1-8Серия 1.189.1-8Серия 1.189.1-8Серия 1.189.1-8Серия 1.189.1-8Серия 1.189.1-8Серия 1.189.1-8Серия 1.189.1-8Серия 1.189.1-8Серия 1.189.1-8Серия 1.189.1-8Серия 1.189.1-8Серия 1.189.1-8Серия 1.189.1-8Серия 1.189.1-8Серия 1.189.1-8Серия 1.189.1-8Серия 1.189.1-8Серия 1.189.1-8Серия 1.189.1-8Серия 1.189.1-8Серия 1.189.1-8Серия 1.189.1-8Серия 1.189.1-8Серия 1.189.1-8Серия 1.189.1-8Серия 1.189.1-8Серия 1.189.1-8Серия 1.189.1-8Серия 1.189.1-8Серия 1.189.1-8Серия 1.189.1-8Серия 1.189.1-8Серия 1.189.1-8Серия 1.189.1-8Серия 1.189.1-8Серия 1.189.1-8Серия 1.189.1-8Серия 1.189.1-8Серия 1.189.1-8Серия 1.189.1-8Серия 1.189.1-8Серия 1.189.1-8

© 2013 Ёшкин Кот :-) Карта сайта