Информационная система
«Ёшкин Кот»

Скачать базу одним архивом
Скачать обновления
История создания базы
Карта сайта

Скачать Серия 1.089.1-1 Выпуск 0-1. Шахты пассажирских лифтов по ГОСТ 5746-83. Материалы для проектирования

Дата актуализации: 10.08.2017

Серия 1.089.1-1

Выпуск 0-1. Шахты пассажирских лифтов по ГОСТ 5746-83. Материалы для проектирования

Обозначение: Серия 1.089.1-1
Обозначение англ: Series 1.089.1-1
Статус:не определен законодательством
Название рус.:Выпуск 0-1. Шахты пассажирских лифтов по ГОСТ 5746-83. Материалы для проектирования
Дата добавления в базу:01.09.2013
Дата актуализации:05.05.2017
Дата введения:01.01.1990
Оглавление:1.089.1-1.0-1-ПЗ Пояснительная записка
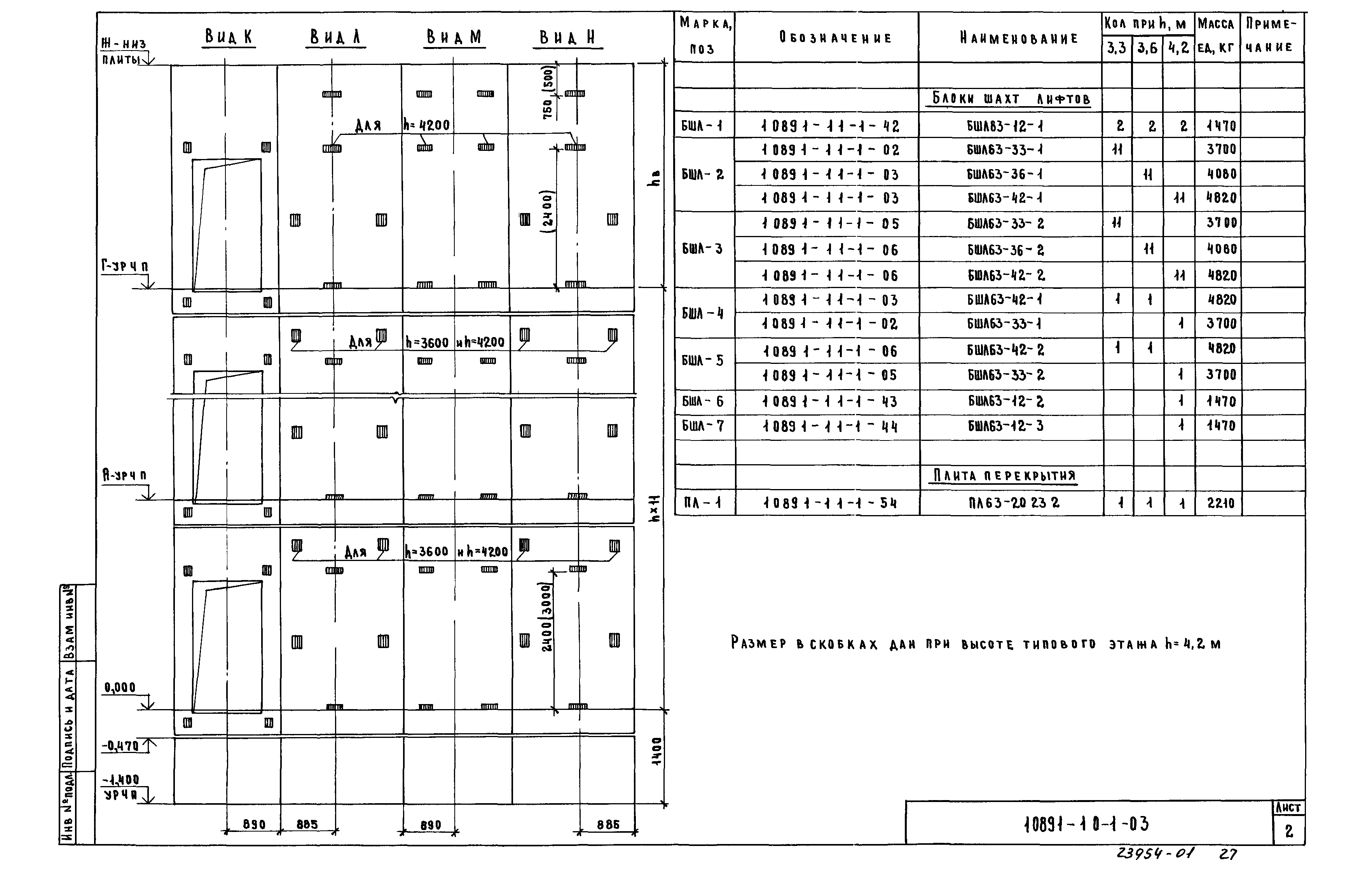
1.089.1-1.0-1-НИ Номенклатура изделий
1.089.1-1.0-1-01 Схема расположения элементов шахты пассажирского лифта Q=630кг, V=1,0м/с противовес сзади; hэт=3,0м
1.089.1-1.0-1-02 Схема расположения элементов шахты пассажирского лифта Q=630кг, V=1,6м/с противовес сзади; hэт=3,0м
1.089.1-1.0-1-03 Схема расположения элементов шахты пассажирского лифта Q=630кг, V=1,0м/с противовес сзади; hэт=3,3;3,6;4,2м
1.089.1-1.0-1-04 Схема расположения элементов шахты пассажирского лифта Q=630кг, V=1,6м/с противовес сзади; hэт=3,3;3,6;4,2м
1.089.1-1.0-1-05 Схема расположения элементов шахты пассажирского лифта Q=630кг, V=1,0м/с противовес сзади; hэт=4,8;5,4м
1.089.1-1.0-1-06 Схема расположения элементов шахты пассажирского лифта Q=630кг, V=1,6м/с противовес сзади; hэт=4,8;5,4м
1.089.1-1.0-1-07 Схема расположения элементов шахты пассажирского лифта Q=630кг, V=1,0м/с противовес сзади; hэт=6,0м
1.089.1-1.0-1-08 Схема расположения элементов шахты пассажирского лифта Q=630кг, V=1,6м/с противовес сзади; hэт=6,0м
1.089.1-1.0-1-09 Схема расположения элементов шахты пассажирского лифта Q=630кг, V=1,0м/с противовес сзади; hэт=6,6;7,2м
1.089.1-1.0-1-10 Схема расположения элементов шахты пассажирского лифта Q=630кг, V=1,6м/с противовес сзади; hэт=6,6;7,2м
1.089.1-1.0-1-11 Схема расположения элементов шахты пассажирского лифта Q=1000кг, V=1,0м/с противовес сзади; hэт=3,0м
1.089.1-1.0-1-12 Схема расположения элементов шахты пассажирского лифта Q=1000кг, V=1,6м/с противовес сзади; hэт=3,0м
1.089.1-1.0-1-13 Схема расположения элементов шахты пассажирского лифта Q=1000кг, V=1,0м/с противовес сзади; hэт=3,3;3,6;4,2м
1.089.1-1.0-1-14 Схема расположения элементов шахты пассажирского лифта Q=1000кг, V=1,6м/с противовес сзади; hэт=3,3;3,6;4,2м
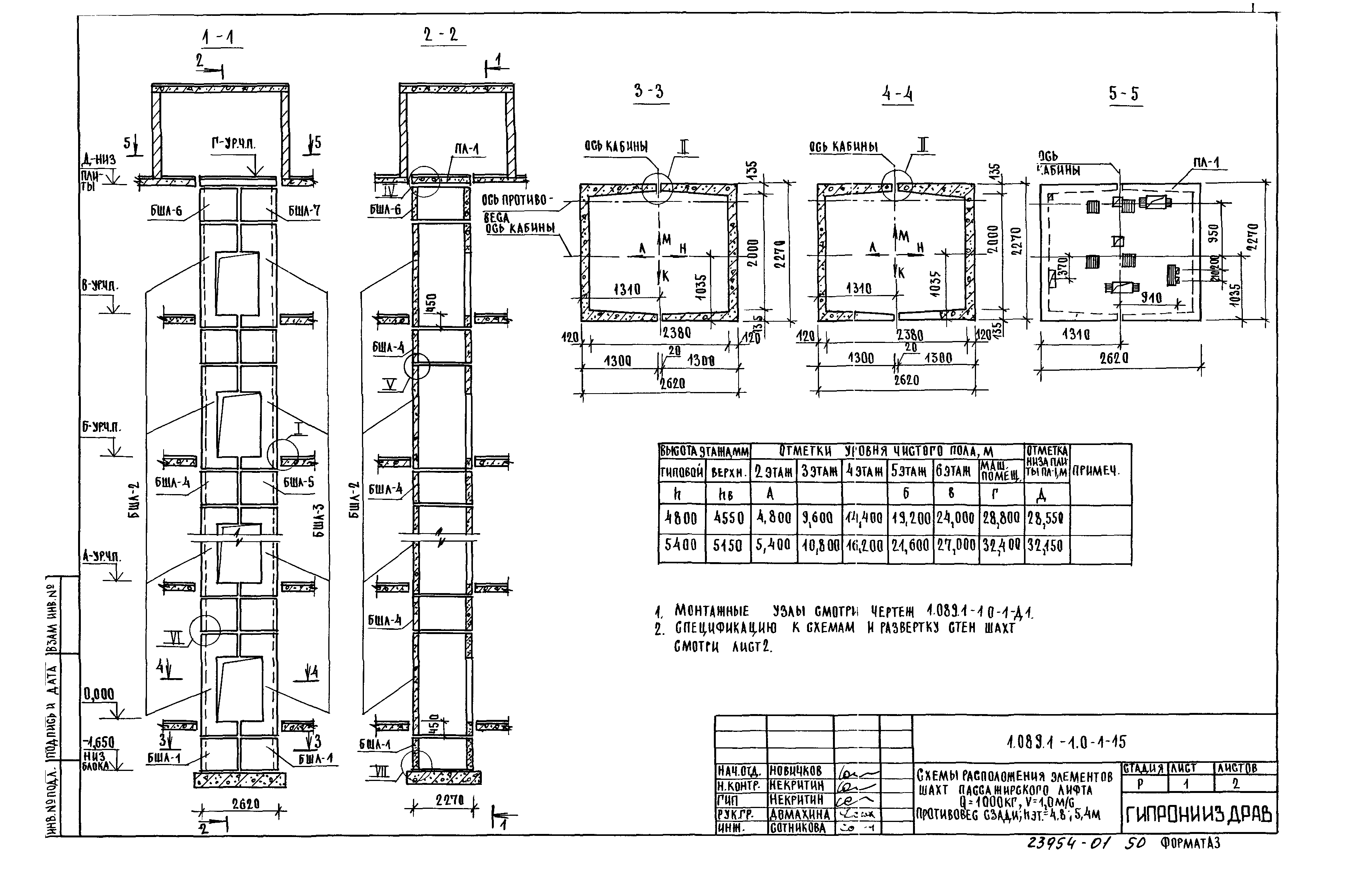
1.089.1-1.0-1-15 Схема расположения элементов шахты пассажирского лифта Q=1000кг, V=1,0м/с противовес сзади; hэт=4,8;5,4м
1.089.1-1.0-1-16 Схема расположения элементов шахты пассажирского лифта Q=1000кг, V=1,6м/с противовес сзади; hэт=4,8;5,4м
1.089.1-1.0-1-17 Схема расположения элементов шахты пассажирского лифта Q=1000кг, V=1,0м/с противовес сзади; hэт=6,0м
1.089.1-1.0-1-18 Схема расположения элементов шахты пассажирского лифта Q=1000кг, V=1,6м/с противовес сзади; hэт=6,0м
1.089.1-1.0-1-19 Схема расположения элементов шахты пассажирского лифта Q=1000кг, V=1,0м/с противовес сзади; hэт=6,6;7,2м
1.089.1-1.0-1-20 Схема расположения элементов шахты пассажирского лифта Q=1000кг, V=1,6м/с противовес сзади; hэт=6,6;7,2м
1.089.1-1.0-1-21 Схема расположения элементов шахты пассажирского лифта Q=1000кг, V=1,0м/с противовес справа; hэт=3,0м
1.089.1-1.0-1-22 Схема расположения элементов шахты пассажирского лифта Q=1000кг, V=1,6м/с противовес справа; hэт=3,0м
1.089.1-1.0-1-23 Схема расположения элементов шахты пассажирского лифта Q=1000кг, V=1,0м/с противовес справа; hэт=3,3;3,6;4,2м
1.089.1-1.0-1-24 Схема расположения элементов шахты пассажирского лифта Q=1000кг, V=1,6м/с противовес справа; hэт=3,3;3,6;4,2м
1.089.1-1.0-1-25 Схема расположения элементов шахты пассажирского лифта Q=1000кг, V=1,0м/с противовес справа; hэт=4,8;5,4м
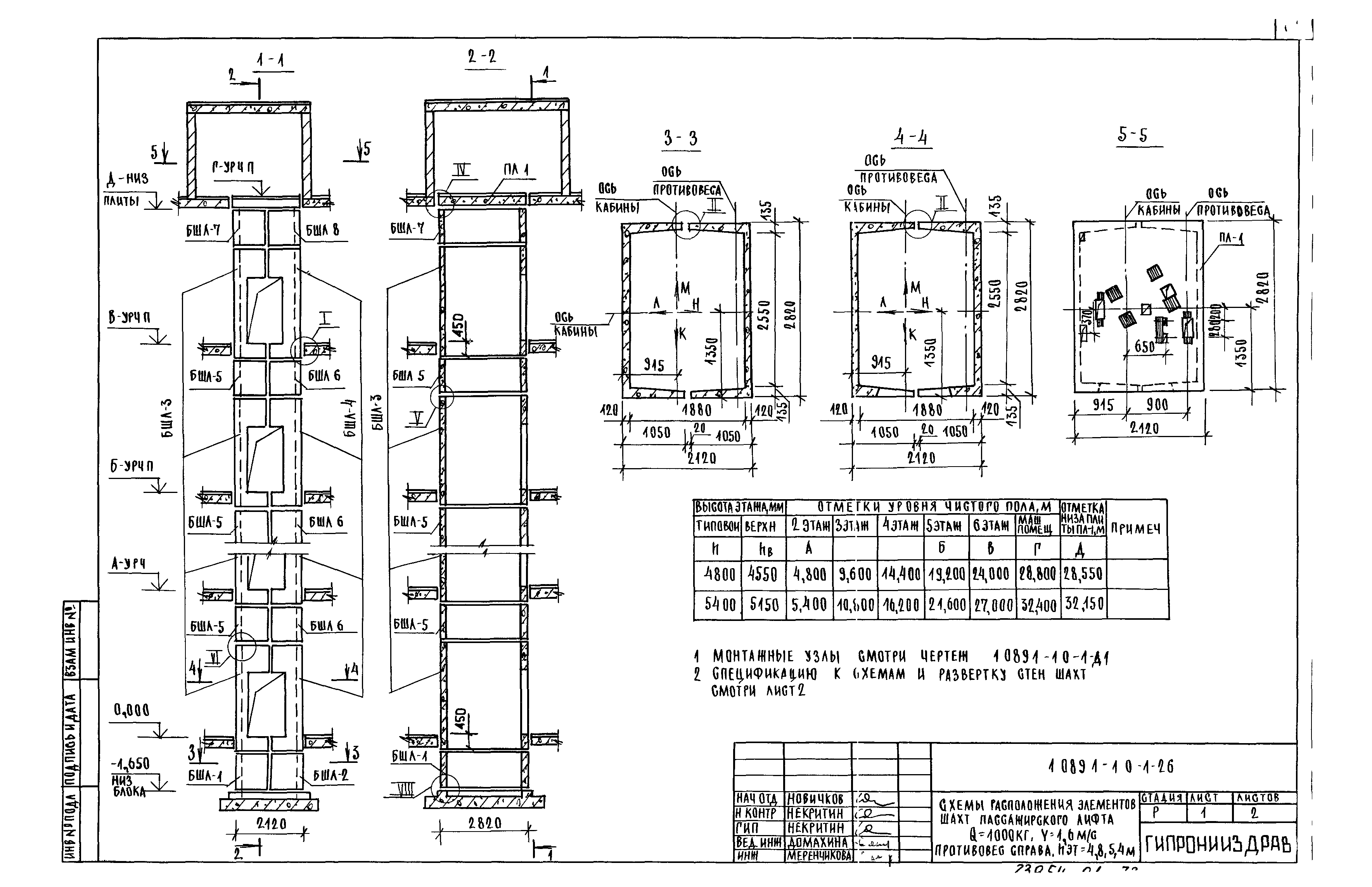
1.089.1-1.0-1-26 Схема расположения элементов шахты пассажирского лифта Q=1000кг, V=1,6м/с противовес справа; hэт=4,8;5,4м
1.089.1-1.0-1-27 Схема расположения элементов шахты пассажирского лифта Q=1000кг, V=1,0м/с противовес справа; hэт=6,0м
1.089.1-1.0-1-28 Схема расположения элементов шахты пассажирского лифта Q=1000кг, V=1,6м/с противовес справа; hэт=6,0м
1.089.1-1.0-1-29 Схема расположения элементов шахты пассажирского лифта Q=1000кг, V=1,0м/с противовес справа; hэт=6,6;7,2м
1.089.1-1.0-1-30 Схема расположения элементов шахты пассажирского лифта Q=1000кг, V=1,6м/с противовес справа; hэт=6,6;7,2м
1.089.1-1.0-1-31 Схема расположения элементов шахты пассажирского лифта Q=630кг, V=1,0м/с, противовес сбоку кабина непроходная; hэт=3,3;3,6;4,2м
1.089.1-1.0-1-32 Схема расположения элементов шахты пассажирского лифта Q=630кг, V=1,0м/с, противовес сбоку кабина проходная; hэт=3,3;3,6;4,2м
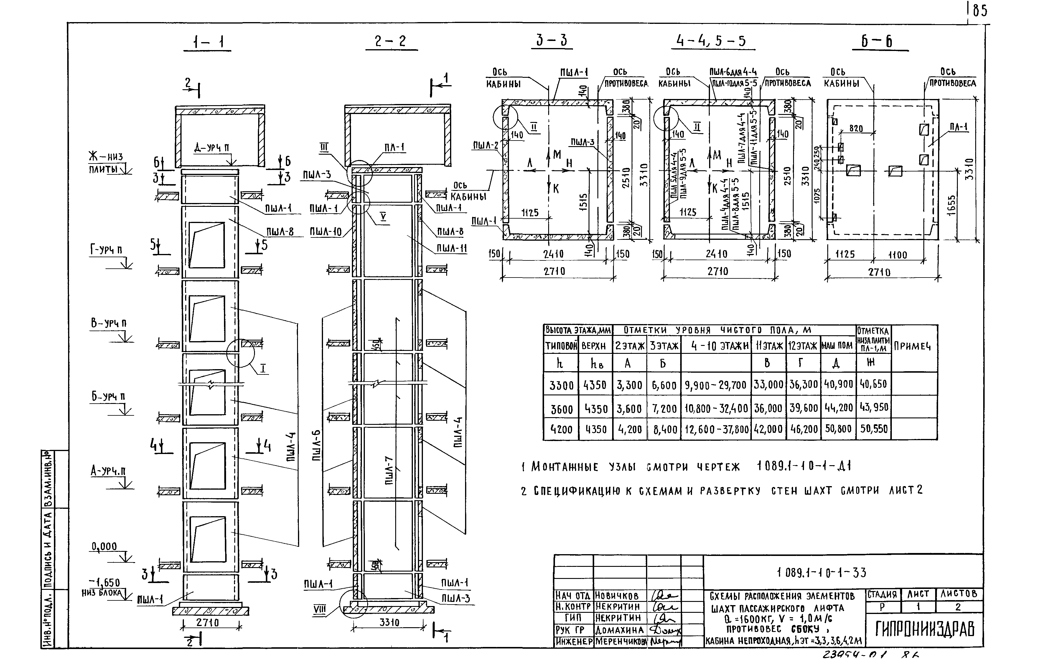
1.089.1-1.0-1-33 Схема расположения элементов шахты пассажирского лифта Q=1600кг, V=1,0м/с, противовес сбоку кабина непроходная; hэт=3,3;3,6;4,2м
1.089.1-1.0-1-34 Схема расположения элементов шахты пассажирского лифта Q=1600кг, V=1,0м/с, противовес сбоку кабина проходная; hэт=3,3;3,6;4,2м
1.089.1-1.0-1-35 Участок монолитный Ум1,Ум2
1.089.1-1.0-1-36 Участок монолитный Ум3,Ум4
1.089.1-1.0-1-37 Сетка С1
1.089.1-1.0-1-РС Ведомость расхода стали на монолитный участок Ум1…Ум4
1.089.1-1.0-1-Д1 Узел 1…9
1.089.1-1.0-1-Д2 Монтажные узлы при групповой установке шахт (пример)
1.089.1-1.0-1-38 Лестница ЛМ1
Разработан: ГипроНИИздрав Минздрава СССР
Утверждён:21.09.1989 Госстрой СССР (Государственный комитет Совета Министров СССР по делам строительства) (USSR Gosstroy 4/5-1261)
Издан: ЦИТП Госстроя СССР (CITP, Gosstroy (USSR) 1989 г. )
Расположен в:Техническая документация Строительство Справочные документы Типовые строительные конструкции, изделия и узлы Общероссийский строительный каталог Строительные конструкции, изделия и узлы зданий и сооружений для всех видов строительства Конструкции, изделия и узлы зданий Несущие конструкции двухэтажных и многоэтажных зданий Шахты лифтов
Серия 1.089.1-1Серия 1.089.1-1Серия 1.089.1-1Серия 1.089.1-1Серия 1.089.1-1Серия 1.089.1-1Серия 1.089.1-1Серия 1.089.1-1Серия 1.089.1-1Серия 1.089.1-1Серия 1.089.1-1Серия 1.089.1-1Серия 1.089.1-1Серия 1.089.1-1Серия 1.089.1-1Серия 1.089.1-1Серия 1.089.1-1Серия 1.089.1-1Серия 1.089.1-1Серия 1.089.1-1Серия 1.089.1-1Серия 1.089.1-1Серия 1.089.1-1Серия 1.089.1-1Серия 1.089.1-1Серия 1.089.1-1Серия 1.089.1-1Серия 1.089.1-1Серия 1.089.1-1Серия 1.089.1-1Серия 1.089.1-1Серия 1.089.1-1Серия 1.089.1-1Серия 1.089.1-1Серия 1.089.1-1Серия 1.089.1-1Серия 1.089.1-1Серия 1.089.1-1Серия 1.089.1-1Серия 1.089.1-1Серия 1.089.1-1Серия 1.089.1-1Серия 1.089.1-1Серия 1.089.1-1Серия 1.089.1-1Серия 1.089.1-1Серия 1.089.1-1Серия 1.089.1-1Серия 1.089.1-1Серия 1.089.1-1Серия 1.089.1-1Серия 1.089.1-1Серия 1.089.1-1Серия 1.089.1-1Серия 1.089.1-1Серия 1.089.1-1Серия 1.089.1-1Серия 1.089.1-1Серия 1.089.1-1Серия 1.089.1-1Серия 1.089.1-1Серия 1.089.1-1Серия 1.089.1-1Серия 1.089.1-1Серия 1.089.1-1Серия 1.089.1-1Серия 1.089.1-1Серия 1.089.1-1Серия 1.089.1-1Серия 1.089.1-1Серия 1.089.1-1Серия 1.089.1-1Серия 1.089.1-1Серия 1.089.1-1Серия 1.089.1-1Серия 1.089.1-1Серия 1.089.1-1Серия 1.089.1-1Серия 1.089.1-1Серия 1.089.1-1Серия 1.089.1-1Серия 1.089.1-1Серия 1.089.1-1Серия 1.089.1-1Серия 1.089.1-1Серия 1.089.1-1Серия 1.089.1-1Серия 1.089.1-1Серия 1.089.1-1Серия 1.089.1-1Серия 1.089.1-1Серия 1.089.1-1Серия 1.089.1-1Серия 1.089.1-1Серия 1.089.1-1

© 2013 Ёшкин Кот :-) Карта сайта