Информационная система
«Ёшкин Кот»

Скачать базу одним архивом
Скачать обновления
История создания базы
Карта сайта

Скачать Серия 1.152.1-8 Выпуск 5. Площадки плоские длиной 220 и 280 см к маршам шириной 105 и 120 см для крупнопанельных зданий. Рабочие чертежи

Дата актуализации: 10.08.2017

Серия 1.152.1-8

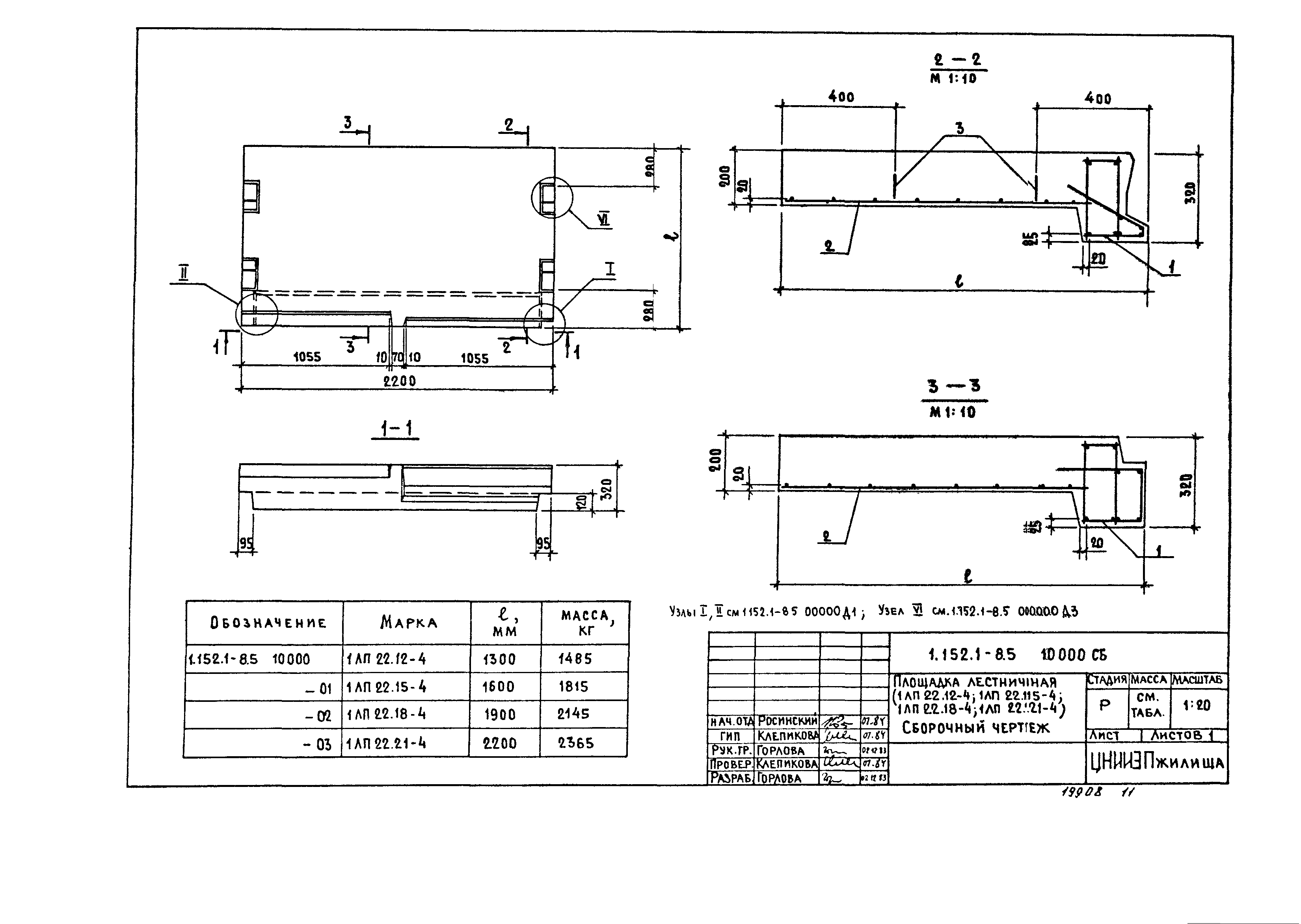
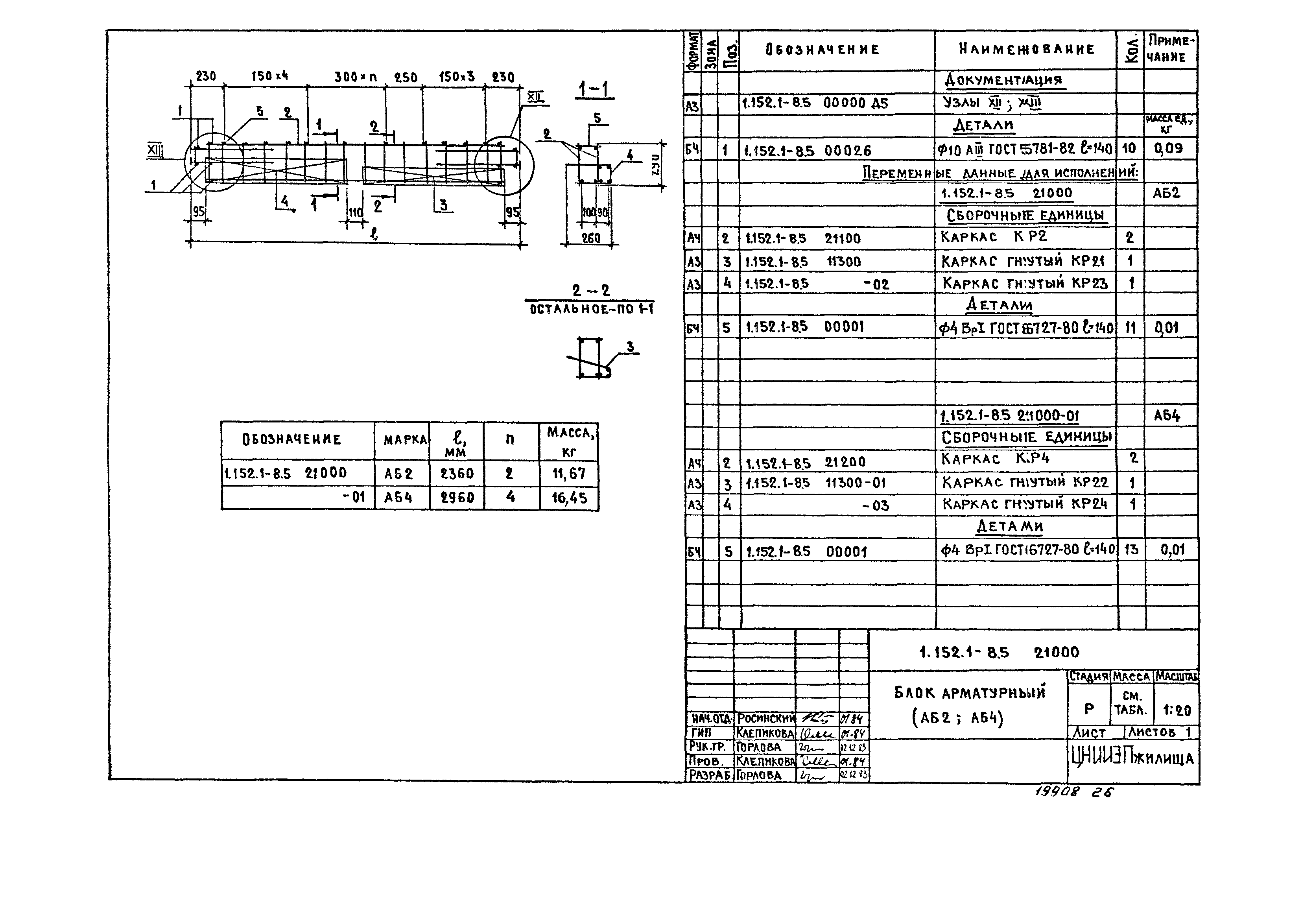
Выпуск 5. Площадки плоские длиной 220 и 280 см к маршам шириной 105 и 120 см для крупнопанельных зданий. Рабочие чертежи

Обозначение: Серия 1.152.1-8
Обозначение англ: Series 1.152.1-8
Статус:действует
Название рус.:Выпуск 5. Площадки плоские длиной 220 и 280 см к маршам шириной 105 и 120 см для крупнопанельных зданий. Рабочие чертежи
Дата добавления в базу:01.09.2013
Дата актуализации:05.05.2017
Дата введения:30.07.1984
Разработан: ЦНИИЭП жилища
Утверждён:16.07.1984 Госгражданстрой (Gosgrazhdanstroy 197)
Издан: ЦИТП Госстроя СССР (CITP, Gosstroy (USSR) 1988 г. )
Расположен в:Техническая документация Строительство Справочные документы Типовые строительные конструкции, изделия и узлы Общероссийский строительный каталог Строительные конструкции, изделия и узлы зданий и сооружений для всех видов строительства Конструкции, изделия и узлы зданий Несущие конструкции двухэтажных и многоэтажных зданий Лестницы
Заменяет собой:
Серия 1.152.1-8Серия 1.152.1-8Серия 1.152.1-8Серия 1.152.1-8Серия 1.152.1-8Серия 1.152.1-8Серия 1.152.1-8Серия 1.152.1-8Серия 1.152.1-8Серия 1.152.1-8Серия 1.152.1-8Серия 1.152.1-8Серия 1.152.1-8Серия 1.152.1-8Серия 1.152.1-8Серия 1.152.1-8Серия 1.152.1-8Серия 1.152.1-8Серия 1.152.1-8Серия 1.152.1-8Серия 1.152.1-8Серия 1.152.1-8Серия 1.152.1-8Серия 1.152.1-8Серия 1.152.1-8Серия 1.152.1-8Серия 1.152.1-8Серия 1.152.1-8Серия 1.152.1-8Серия 1.152.1-8Серия 1.152.1-8Серия 1.152.1-8Серия 1.152.1-8Серия 1.152.1-8Серия 1.152.1-8Серия 1.152.1-8Серия 1.152.1-8Серия 1.152.1-8Серия 1.152.1-8Серия 1.152.1-8

© 2013 Ёшкин Кот :-) Карта сайта