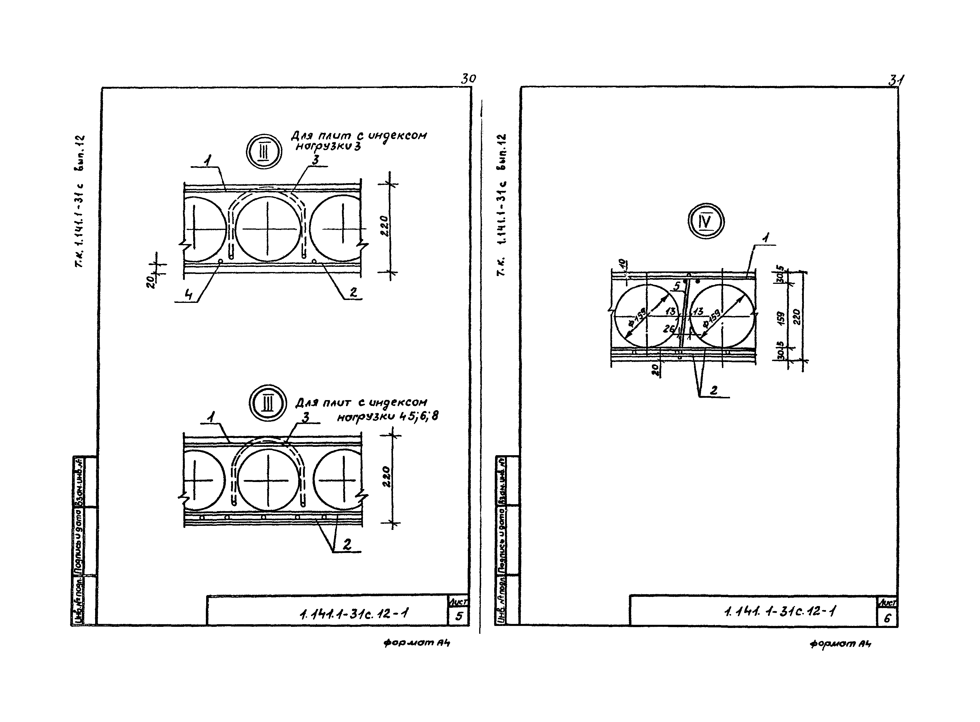
Скачать Серия 1.141.1-31с Выпуск 12. Плиты перекрытий с круглыми пустотами, армированные сетками из стали класса Вр-I, длиной 4060 мм, шириной 990, 1190, 1490 и 1790 мм для строительства в районах сейсмичностью 8 баллов. Рабочие чертежиДата актуализации: 10.08.2017 Серия 1.141.1-31с
Выпуск 12. Плиты перекрытий с круглыми пустотами, армированные сетками из стали класса Вр-I, длиной 4060 мм, шириной 990, 1190, 1490 и 1790 мм для строительства в районах сейсмичностью 8 баллов. Рабочие чертежиОбозначение: | Серия 1.141.1-31с | Обозначение англ: | Series 1.141.1-31с | Статус: | не определен законодательством | Название рус.: | Выпуск 12. Плиты перекрытий с круглыми пустотами, армированные сетками из стали класса Вр-I, длиной 4060 мм, шириной 990, 1190, 1490 и 1790 мм для строительства в районах сейсмичностью 8 баллов. Рабочие чертежи | Дата добавления в базу: | 01.09.2013 | Дата актуализации: | 05.05.2017 | Дата введения: | 01.02.1989 | Разработан: | ТбилЗНИИЭП
| Утверждён: | 29.12.1988 Госкомархитектура (357)
| Расположен в: |
|
                              
|