Информационная система
«Ёшкин Кот»

Скачать базу одним архивом
Скачать обновления
История создания базы
Карта сайта

Скачать Типовой проект 416-5-55.94 Альбом 1. Пояснительная записка. Архитектурно-строительные решения

Дата актуализации: 10.08.2017

Типовой проект 416-5-55.94

Альбом 1. Пояснительная записка. Архитектурно-строительные решения

Обозначение: Типовой проект 416-5-55.94
Обозначение англ: 416-5-55.94
Статус:не определен законодательством
Название рус.:Альбом 1. Пояснительная записка. Архитектурно-строительные решения
Дата добавления в базу:01.09.2013
Дата актуализации:05.05.2017
Дата введения:07.02.1994
Оглавление:Пояснительная записка
Общие данные (начало)
Общие данные (продолжение)
Общие данные (окончание)
План на отм. 0.000
Разрезы 1-1;2-2
Фасады
Фрагмент 1
Детали 1-7
Схемы оконных заполнений, деталь утепления
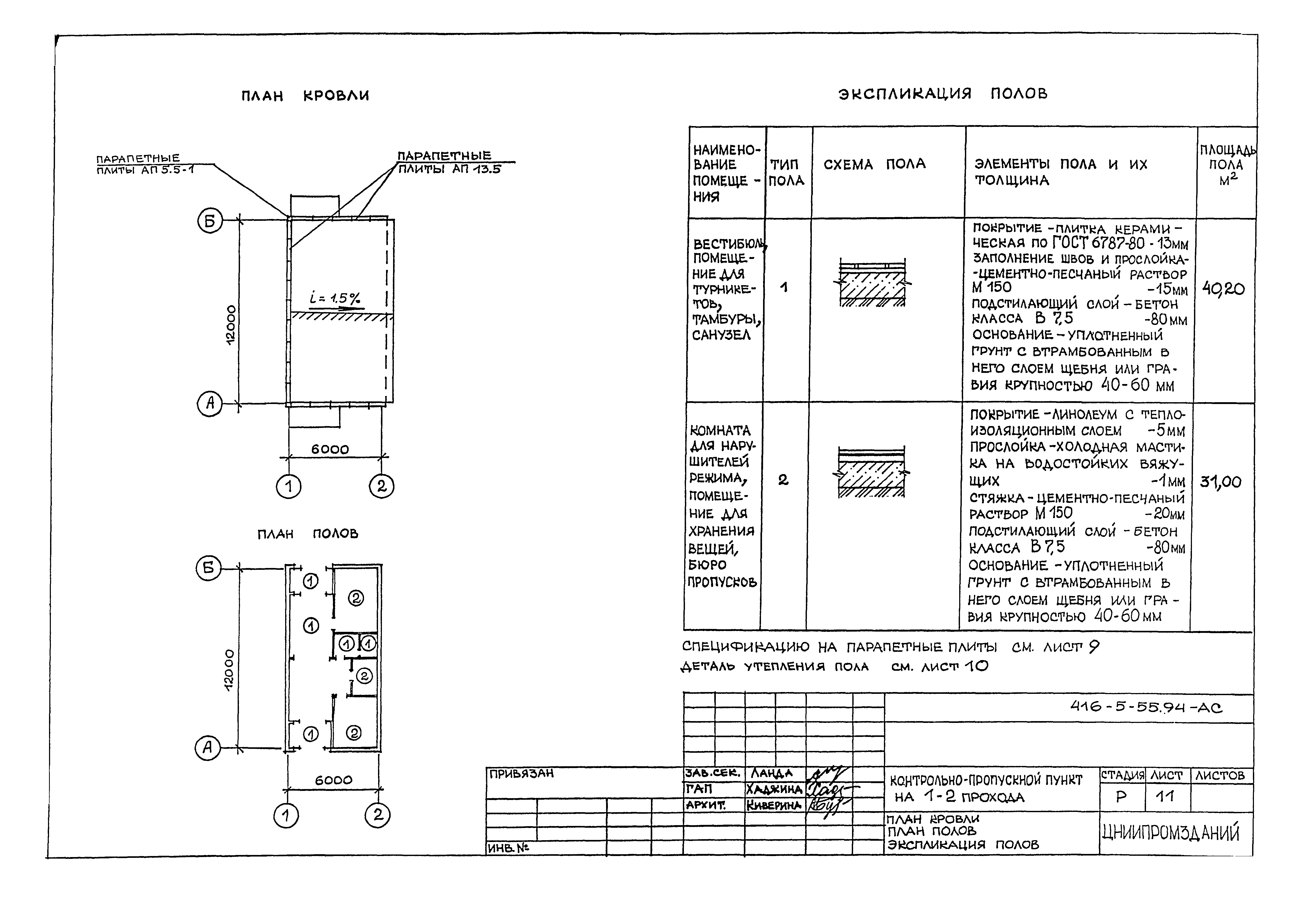
План кровли, план полов, эксплуатация полов
Схема элементов заполнения витражей
Схема расположения фундаментов
Схемы расположения фундаментных плит и фундаментных блоков
Схема раскладки блоков по осям А,Б,1,2
Схема расположения плит покрытия
Схема расположения каналов и приямка
Приямок прм.1 стальной щит сщ1
Разработан: ЦНИИпромзданий
НИИ новых технологий
Утверждён:04.02.1994 Главпроект Госстроя России (9-3-1/16)
Расположен в:Техническая документация Строительство Справочные документы Типовые строительные конструкции, изделия и узлы Общероссийский строительный каталог Промышленные предприятия, здания и сооружения Предприятия, здания и сооружения промышленности и электроэнергетики Ремонтные предприятия. Административно-бытовые, производственные и вспомогательные здания и сооружения промышленных предприятий Пункты проходные и помещения военизированной охраны
Типовой проект 416-5-55.94Типовой проект 416-5-55.94Типовой проект 416-5-55.94Типовой проект 416-5-55.94Типовой проект 416-5-55.94Типовой проект 416-5-55.94Типовой проект 416-5-55.94Типовой проект 416-5-55.94Типовой проект 416-5-55.94Типовой проект 416-5-55.94Типовой проект 416-5-55.94Типовой проект 416-5-55.94Типовой проект 416-5-55.94Типовой проект 416-5-55.94Типовой проект 416-5-55.94Типовой проект 416-5-55.94Типовой проект 416-5-55.94Типовой проект 416-5-55.94Типовой проект 416-5-55.94Типовой проект 416-5-55.94Типовой проект 416-5-55.94Типовой проект 416-5-55.94Типовой проект 416-5-55.94Типовой проект 416-5-55.94Типовой проект 416-5-55.94

© 2013 Ёшкин Кот :-) Карта сайта