Информационная система
«Ёшкин Кот»

Скачать базу одним архивом
Скачать обновления
История создания базы
Карта сайта

Скачать Серия КЭ-01-57 Выпуск IV. Стальные неразрезные подкрановые балки (из двух марок стали) пролетами 6 и 12 м под мостовые электрические краны грузоподъемностью 5-75 т. Чертежи КМ

Дата актуализации: 10.08.2017

Серия КЭ-01-57

Выпуск IV. Стальные неразрезные подкрановые балки (из двух марок стали) пролетами 6 и 12 м под мостовые электрические краны грузоподъемностью 5-75 т. Чертежи КМ

Обозначение: Серия КЭ-01-57
Обозначение англ: Series КЭ-01-57
Статус:заменен
Название рус.:Выпуск IV. Стальные неразрезные подкрановые балки (из двух марок стали) пролетами 6 и 12 м под мостовые электрические краны грузоподъемностью 5-75 т. Чертежи КМ
Дата добавления в базу:01.09.2013
Дата актуализации:05.05.2017
Дата введения:01.03.1975
Оглавление:Пояснительная записка
Крановые нагрузки
Ключ для выбора сечений подкрановых балок пролетом 6м
Ключ для выбора сечений подкрановых балок пролетом 12м
Сортамент сечений подкрановых балок - двутавры с поясами одинаковой ширины
Сортамент сечений подкрановых балок - двутавры с развитой шириной верхнего пояса
Общий вид подкрановой балки пролетом 6м
Общий вид подкрановой балки пролетом 12м
Опорные части подкрановых балок. Узлы 1;2
Узлы опирания подкрановых балок на стальные колонны
Узлы опирания подкрановых балок на железобетонные колонны
Узлы опирания подкрановых балок на железобетонные колонны с подставкой
Крепление верхнего пояса подкрановой балки пролетами 6м. К стальным колоннам при отсутствии тормозного устройства
Крепление верхнего пояса подкрановой балки пролетами 6м. К железобетонным колоннам при отсутствии тормозного устройства
Схемы тормозных ферм подкрановых балок пролетами 12м по крайним рядам
Схемы тормозных ферм подкрановых балок пролетами 12м по средним рядам
Узлы 3,4
Узлы 3(в степени ж), 4(в степени ж), 5(в степени ж)
Узлы 5,6
Узлы 7,8
Узлы 7(в степени ж), 8(в степени ж)
Узлы 9,10
Узлы 11,12
Узлы 13,14
Узлы 9(в степени ж), 12(в степени ж), 14(в степени ж)
Расположение отверстий в верхних поясах балок для крепления рельса на планках и отверстий в ж.д. рельсах Р38 и Р43 для крепления на крюках
Детали крепления кранового рельса к подкрановой балке
Типы заводских стыков подкрановых балок
Типы монтажных стыков подкрановых балок
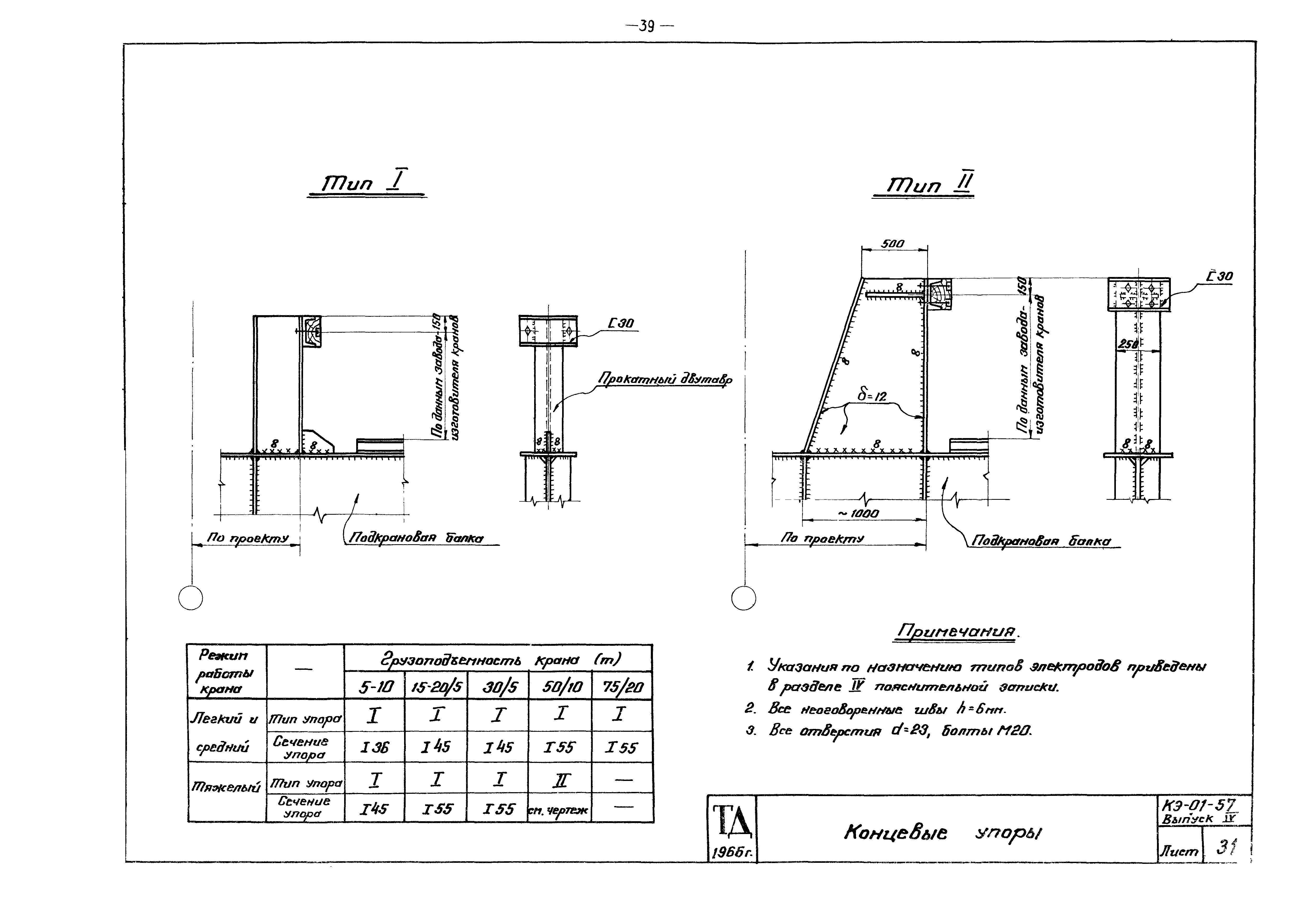
Концевые упоры
Узлы крепления вертикальных связей к подкрановым балкам
Расчетные значения вертикальных нагрузок на колонны от кранов (в тоннах)
Расчетные значения отрывающих вертикальных нагрузок на колонны от кранов (в тоннах)
Расчетные усилия от горизонтального воздействия кранов для крепления балок к колоннам. Сечения опорных ребер, толщина распределительных планок и несущая способность болтов
Весовые показателя подкрановых балок пролетами 6 м
Весовые показателя подкрановых балок пролетами 12 м
Разработан: Проектстальконструкция Госстроя СССР
Утверждён:15.09.1966 Госстрой СССР (Государственный комитет Совета Министров СССР по делам строительства) (USSR Gosstroy 165)
Издан: ЦИТП Госстроя СССР (CITP, Gosstroy (USSR) 1966 г. )
Расположен в:Техническая документация Строительство Справочные документы Типовые строительные конструкции, изделия и узлы Общероссийский строительный каталог Строительные конструкции, изделия и узлы зданий и сооружений для всех видов строительства Конструкции, изделия и узлы зданий Несущие конструкции одноэтажных зданий Балки подкрановых путей подвесного транспорта
Чем заменён:
Серия КЭ-01-57Серия КЭ-01-57Серия КЭ-01-57Серия КЭ-01-57Серия КЭ-01-57Серия КЭ-01-57Серия КЭ-01-57Серия КЭ-01-57Серия КЭ-01-57Серия КЭ-01-57Серия КЭ-01-57Серия КЭ-01-57Серия КЭ-01-57Серия КЭ-01-57Серия КЭ-01-57Серия КЭ-01-57Серия КЭ-01-57Серия КЭ-01-57Серия КЭ-01-57Серия КЭ-01-57Серия КЭ-01-57Серия КЭ-01-57Серия КЭ-01-57Серия КЭ-01-57Серия КЭ-01-57Серия КЭ-01-57Серия КЭ-01-57Серия КЭ-01-57Серия КЭ-01-57Серия КЭ-01-57Серия КЭ-01-57Серия КЭ-01-57Серия КЭ-01-57Серия КЭ-01-57Серия КЭ-01-57Серия КЭ-01-57Серия КЭ-01-57Серия КЭ-01-57Серия КЭ-01-57Серия КЭ-01-57Серия КЭ-01-57Серия КЭ-01-57Серия КЭ-01-57Серия КЭ-01-57Серия КЭ-01-57Серия КЭ-01-57Серия КЭ-01-57

© 2013 Ёшкин Кот :-) Карта сайта