Информационная система
«Ёшкин Кот»

Скачать базу одним архивом
Скачать обновления
История создания базы
Карта сайта

Скачать Серия 1.464-1 Выпуск II. Зенитный фонарь с применением панелей (1600х6200 мм) из органического стекла. Рабочие чертежи

Дата актуализации: 10.08.2017

Серия 1.464-1

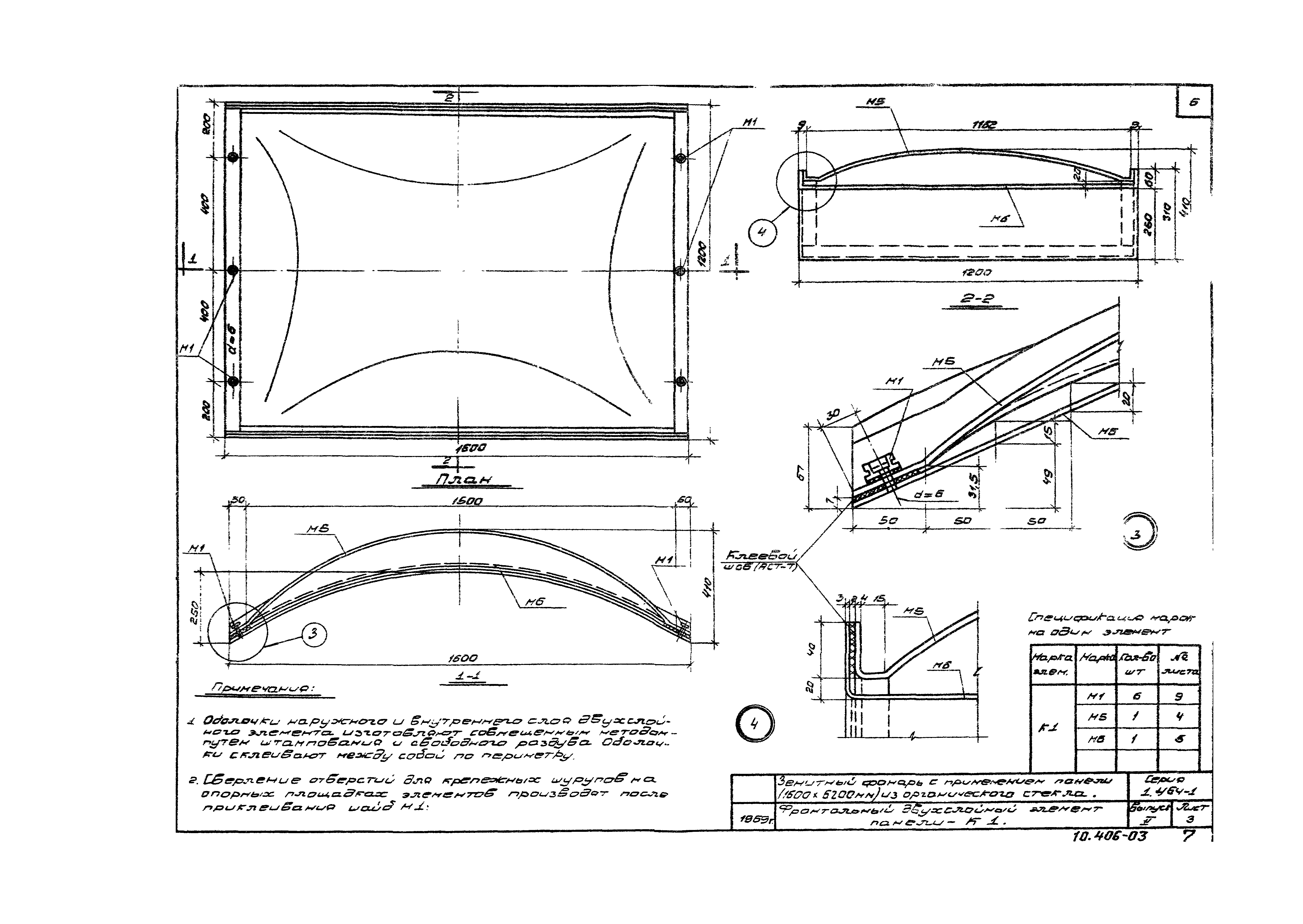
Выпуск II. Зенитный фонарь с применением панелей (1600х6200 мм) из органического стекла. Рабочие чертежи

Обозначение: Серия 1.464-1
Обозначение англ: Series 1.464-1
Статус:не действует
Название рус.:Выпуск II. Зенитный фонарь с применением панелей (1600х6200 мм) из органического стекла. Рабочие чертежи
Дата добавления в базу:01.09.2013
Дата актуализации:05.05.2017
Дата окончания срока действия:01.01.1987
Оглавление:Указания по производству работ
Зенитный фонарь Ф-3. План. Разрезы
Узлы зенитного фонаря
Фронтальный двухслойный элемент панели - К1
Наружная оболочка фронтального элемента - М5
Внутренняя оболочка фронтального элемента - М6
Торцовый двухслойный элемент панели - К2
Наружная оболочка торцового элемента - М7
Внутренняя оболочка торцового элемента - М8
Накладка М3, шайба М1, колпачок М2
Стальной стакан С1
Опорная рама Д1. Фартук М4
Спецификация элементов зенитного фонаря
Разработан: ЦНИИпромзданий
Утверждён:24.10.1969 Госстрой СССР (Государственный комитет Совета Министров СССР по делам строительства) (USSR Gosstroy )
Издан: ЦИТП Госстроя СССР (CITP, Gosstroy (USSR) 1976 г. )
Расположен в:Техническая документация Строительство Справочные документы Типовые строительные конструкции, изделия и узлы Общероссийский строительный каталог Строительные конструкции, изделия и узлы зданий и сооружений для всех видов строительства Конструкции, изделия и узлы зданий Несущие конструкции одноэтажных зданий Фонари Зенитные
Чем заменён:
Серия 1.464-1Серия 1.464-1Серия 1.464-1Серия 1.464-1Серия 1.464-1Серия 1.464-1Серия 1.464-1Серия 1.464-1Серия 1.464-1Серия 1.464-1Серия 1.464-1Серия 1.464-1Серия 1.464-1Серия 1.464-1Серия 1.464-1Серия 1.464-1Серия 1.464-1

© 2013 Ёшкин Кот :-) Карта сайта