| ||||||||||||||||||||||||||
Скачать Серия 1.041.1-5 Выпуск 6.1. Плиты длиной 3580 мм и шириной 990 мм с арматурой из стали классов А-III и Вр-I, из тяжелого бетона. Рабочие чертежиДата актуализации: 10.08.2017
|
| Обозначение: | Серия 1.041.1-5 |
| Обозначение англ: | Series 1.041.1-5 |
| Статус: | не определен законодательством |
| Название рус.: | Выпуск 6.1. Плиты длиной 3580 мм и шириной 990 мм с арматурой из стали классов А-III и Вр-I, из тяжелого бетона. Рабочие чертежи |
| Дата добавления в базу: | 01.09.2013 |
| Дата актуализации: | 05.05.2017 |
| Дата введения: | 01.01.1995 |
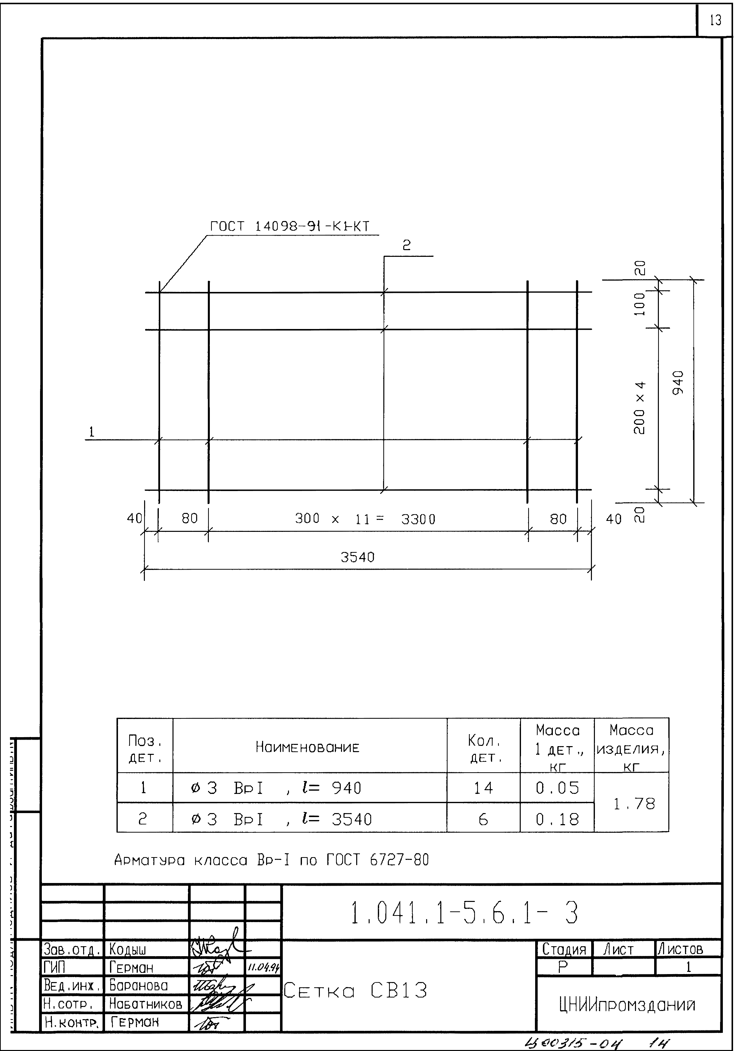
| Оглавление: | 1.041.1-5.6.1-ПЗ Пояснительная записка 1.041.1-5.6.1-ФЧ Плита 1ПК 36.10. Опалубочный чертеж 1.041.1-5.6.1-1 Плита 1ПК 36.10. Армирование 1.041.1-5.6.1-2 Каркас КР4 1.041.1-5.6.1-3 Сетка СВ13 1.041.1-5.6.1-4 Сетка СН31 1.041.1-5.6.1-5 Сетка СН36 1.041.1-5.6.1-6 Сетка СН40 1.041.1-5.6.1-7 Сетка СН43 1.041.1-5.6.1-8 Сетка СН47 1.041.1-5.6.1-9 Сетка СН49 1.041.1-5.6.1-10 Петля ПС1 1.041.1-5.6.1-РС Ведомость расхода стали, кг |
| Разработан: | ЦНИИпромзданий МГСУ Минвуза РФ НИИЖБ |
| Утверждён: | 11.11.1994 Главпроект Минстроя России (9-3-1/163) |
| Расположен в: |





















