| ||||||||||||||||||||||||||||||
Скачать Серия 1.041.1-5 Выпуск 12.2-1. Плиты длиной 5650 и шириной 1190 мм с напрягаемой арматурой из стали классов А-IIIв, А-IV и Ат-V, связевые, из тяжелого бетона, метод натяжения - электротермический. Рабочие чертежиДата актуализации: 10.08.2017
|
| Обозначение: | Серия 1.041.1-5 |
| Обозначение англ: | Series 1.041.1-5 |
| Статус: | не определен законодательством |
| Название рус.: | Выпуск 12.2-1. Плиты длиной 5650 и шириной 1190 мм с напрягаемой арматурой из стали классов А-IIIв, А-IV и Ат-V, связевые, из тяжелого бетона, метод натяжения - электротермический. Рабочие чертежи |
| Дата добавления в базу: | 01.09.2013 |
| Дата актуализации: | 05.05.2017 |
| Дата введения: | 01.03.1994 |
| Область применения: | Выпуск содержит рабочие чертежи связевых плит длиной 5650 мм и шириной 1190 мм, отличающихся по потребительским свойствам - несущей способностью, по изготовлению - видом и классом предварительно напрягаемой арматуры, т.е. вариантом используемых основных материалов, который выбирается заводом-изготовителем. |
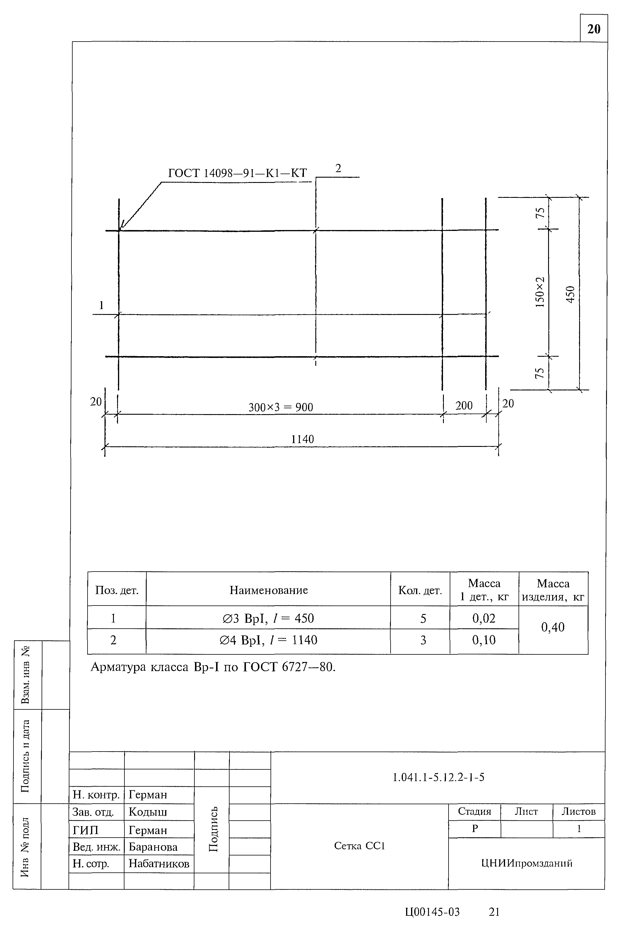
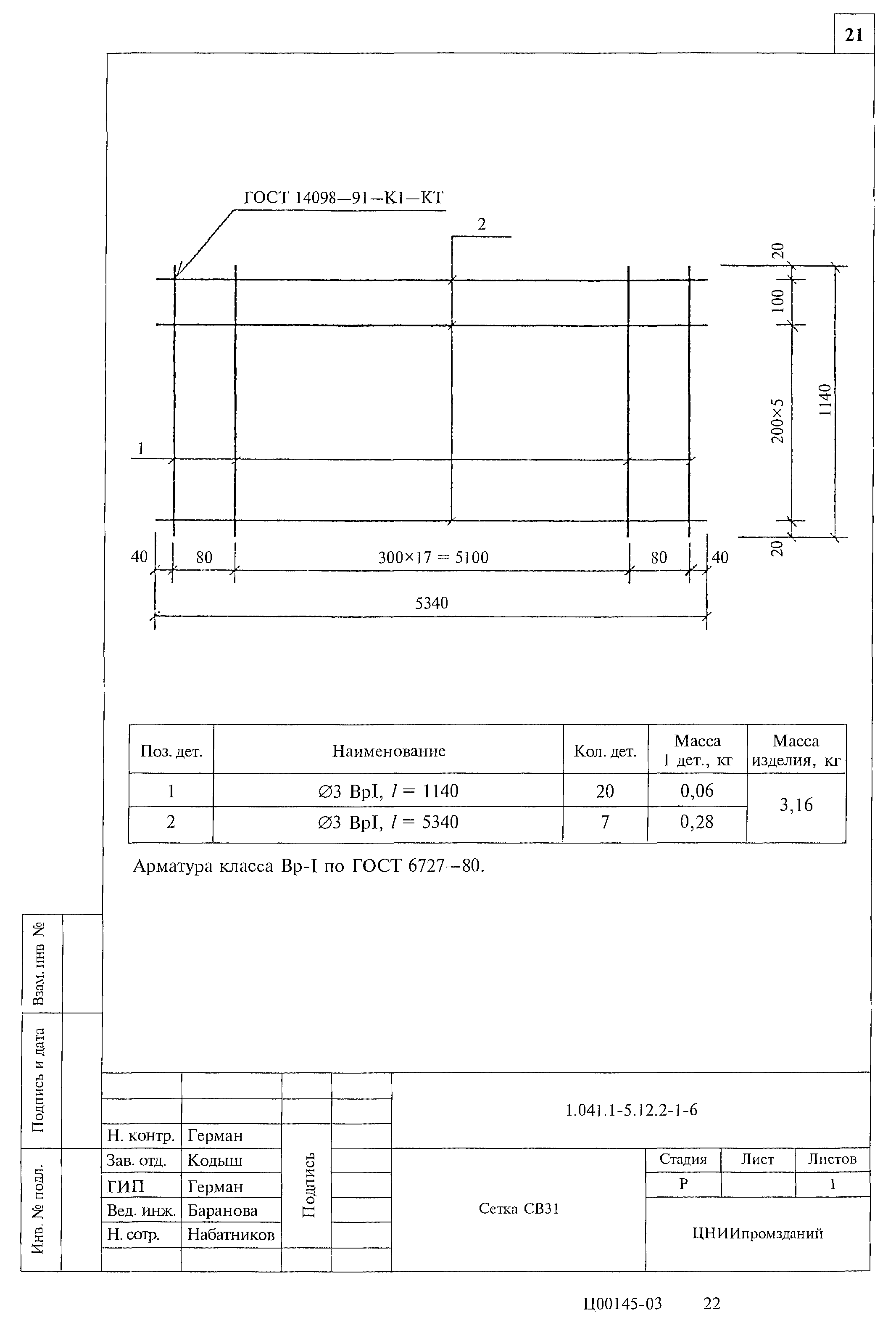
| Оглавление: | Пояснительная записка Плита 1ПК 56.12. Опалубочный чертеж Плита 1ПК 56.12. Армирование Каркас КР14 Каркас КС8 Сетка СР4-1 Сетка СС1 Сетка СВ31 Петля ПС2 Ведомость расхода стали, кг |
| Разработан: | ЦНИИпромзданий МГСУ Минвуза РФ НИИЖБ ЦНИИпроект Госстроя России |
| Утверждён: | 15.12.1993 Главпроект Госстроя России (9-3-2/284) |
| Расположен в: | |
| Нормативные ссылки: |
|
























