| ||||||||||||||||||||||||||||||
Скачать Серия 1.041.1-5 Выпуск 2.3. Плиты длиной 2650 и шириной 1490 мм, рядовые, с арматурой из стали классов А-III и Вр-I, из тяжелого бетона. Рабочие чертежиДата актуализации: 10.08.2017
|
| Обозначение: | Серия 1.041.1-5 |
| Обозначение англ: | Series 1.041.1-5 |
| Статус: | не определен законодательством |
| Название рус.: | Выпуск 2.3. Плиты длиной 2650 и шириной 1490 мм, рядовые, с арматурой из стали классов А-III и Вр-I, из тяжелого бетона. Рабочие чертежи |
| Дата добавления в базу: | 01.09.2013 |
| Дата актуализации: | 05.05.2017 |
| Дата введения: | 01.03.1994 |
| Область применения: | Выпуск содержит рабочие чертежи рядовых плит длиной 2650 мм и шириной 1490 мм, отличающихся по потребительским свойствам - несущей способностью, по изготовлению - видом и классом арматуры, т.е. вариантом используемых основных материалов, который выбирается заводом-изготовителем. |
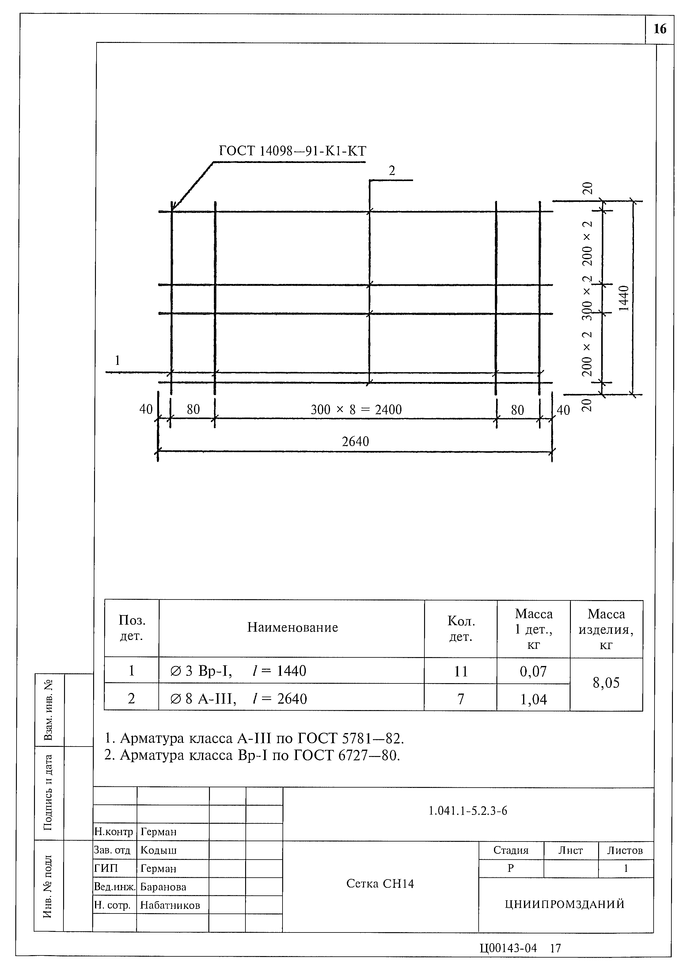
| Оглавление: | Пояснительная записка Плита 1ПК 26.15. Опалубочный чертеж Плита 1ПК 26.15. Армирование Каркас КР2 Сетка СВ66 Сетка СН12 Сетка СН13 Сетка СН14 Сетка СН15 Сетка СН16 Сетка СН17 Сетка СН18 Петля ПС1 Ведомость расхода стали, кг |
| Разработан: | ЦНИИпромзданий МГСУ Минвуза РФ НИИЖБ ЦНИИпроект Госстроя России |
| Утверждён: | 15.12.1993 Главпроект Госстроя России (9-3-2/284) |
| Расположен в: | |
| Нормативные ссылки: |






















