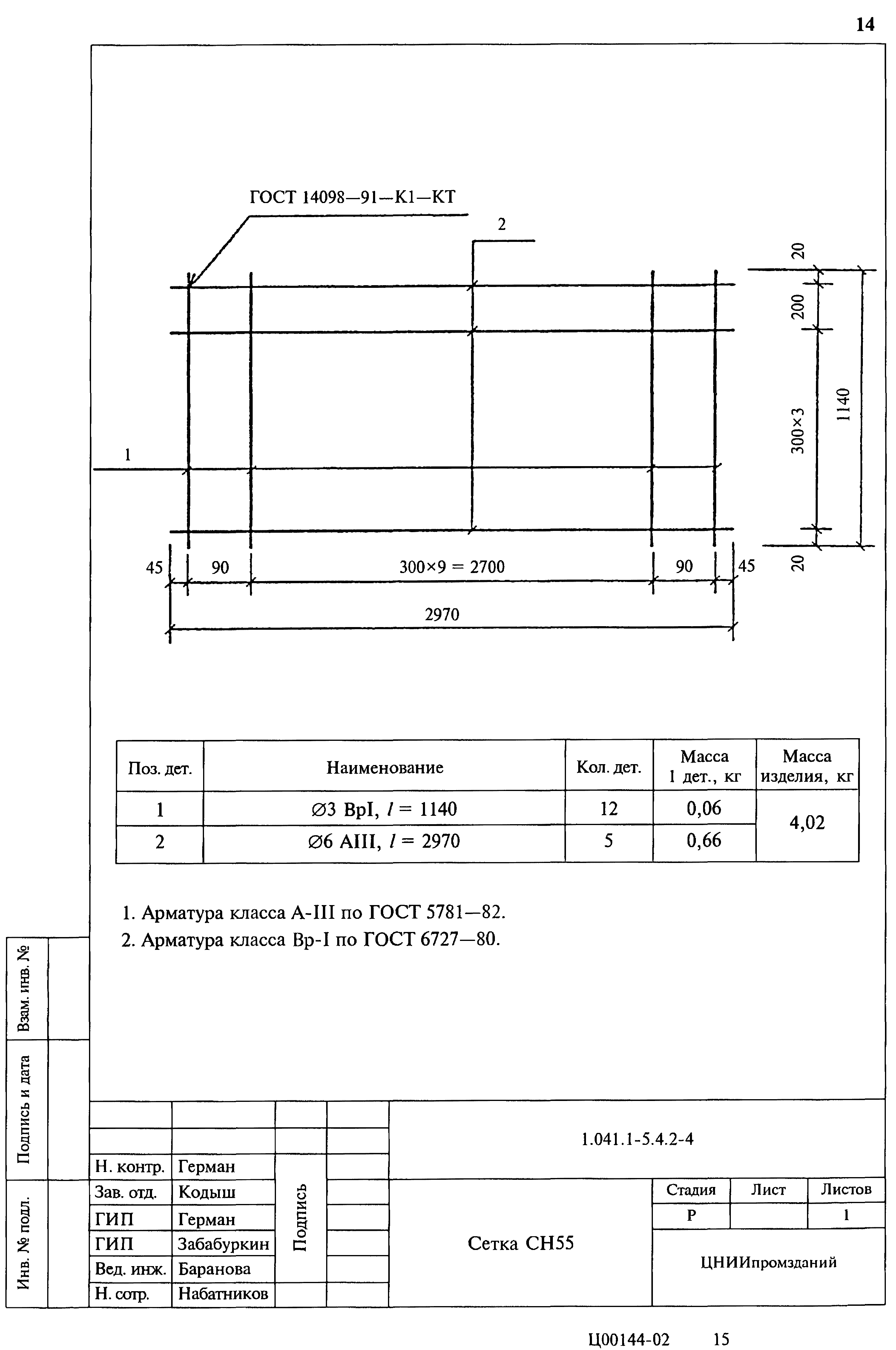
Скачать Серия 1.041.1-5 Выпуск 4.2. Плиты длиной 2980 и шириной 1190 мм с арматурой из стали классов А-III и Вр-I, из тяжелого бетона. Рабочие чертежиДата актуализации: 10.08.2017 Серия 1.041.1-5
Выпуск 4.2. Плиты длиной 2980 и шириной 1190 мм с арматурой из стали классов А-III и Вр-I, из тяжелого бетона. Рабочие чертежи| Обозначение: | Серия 1.041.1-5 | | Обозначение англ: | Series 1.041.1-5 | | Статус: | не определен законодательством | | Название рус.: | Выпуск 4.2. Плиты длиной 2980 и шириной 1190 мм с арматурой из стали классов А-III и Вр-I, из тяжелого бетона. Рабочие чертежи | | Дата добавления в базу: | 01.09.2013 | | Дата актуализации: | 05.05.2017 | | Дата введения: | 01.03.1994 | | Разработан: | ЦНИИпромзданий МГСУ Минвуза РФ НИИЖБ ЦНИИпроект Госстроя России
| | Утверждён: | 15.12.1993 Главпроект Госстроя России (9-3-2/284)
| | Принят: | ЦНИИЭП жилища (TsNIIEPzhilishcha )
| | Расположен в: |
|
                      
|