Скачать Серия 1.041.1-5 Выпуск 16.2. Плиты длиной 6580 и шириной 1190 мм с напрягаемой арматурой из стали классов А-IIIв, А-IV и Ат-V, из тяжелого бетона, метод натяжения - электротермический. Рабочие чертежиДата актуализации: 10.08.2017 Серия 1.041.1-5
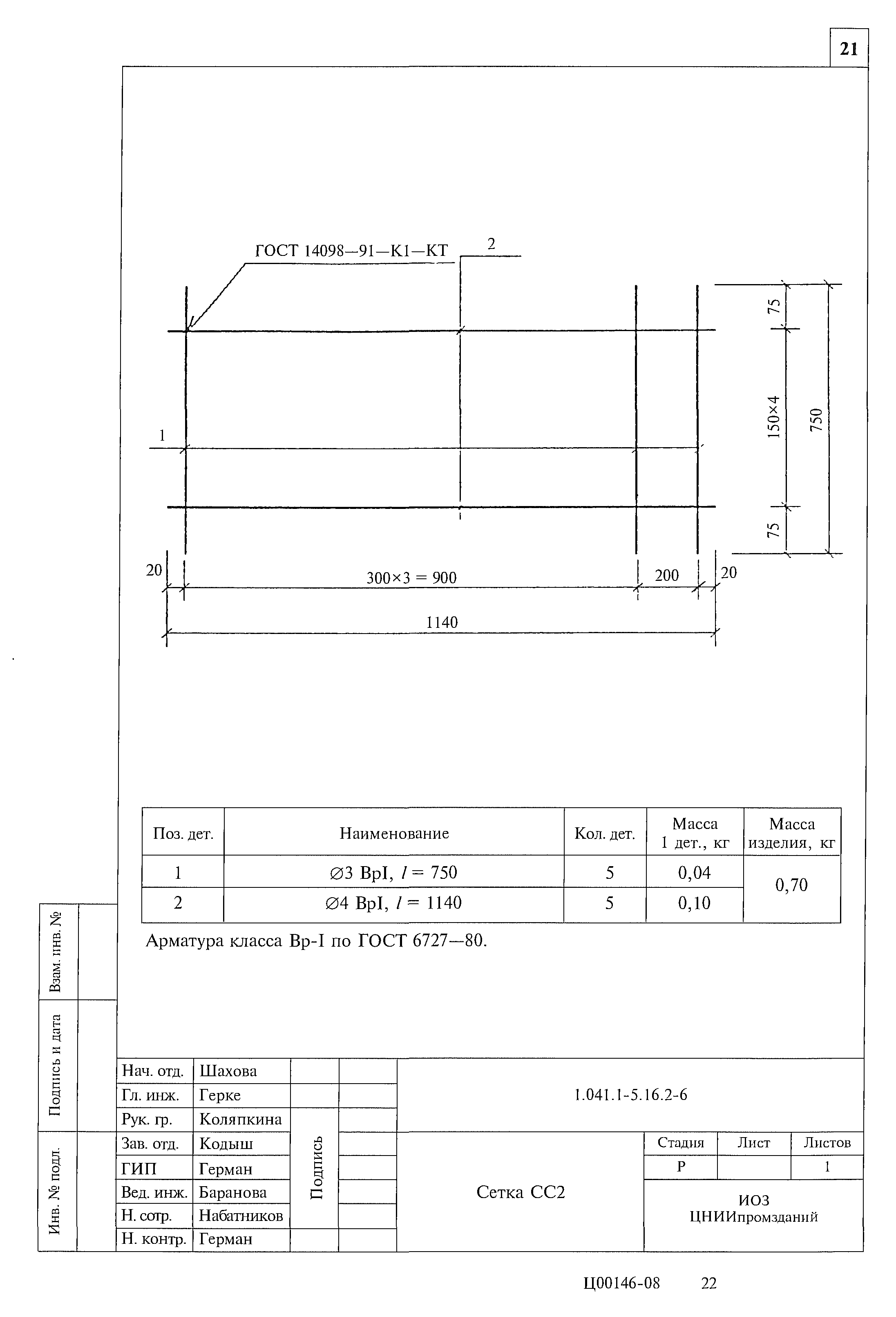
Выпуск 16.2. Плиты длиной 6580 и шириной 1190 мм с напрягаемой арматурой из стали классов А-IIIв, А-IV и Ат-V, из тяжелого бетона, метод натяжения - электротермический. Рабочие чертежиОбозначение: | Серия 1.041.1-5 | Обозначение англ: | Series 1.041.1-5 | Статус: | не определен законодательством | Название рус.: | Выпуск 16.2. Плиты длиной 6580 и шириной 1190 мм с напрягаемой арматурой из стали классов А-IIIв, А-IV и Ат-V, из тяжелого бетона, метод натяжения - электротермический. Рабочие чертежи | Дата добавления в базу: | 01.09.2013 | Дата актуализации: | 05.05.2017 | Дата введения: | 01.03.1994 | Оглавление: | 1.041.1-5.16.2-ПЗ Пояснительная записка 1.041.1-5.16.2-ФЧ Плита 1ПК 66.12. Опалубочный чертеж 1.041.1-5.16.2-1 Плита 1ПК 66.12. Армирование 1.041.1-5.16.2-2 Каркас КР9 1.041.1-5.16.2-3 Каркас КР11 1.041.1-5.16.2-4 Каркас КР18 1.041.1-5.16.2-5 Сетка СР3 1.041.1-5.16.2-6 Сетка СС2 1.041.1-5.16.2-7 Сетка СВ35 1.041.1-5.16.2-8 Сетка СВ72 1.041.1-5.16.2-9 Сетка СМ4 1.041.1-5.16.2-10 Петля ПС2 1.041.1-5.16.2-РС Ведомость расхода стали, кг | Разработан: | ЦНИИпромзданий МГСУ Минвуза РФ НИИЖБ ЦНИИпроект Госстроя России ИОЗ (институт общественных зданий)
| Утверждён: | 15.12.1993 Главпроект Госстроя России (9-3-2/284)
| Расположен в: |
|
                          
|