| ||||||||||||||||||||||||||||
Скачать Серия 1.041.1-5 Выпуск 15.3. Плиты длиной 6280 и шириной 1490 мм с напрягаемой арматурой из стали классов А-IIIв, А-IV и Ат-V, из тяжелого бетона, метод натяжения - электротермический. Рабочие чертежиДата актуализации: 10.08.2017
|
| Обозначение: | Серия 1.041.1-5 |
| Обозначение англ: | Series 1.041.1-5 |
| Статус: | не определен законодательством |
| Название рус.: | Выпуск 15.3. Плиты длиной 6280 и шириной 1490 мм с напрягаемой арматурой из стали классов А-IIIв, А-IV и Ат-V, из тяжелого бетона, метод натяжения - электротермический. Рабочие чертежи |
| Дата добавления в базу: | 01.09.2013 |
| Дата актуализации: | 05.05.2017 |
| Дата введения: | 01.03.1994 |
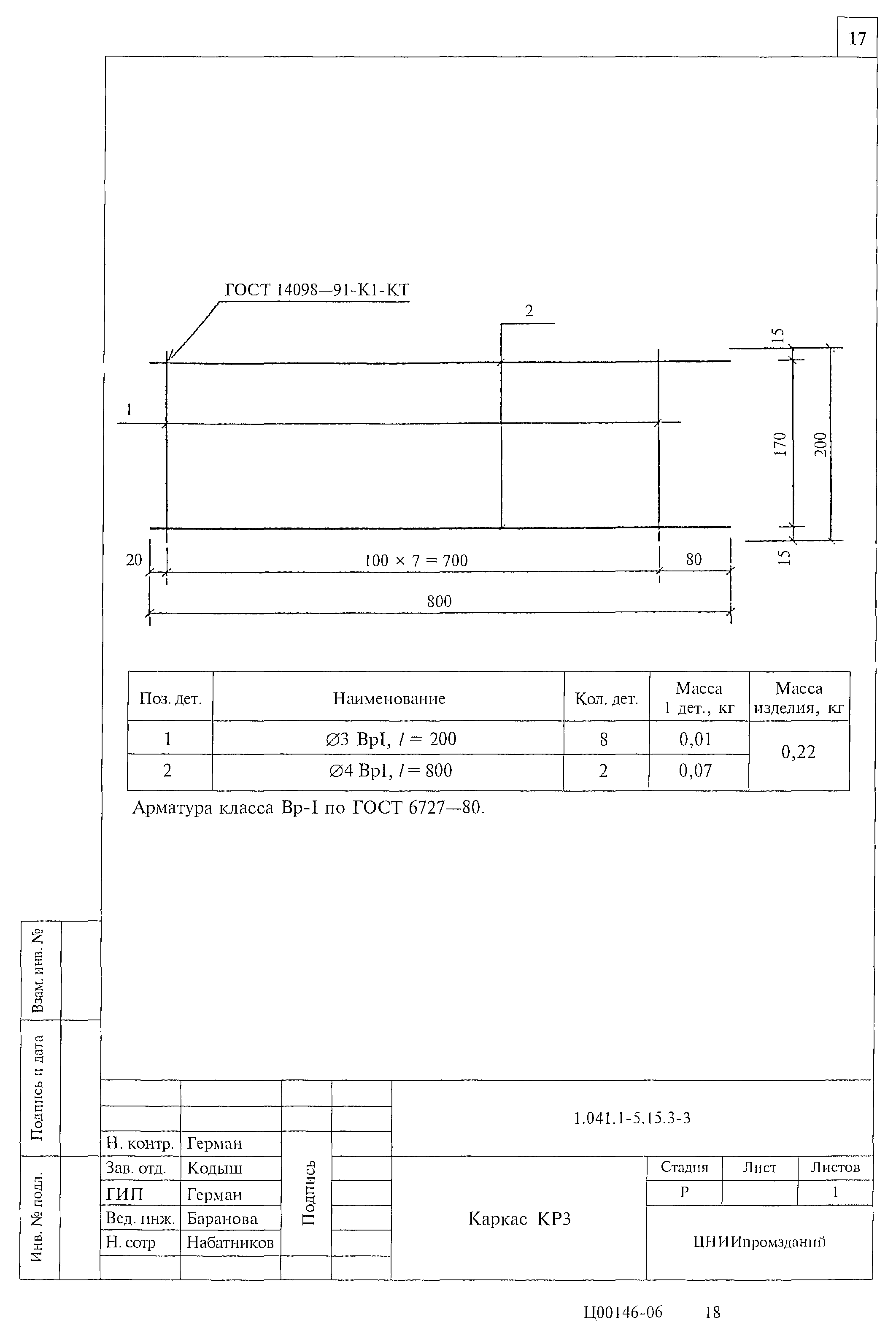
| Оглавление: | 1.041.1-5.15.3-ПЗ Пояснительная записка 1.041.1-5.15.3-ФЧ Плита 1ПК 63.15. Опалубочный чертеж 1.041.1-5.15.3-1 Плита 1ПК 63.15. Армирование 1.041.1-5.15.3-2 Каркас КР1 1.041.1-5.15.3-3 Каркас КР3 1.041.1-5.15.3-4 Каркас КР5 1.041.1-5.15.3-5 Каркас КР7 1.041.1-5.15.3-6 Сетка СР5 1.041.1-5.15.3-7 Сетка СВ48 1.041.1-5.15.3-8 Петля ПС2 1.041.1-5.15.3-РС Ведомость расхода стали, кг |
| Разработан: | ЦНИИпромзданий МГСУ Минвуза РФ НИИЖБ ЦНИИпроект Госстроя России |
| Утверждён: | 15.12.1993 Главпроект Госстроя России (9-3-2/284) |
| Принят: | ЦНИИЭП жилища (TsNIIEPzhilishcha ) |
| Расположен в: |
























