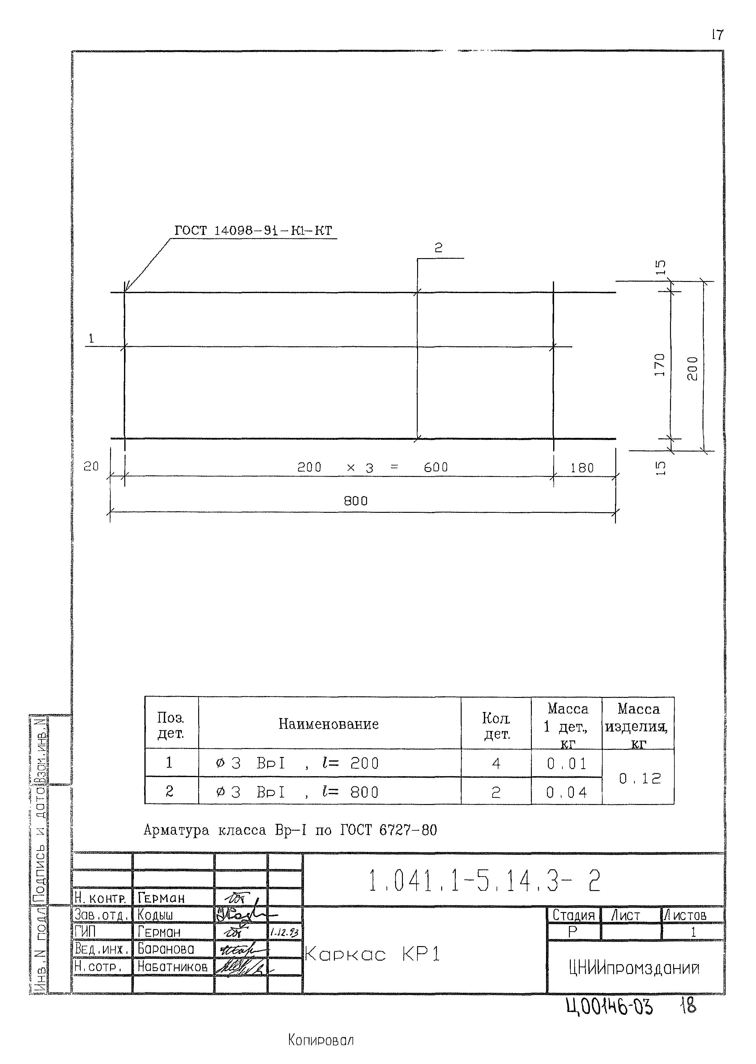
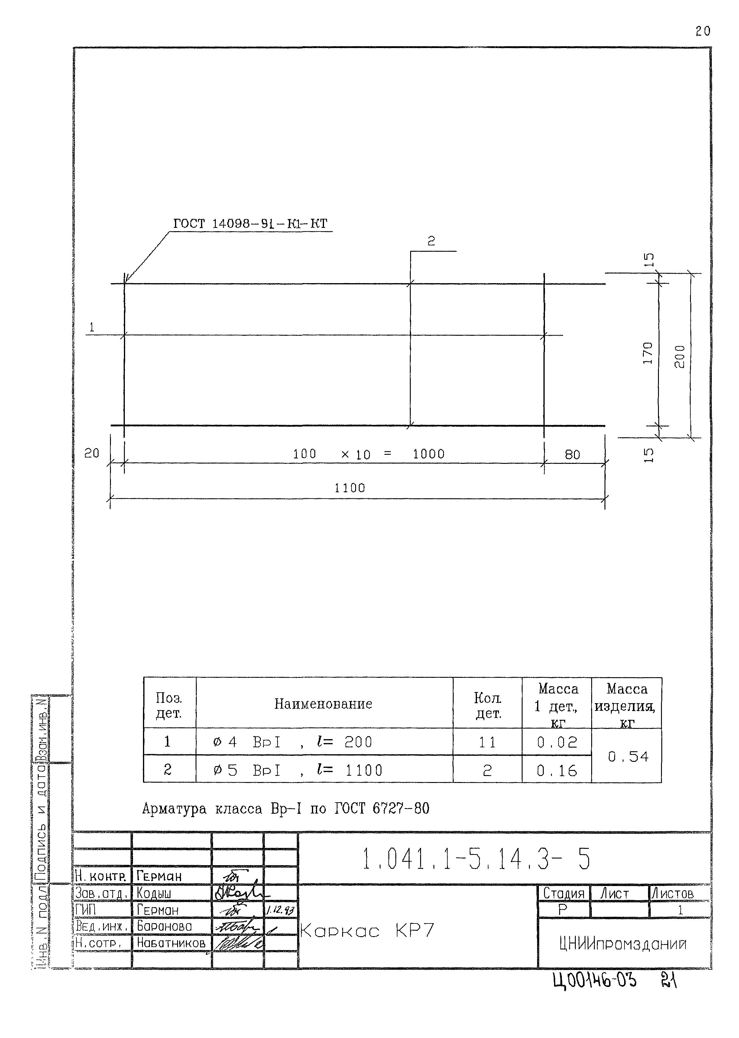
Скачать Серия 1.041.1-5 Выпуск 14.3. Плиты длиной 5980 и шириной 1490 мм с напрягаемой арматурой из стали классов А-IIIв, А-IV и Ат-V, из тяжелого бетона, метод натяжения - электротермический. Рабочие чертежиДата актуализации: 10.08.2017 Серия 1.041.1-5
Выпуск 14.3. Плиты длиной 5980 и шириной 1490 мм с напрягаемой арматурой из стали классов А-IIIв, А-IV и Ат-V, из тяжелого бетона, метод натяжения - электротермический. Рабочие чертежи| Обозначение: | Серия 1.041.1-5 | | Обозначение англ: | Series 1.041.1-5 | | Статус: | не определен законодательством | | Название рус.: | Выпуск 14.3. Плиты длиной 5980 и шириной 1490 мм с напрягаемой арматурой из стали классов А-IIIв, А-IV и Ат-V, из тяжелого бетона, метод натяжения - электротермический. Рабочие чертежи | | Дата добавления в базу: | 01.09.2013 | | Дата актуализации: | 05.05.2017 | | Дата введения: | 01.03.1994 | | Разработан: | ЦНИИпромзданий МГСУ Минвуза РФ НИИЖБ ЦНИИпроект Госстроя России
| | Утверждён: | 15.12.1993 Главпроект Госстроя России (9-3-2/284)
| | Принят: | ЦНИИЭП жилища (TsNIIEPzhilishcha )
| | Расположен в: |
|
                        
|