| ||||||||||||||||||||||||||||||
Скачать Серия 1.041.1-3 Выпуск 3. Плиты длиной 8650 мм, армированные напрягаемой арматурой из стали классов Ат-IVC и Ат-V, из тяжелого бетона. Рабочие чертежиДата актуализации: 10.08.2017
|
| Обозначение: | Серия 1.041.1-3 |
| Обозначение англ: | Series 1.041.1-3 |
| Статус: | не определен законодательством |
| Название рус.: | Выпуск 3. Плиты длиной 8650 мм, армированные напрягаемой арматурой из стали классов Ат-IVC и Ат-V, из тяжелого бетона. Рабочие чертежи |
| Дата добавления в базу: | 01.09.2013 |
| Дата актуализации: | 05.05.2017 |
| Дата введения: | 01.10.1989 |
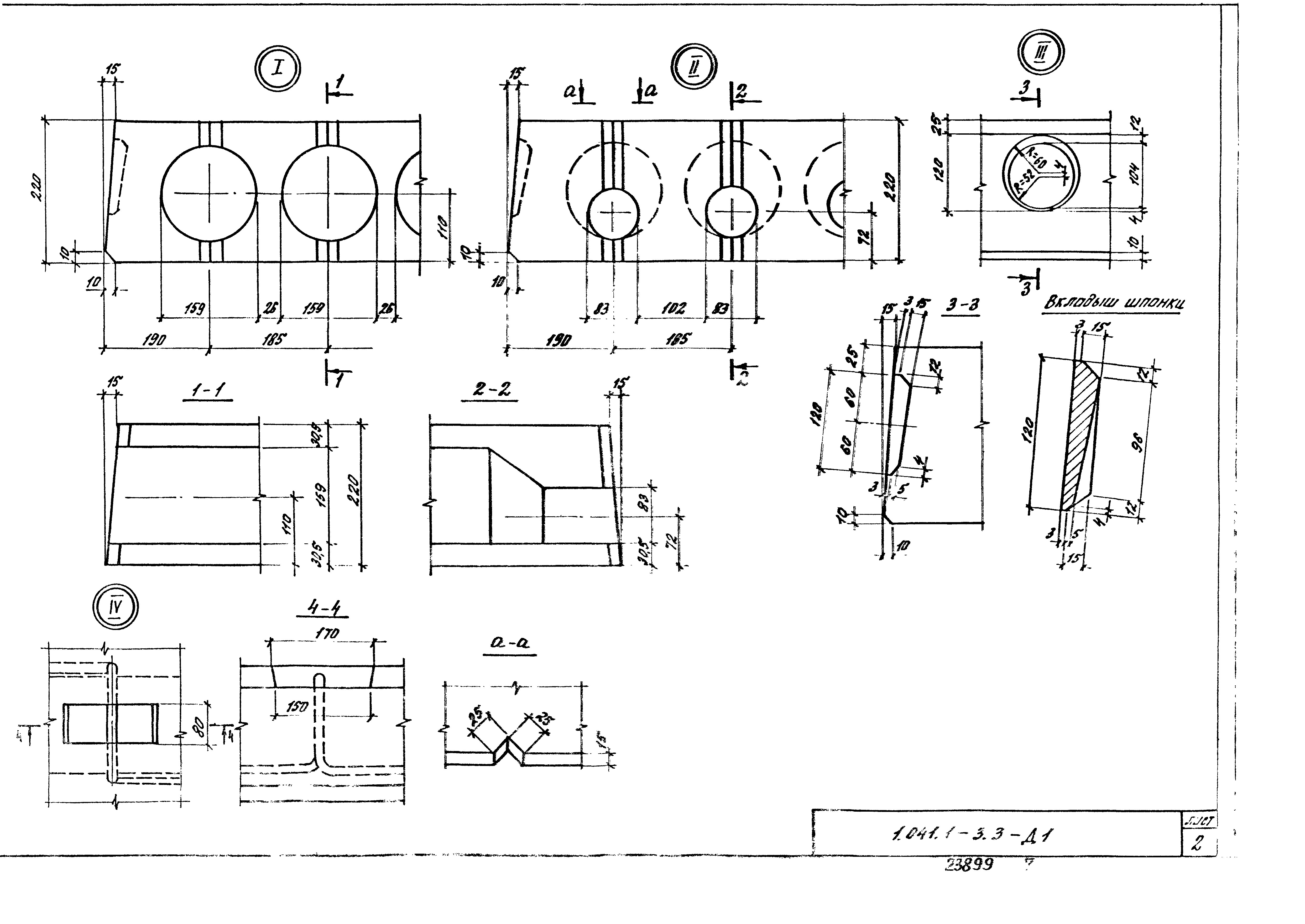
| Оглавление: | 1.041.1-3.3-ТО Техническое описание 1.041.1-3.3-Д1 Плита рядовая ПК86.15 1.041.1-3.3-РС1 Ведомость расхода стали 1.041.1-3.3-Д2 Плита связевая ПК86.15 1.041.1-3.3-РС2 Ведомость расхода стали 1.041.1-3.3-Д3 Плита рядовая ПК86.12 1.041.1-3.3-РС3 Ведомость расхода стали 1.041.1-3.3-Д4 Плита пристенная ПК86.12 1.041.1-3.3-РС4 Ведомость расхода стали 1.041.1-3.3-Д5 Плита пристенная ПК86.9 1.041.1-3.3-РС5 Ведомость расхода стали |
| Разработан: | НИИЖБ АО ЦНИИпромзданий |
| Утверждён: | 10.05.1989 Госстрой СССР (Государственный комитет Совета Министров СССР по делам строительства) (USSR Gosstroy 4/5-674) |
| Издан: | ЦИТП Госстроя СССР (CITP, Gosstroy (USSR) 1989 г. ) |
| Расположен в: | |
| Заменяет собой: |



































